Foram encontradas 430 questões.
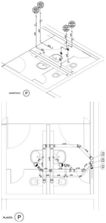
Analisando o desenho isométrico e a planta do projeto executivo de instalações hidrossanitárias dos sanitários abaixo, é correto afirmar:


Provas
Questão presente nas seguintes provas
Considere uma elevação de treliças do projeto executivo de estruturas metálicas abaixo.

A respeito dos tipos de perfis de aço utilizados, analise:
I. As barras dos banzos superior e inferior possuem a mesma altura.
II. Os perfis dos montantes possuem maior altura do que os das diagonais.
III. Todos os perfis são laminados.
IV. Os perfis com menor massa linear são os das diagonais.
É correto o que consta em

A respeito dos tipos de perfis de aço utilizados, analise:
I. As barras dos banzos superior e inferior possuem a mesma altura.
II. Os perfis dos montantes possuem maior altura do que os das diagonais.
III. Todos os perfis são laminados.
IV. Os perfis com menor massa linear são os das diagonais.
É correto o que consta em
Provas
Questão presente nas seguintes provas
- Tecnologia das ConstruçõesSistemas e Elementos ConstrutivosSistemas EstruturaisPrincípios e Fundamentos
- Tecnologia das ConstruçõesSistemas e Elementos ConstrutivosSistemas EstruturaisMorfologia e Funcionamento das Estruturas
Analisando a figura de estrutura com pórticos rígidos abaixo, é correto afirmar:


Provas
Questão presente nas seguintes provas
Em relação ao dimensionamento de rampas prescrito pela NBR 9050, a norma brasileira de "Acessibilidade a edificações, mobiliário, espaços e equipamentos urbanos", é correto o que dispõe:


Provas
Questão presente nas seguintes provas
Analisando abaixo o corte longitudinal de uma escada, é correto afirmar que


Provas
Questão presente nas seguintes provas
- Desenho Técnico
- Expressão e Representação
- ProjetosAnálise Projetual
- ProjetosEdificações Contemporâneos
O corte é uma peça gráfica de grande importância tanto para o desenvolvimento quanto para a representação da espacialidade de um projeto arquitetônico, pois permite a compreensão de informações distintas daquelas presentes na planta. O desenho abaixo é um corte da Fundação Iberê Camargo (1988-2008), em Porto Alegre, RS, de autoria do arquiteto Álvaro Siza.

Em relação à quantidade de informações que um corte pode fornecer, verifica-se que

Em relação à quantidade de informações que um corte pode fornecer, verifica-se que
Provas
Questão presente nas seguintes provas
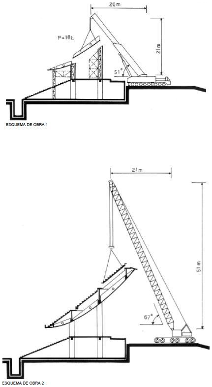
Analise os esquemas de obra e as fotos do projeto do Estádio San Nicola (1987-90) em Bari, Itália, do arquiteto italiano Renzo Piano.


Considerando as características desta obra, é correto afirmar:


Considerando as características desta obra, é correto afirmar:
Provas
Questão presente nas seguintes provas
Considere abaixo duas edificações residenciais que se caracterizam pela clareza na organização da planta, deixando de maneira notável os diversos elementos que as compõem, como a estrutura e os fechamentos.

Analisando tais edifícios, constata-se que

Analisando tais edifícios, constata-se que
Provas
Questão presente nas seguintes provas
Considere abaixo os cortes do edifício das Termas de Vals (1990-1996), Suíça, do arquiteto Peter Zumthor, e do edifício do Centro de Artes Casa das Mudas (2001-2004), Ilha da Madeira, Portugal, do arquiteto Paulo David.

Os dois desenhos exemplificam um aspecto da arquitetura contemporânea: preocupação com a ação do homem sobre o meio ambiente. Analisando os desenhos, é correto afirmar:
I. A materialidade pesada, explicitamente gravitacional, é patente nas duas obras.
II. A intensa conotação geológica, criando novas referências reconhecíveis, mostra o potencial desse tipo de implantação.
III. Edifícios com essa configuração têm altura limitada a três pavimentos por motivos estéticos.
IV. A condição corpórea desta arquitetura, revelada pela profundidade de seus vazios, necessita da luz natural como matéria essencial de projeto.
É correto o que consta em

Os dois desenhos exemplificam um aspecto da arquitetura contemporânea: preocupação com a ação do homem sobre o meio ambiente. Analisando os desenhos, é correto afirmar:
I. A materialidade pesada, explicitamente gravitacional, é patente nas duas obras.
II. A intensa conotação geológica, criando novas referências reconhecíveis, mostra o potencial desse tipo de implantação.
III. Edifícios com essa configuração têm altura limitada a três pavimentos por motivos estéticos.
IV. A condição corpórea desta arquitetura, revelada pela profundidade de seus vazios, necessita da luz natural como matéria essencial de projeto.
É correto o que consta em
Provas
Questão presente nas seguintes provas
A filial do Museu Rodin em Salvador é um conjunto arquitetônico que contou com a adequação do Palacete Comendador Catharino, edifício eclético construído em 1912, e a construção de um bloco novo. Tanto a intervenção no edifício tombado quanto o bloco novo integram um único projeto de autoria do escritório Brasil Arquitetura (2002-2006). Observe abaixo esse conjunto:


Analisando os princípios de projeto para conservação e restauro de monumentos e sua relação com a prática contemporânea da atividade, constata-se que


Analisando os princípios de projeto para conservação e restauro de monumentos e sua relação com a prática contemporânea da atividade, constata-se que
Provas
Questão presente nas seguintes provas
Cadernos
Caderno Container