Foram encontradas 60 questões.
Disciplina: Desenho Técnico e Industrial
Banca: CESGRANRIO
Orgão: Transpetro
De acordo com a NBR 8403/84 (Aplicação de linhas em desenhos – Tipos de linhas – Larguras de linhas), uma linha de chamada que conduz a uma linha de cota deve ser representada como indicado em
Provas
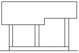
Considere a planta de cobertura esquematizada a seguir.

Dentre os cortes esquematizados, o que corresponde ao corte AA indicado é
Provas
Considere o orçamento de uma obra, com os respectivos custos e serviços apresentados abaixo, para responder à questão.
| Serviço | Custo (R$) |
| S1 | 30.000,00 |
| S2 | 40.000,00 |
| S3 | 70.000,00 |
| S4 | 60.000,00 |
Composição financeira dos serviços
| Serviço | Mão de obra | Material | Equipamento |
| S1 | 40% | 40% | 20% |
| S2 | 50% | 30% | 20% |
| S3 | 30% | 40% | 30% |
| S4 | 80% | 10% | 10% |
Para que a obra não tenha alteração no seu preço final, após o valor dos equipamentos do serviço S1 ter sido aumentado em 20%, será necessário reduzir o custo do serviço S2.
O valor dessa redução, em relação ao custo total inicial do serviço S2, é
Provas
Considere o orçamento de uma obra, com os respectivos custos e serviços apresentados abaixo, para responder à questão.
| Serviço | Custo (R$) |
| S1 | 30.000,00 |
| S2 | 40.000,00 |
| S3 | 70.000,00 |
| S4 | 60.000,00 |
Composição financeira dos serviços
| Serviço | Mão de obra | Material | Equipamento |
| S1 | 40% | 40% | 20% |
| S2 | 50% | 30% | 20% |
| S3 | 30% | 40% | 30% |
| S4 | 80% | 10% | 10% |
Caso o serviço S2 tenha um reajuste de 20% na mão de obra, e o serviço S3 obtenha uma redução de 10% nos custos do seu material, o custo total da obra
Provas
Considere o orçamento de uma obra, com os respectivos custos e serviços apresentados abaixo, para responder à questão.
| Serviço | Custo (R$) |
| S1 | 30.000,00 |
| S2 | 40.000,00 |
| S3 | 70.000,00 |
| S4 | 60.000,00 |
Composição financeira dos serviços
| Serviço | Mão de obra | Material | Equipamento |
| S1 | 40% | 40% | 20% |
| S2 | 50% | 30% | 20% |
| S3 | 30% | 40% | 30% |
| S4 | 80% | 10% | 10% |
O serviço S3 representa, em relação ao total da obra, um percentual financeiro de
Provas
Disciplina: Desenho Técnico e Industrial
Banca: CESGRANRIO
Orgão: Transpetro
Em certo desenho de Autocad, deseja-se arredondar um vértice. Uma das formas de executar essa operação é utilizar o comando
Provas
Considere a seguinte representação de parte de um escalímetro na escala 1:50.

Na escala 1:500, os valores I e II, em metros, valem, respectivamente,
Provas
Disciplina: Segurança e Saúde no Trabalho (SST)
Banca: CESGRANRIO
Orgão: Transpetro
Considere a NR-18 (Condições e meio ambiente de trabalho na indústria da construção) para responder à questão.
Devem dispor de escadas ou rampas próximas aos postos de trabalho as escavações com profundidades superiores, em metros, a
Provas
Uma poligonal aberta possui suas linhas e rumos conforme a tabela a seguir.
| Linha | Rumo a vante | Rumo a ré |
| !$ \overline{12} !$ | N 40º E | X |
| !$ \overline{23} !$ | Y | S 80° W |
| !$ \overline{34} !$ | Z | N 20° E |
Os rumos que correspondem a X, Y e Z das linhas !$ \overline{12}, \overline{23} !$ e !$ \overline{34} !$ da tabela são, respectivamente,
Provas
Nos procedimentos de execução de estacas pré-moldadas de concreto armado, a nega deve ser medida em qual percentual das estacas?
Provas
Caderno Container