Foram encontradas 444 questões.
Provas
I. Pavimento térreo é aquele onde está situado o acesso principal da edificação, segundo critérios estabelecidos em lei.
II. Taxa de ocupação é a relação entre a área da projeção horizontal da edificação ou edificações e a área do lote.
III. Taxa de permeabilidade é a relação entre a área permeável, que permite a infiltração da água no solo, livre de qualquer edificação ou pavimentação não drenante e a área não edificada do lote.
Está correto o que se afirma em
Provas
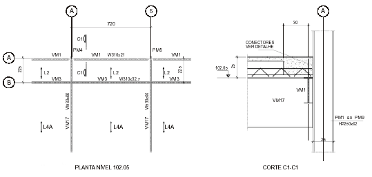
Considere o segmento de planta e o respectivo corte do projeto executivo da estrutura metálica abaixo.

Sabendo-se que a bitola dos perfis está expressa em mm (altura nominal) x kg/m, considere as seguintes características desta estrutura:
I. A viga VM17 possui massa linear maior que o pilar PM4.
II. As vigas VM1 e VM3 possuem alturas semelhantes e a VM3 é mais pesada.
III. As vigas VM1 e VM3 estão apoiadas na viga VM17.
Está correto o que se afirma em
Provas
Em 2000 a empresa editora do New York Times organizou um concurso para a construção da nova sede do periódico em Nova York. Considere o projeto vencedor do arquiteto Renzo Piano, previsto para ser inaugurado este ano.


Considere as seguintes características desta obra:
I. A localização dos serviços e das circulações verticais em núcleo central interiorizado é uma alternativa excelente para a concepção estrutural mas prejudica a eficiência e flexibilidade da planta.
II. A expressão do edifício é composta por combinação de fachada de vidro e tela de cilindros cerâmicos brancos, que atua como pára-sol, cuja tonalidade vai se modificando em função das variações atmosféricas.
III. Os elementos de proteção solar utilizados atendem aos princípios de sustentabilidade, impedindo a absorção excessiva de energia, embora obstruam a vista dos usuários no interior dos escritórios.
Está correto o que se afirma em
Provas
O Museu de Arte Moderna do Rio de Janeiro (1953), no Aterro do Flamengo, é um dos mais importantes exemplares da arquitetura brasileira de todos os tempos. Analise o projeto do arquiteto Affonso Eduardo Reidy.

Considere as seguintes características desta obra:
I. A estrutura principal é constituída por pórticos de concreto armado que sustentam as lajes dos pavimentos e da cobertura, penduradas por meio de tirantes de ferro.
II. Os pórticos são interligados entre si por meio de duas abas de concreto que exercem dupla função: estrutural de contra ventamento e de conforto ambiental como pára-sol das fachadas opostas.
III. O programa é tratado por meio de grandes massas autônomas, cada uma correspondendo a uma das funções previstas.
O respeito pela paisagem da baía e a integração da arquitetura nela são qualidades primordiais da composição.
Está correto o que se afirma em
Provas
Provas
Provas
Provas

Os círculos representam algarismos, que satisfazem às seguintes condições:
- são distintos entre si;
- são diferentes de zero;
- o algarismo das centenas de F é maior do que o algarismo das centenas de G.
Determinando-se corretamente esses cinco algarismos, verifica-se que o algarismo
Provas
Provas
Caderno Container