Foram encontradas 900 questões.
- Conversores Analógicos Digitais (AD) e Digitais Analógicos (DAC)
- Eletrônica Analógica
- Eletrônica Digital
Ao se verificar um conversor de binário para octal, foi induzido como teste, na entrada, o número 11111, que, na saída, corresponderá ao número:
Provas
Questão presente nas seguintes provas
O elemento que tem a amplificação de tensão como fator diferencial é o:
Provas
Questão presente nas seguintes provas
O resultado da operação binária 11011012 –101102 é:
Provas
Questão presente nas seguintes provas
No circuito esquematizado abaixo, o valor de Vs, em Volt, é:


Provas
Questão presente nas seguintes provas
Os transistores de germânio são ativados quando a tensão VBE se iguala ao valor , em mV, de:
Provas
Questão presente nas seguintes provas
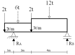
Analise a viga abaixo com seus respectivos carregamentos:

O valor da reação RA , em toneladas, vale:

O valor da reação RA , em toneladas, vale:
Provas
Questão presente nas seguintes provas
Sobre uniões por parafusos, a série de roscas extrafinas:
Provas
Questão presente nas seguintes provas
A rotação da coroa com 80 dentes de um sistema de transmissão cujo parafuso com rosca sem-fim tem 4 entradas e gira a 3200 rpm, é, em rpm, de:
Provas
Questão presente nas seguintes provas
- EletrônicaComponentes Eletrônicos em Eletroeletrônica
- EletrônicaEquipamentos Elétricos em Eletroeletrônica
- EletrônicaEletrônica Analógica em Eletroeletrônica
A diferença básica entre as válvulas Klyston e as válvulas comuns (como os triodos), é que:
Provas
Questão presente nas seguintes provas
A válvula TWT (de onda caminhante) é uma válvula:
Provas
Questão presente nas seguintes provas
Cadernos
Caderno Container