Foram encontradas 166 questões.
- UniãoExecutivoDecreto 1.171/1994: Código de Ética do Servidor Público Civil do Poder Executivo Federal
Provas

Provas
Considere a viga isostática com dois balanços mostrada na figura abaixo:

Provas

Provas

Provas
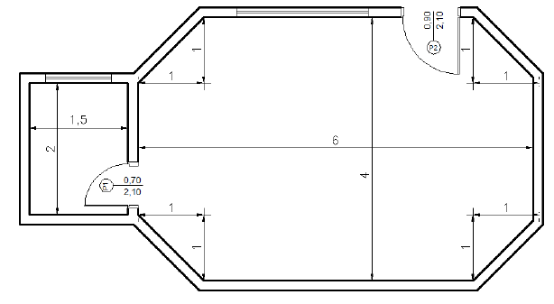
A planta baixa de uma sala comercial está representada na figura a seguir. Na sala e no banheiro será assentado o mesmo piso, que também irá compor o rodapé. Considere que o rodapé tem 10 cm de altura, e que a compra do piso deverá ser feita considerando um acréscimo de 10% para compensar perdas. Considere √2 = 1,4

A área total de piso que deve ser adquirida é:
Provas
O cronograma físico-financeiro simplificado de um empreendimento está apresentado na tabela a seguir.

Considere que as atividades devem ser executadas conforme o cronograma e que a distribuição do valor de cada atividade deve ser proporcional ao tempo decorrido.
Qual o valor, em reais, das atividades desenvolvidas no mês 4 e qual a porcentagem do valor total do empreendimento que será gasta até o mês 6, inclusive, respectivamente?
Provas
Um canal tem seção transversal trapezoidal, como mostra a figura. Para vazões em dias secos, o canal apresenta altura de lâmina d’água igual a 2,0 m. Já em dias chuvosos, o canal atinge sua altura de lâmina d’água máxima de 4,0 m.

O Raio hidráulico do canal para a condição de dias secos e de dias chuvosos é, respectivamente:
Provas
Uma coluna de aço foi projetada em perfil do tipo CS – coluna soldada, conforme especificação a seguir.

A coluna pode ser considerada rotulada nas duas extremidades, devido ao travamento na base e no topo. Entretanto, em uma das direções da edificação a coluna receberá um travamento intermediário, como mostra o desenho esquemático da figura.

Há duas possibilidades para posicionamento da coluna, mostradas nas figuras como posição 1 e 2.

Provas
O agregado é definido como um material granular, geralmente inerte, de dimensões e propriedades adequadas para uso em obras de engenharia. A composição granulométrica de um agregado tem grande influência nas propriedades das argamassas e concretos, e é determinada por meio de peneiramento em peneiras com abertura especificada em norma, constituindo uma série padrão.
As curvas granulométricas da figura representam a granulometria de amostras de areias ou britas.

Com base nas curvas apresentadas, pode-se afirmar que os materiais das curvas A, B, C e D são, respectivamente:
Provas
Caderno Container