Foram encontradas 50 questões.
A Figura 6 mostra um sistema de transmissão via engrenagens dentadas.

A rotação na saída é de
Provas
Questão presente nas seguintes provas
Em relação às roscas dos parafusos, o perímetro efetivo médio é igual ao passo quando o ângulo de hélice for
igual a
Provas
Questão presente nas seguintes provas
Das seguintes técnicas, a que NÃO se constitui como uma manutenção preditiva é
Provas
Questão presente nas seguintes provas
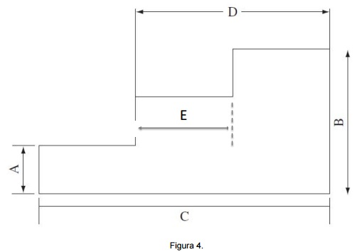
Um desenho de uma peça na forma de degrau é mostrado com as dimensões marcadas na Figura 4.

A distância corretamente dimensionada é
Provas
Questão presente nas seguintes provas
Um plano de casa de uma oficina foi desenhado para uma escala de 1:100. Se uma medição é de 4,5 metros
na escala real, o tamanho no plano do desenho será de
Provas
Questão presente nas seguintes provas
A capacidade que o material tem de se deformar quando submetido a um esforço e de voltar à forma original
quando o esforço termina é caracterizada como
Provas
Questão presente nas seguintes provas
Observe o circuito pneumático abaixo.

Esse circuito consiste em um circuito de comando de um cilindro de
Provas
Questão presente nas seguintes provas
- UniãoExecutivoDecreto 1.171/1994: Código de Ética do Servidor Público Civil do Poder Executivo Federal
O uso do cargo ou função, facilidades, amizades, tempo, posição e influências, para obter qualquer
favorecimento, para si ou para outrem; prejudicar deliberadamente a reputação de outros servidores ou de
cidadãos que deles dependem. Essas são duas de várias outras vedações ao servidor público, de acordo com
o Decreto nº 1.171, de 22 de junho de 1994, que aprova o Código de Ética Profissional do Servidor Público
Civil do Poder Executivo Federal. É vedado ainda
Provas
Questão presente nas seguintes provas
Em um sistema de refrigeração, o dispositivo de expansão está conectado ao
Provas
Questão presente nas seguintes provas
O reaquecimento em uma turbina a gás
Provas
Questão presente nas seguintes provas
Cadernos
Caderno Container