Foram encontradas 45 questões.
Para a elaboração de projetos de programação visual para edificações, alguns aspectos devem ser levados em consideração, para haver coerência com o projeto de arquitetura, compatibilizando objetivos, funções e formas de utilização dos espaços da edificação, a fim de assegurar contribuição efetiva para sua implantação e ambientação. Sobre esse assunto é correto afirmar que
Provas
Considerando-se as condições de ergonomia para a elaboração de projeto de mobiliário a ser utilizado em espaços de trabalho, avalie as afirmativas:
I Para trabalho manual sentado ou que tenha de ser feito em pé, as bancadas, mesas, escrivaninhas e os painéis devem atender a requisitos mínimos, como ter altura e características da superfície de trabalho, independente do tipo de atividade, com a distância requerida dos olhos ao campo de trabalho e com a altura do assento.
II Para as atividades em que os trabalhos sejam realizados de pé, devem ser colocados assentos para descanso em locais que possam ser utilizados por todos os trabalhadores durante as pausas.
III Os assentos utilizados nos postos de trabalho devem atender a requisitos mínimos de conforto, como apresentar conformação na base do assento e borda frontal arredondada.
IV Para as atividades em que os trabalhos sejam realizados com os trabalhadores sentados, a partir da análise ergonômica do trabalho, poderá ser exigido suporte para os pés, que se adapte ao comprimento da perna do trabalhador.
Estão corretas as afirmações:
Provas
Na região Norte do Brasil, alguns atributos são recomendáveis para projetos de edificações no que se refere a conforto térmico, devido às suas características climáticas. Sobre a questão é correto afirmar que
Provas
- Conforto AmbientalConforto Acústico
- Conforto AmbientalConforto Lumínico
- Conforto AmbientalConforto Térmico
- Conforto AmbientalVentilação
Avalie as afirmações sobre as estratégias de projeto arquitetônico utilizadas no campo do conforto ambiental:
I Para minimizar a energia solar absorvida pelas paredes externas é possível utilizar isolantes térmicos nas superfícies mais expostas à radiação solar, brise-soleils, planos externos, paredes de cobogós, vegetação, toldos e marquise.
II As paredes que separam ambientes habitados de setores não-habitados e sem sol (garagens, porões, depósitos, etc.) podem ser feitas com materiais com baixa condutibilidade térmica para ajudar a dissipar o calor interno.
III No caso de haver uma fonte de ruído muito próxima do edifício a ser projetado, a fachada não deverá ter um número elevado de janelas, nem paredes pesadas e revestimentos porosos que absorvam o ruído.
IV A iluminação zenital produz uma distribuição mais uniforme do que a iluminação lateral (das janelas), porém as aberturas ou vãos devem ser protegidos para não permitir a entrada de radiação solar direta, sob pena de criar fortes contrastes.
Estão corretas as afirmações
Provas
Considerando o desenvolvimento de projetos de edificações e as condições de conforto ambiental em ambientes urbanos, marque a alternativa correta.
Provas
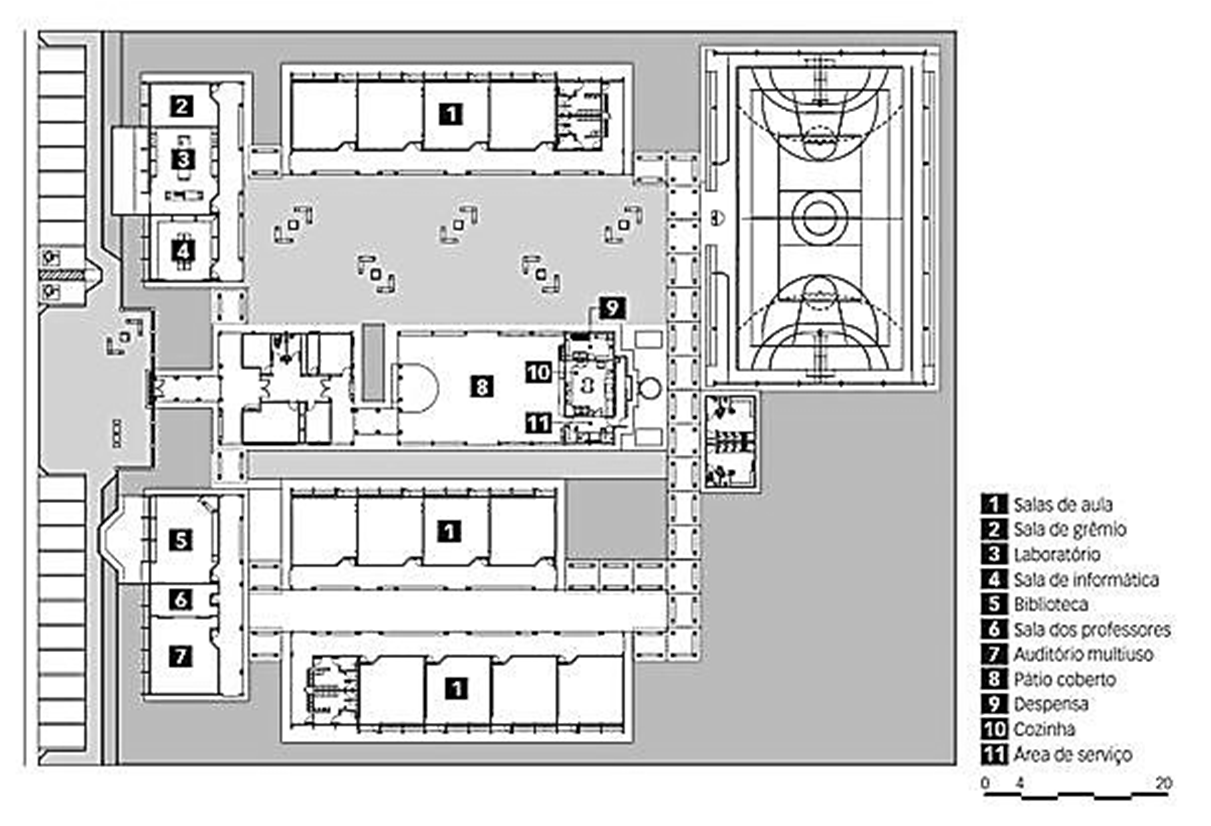
O Ministério da Educação, por meio do Fundo Nacional para o Desenvolvimento da Educação (FNDE), fornece, sistematicamente, como subsídio para Prefeituras Municipais e Governos Estaduais, exemplos de projetos arquitetônicos e complementares para a construção de escolas de diversos perfis em ambientes urbanos e rurais. É o caso do diagrama a seguir.

Esquema geral em planta baixa, modelo de escola com 12 salas de aula, quadra esportiva e laboratórios.
Fonte: Editora PINI, “FNDE subsidia municípios para a construção de escolas-modelo padrão”. São Paulo: PINI, 22 jun. 2012.
Disponível em: <http://infraestruturaurbana.pini.com.br/solucoes-tecnicas/22/artigo275121-2.aspx>.
Acesso em: 10 mar. 2014.
Analisando o diagrama, observa-se
Provas
De acordo com as normas de acessibilidade universal em edificações e espaços urbanos, é correto afirmar que as diferentes formas de sinalização de informações essenciais devem
Provas
As calçadas proporcionam não apenas o trânsito exclusivo de pedestres, mas também o acesso às edificações e, de forma integrada, ao mobiliário e a demais equipamentos urbanos dos espaços públicos. Com relação às normas técnicas de acessibilidade a espaços e equipamentos urbanos é correto afirmar que
Provas
No que diz respeito ao conteúdo sobre acessos e circulação presente nas normas técnicas de acessibilidade da NBR 9050, é verdadeiro afirmar que
Provas
A Lei de Licitações (Lei n.º 8.666, de 21/06/1993), ao estabelecer que o projeto básico deve conter “conjunto de elementos necessários e suficientes, com nível de precisão adequado, para caracterizar a obra ou serviço, ou complexo de obras ou serviços objeto da licitação”, define a inclusão dos seguintes elementos.
a) desenvolvimento da solução escolhida de forma a fornecer visão global da obra e identificar todos os seus elementos constitutivos com clareza;
b) soluções técnicas globais e localizadas, suficientemente detalhadas, de forma a minimizar a necessidade de reformulação ou de variantes durante as fases de elaboração do projeto executivo e de realização das obras e montagem.
A adoção dos elementos acima citados.
Provas
Caderno Container