Foram encontradas 50 questões.
No computador em que um técnico de edificações trabalha encontra-se instalada a versão 2007 do programa AutoCAD, mas nem todos os serviços gráficos o utilizam.
Para possibilitar a impressão dos desenhos em versões anteriores deste programa, deve-se salvar os arquivos como:
Provas
No desenho abaixo apresentado, aparecem informações sobre uma viga de aço que tem grande resistência à flexão em função da espessura de sua alma.

Esta espessura está representada pelas letras:
Provas
A norma da ABNT NBR 06492/1994 estabelece diretrizes para a representação de projetos de arquitetura. O principal objetivo é que todos os envolvidos no trabalho de projeto e construção possam reconhecer o que o desenho representa.
De acordo com esta norma, as linhas traço e dois pontos representam:
Provas
Para obter um orçamento de fornecimento e colocação de revestimento de piso, um técnico de edificações precisa enviar às empresas fornecedoras um desenho da planta baixa de uma sala que mede 6,00 x 25,00 (metros). A fim de facilitar o trabalho de impressão, o técnico desenha a sala em uma folha de tamanho A-4.
A escala adequada para este desenho é:
Provas
As rampas tornaram-se elementos construtivos obrigatórios, pois facilitam o acesso dos usuários impossibilitados de subir escadas. É uma questão de cidadania e inclusão social. Respeitada a declividade de 5% indicada na norma NBR9050/2004, o comprimento, em metros, da projeção horizontal de uma rampa que vencerá uma altura de 1,50 metros em um único segmento, é:
Provas
Uma tubulação de esgoto está sendo executada. Os subramais que ligam os pontos de consumo ao ralo sifonado têm 50 mm de diâmetro. Segundo a NBR 08160/1999, esta tubulação deverá ser instalada com um caimento mínimo de:
Provas
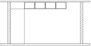
Sem considerar a espessura da argamassa de assentamento e a área das esquadrias, o número de tijolos de dimensões 0,18 x 0,18 x 0,10 (metros) a serem adquiridos para execução da alvenaria deste vestiário é:
Provas
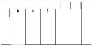
Em relação às tomadas e interruptores projetados para este vestiário, encontram-se representados na planta baixa
Provas
A alternativa que representa corretamente o corte A-A é
Provas
O material especificado para os pilares deste vestiário é:
Provas
Caderno Container