Foram encontradas 60 questões.
De acordo com a NBR 5444/04, a alternativa correta é:
Provas
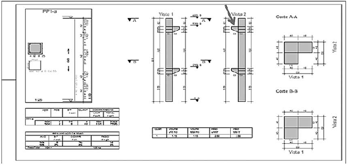
Na representação gráfica do projeto de estrutura apresentada a seguir, a seta aponta para uma peça conhecida como:

Provas
Na representação de um projeto de detalhamento de armação apresentada a seguir, a posição que corresponde à armadura de pele (costela) é a:

Provas
A seção mínima recomendada para condutores em cobre (Cu), que podemos adotar num projeto de instalação elétrica para circuitos de iluminação de uma residência, é de:
Provas
Para se revestir uma piscina de diâmetro (⌀) igual a 2,0 m e profundidade constante igual a 100 cm, assinale a opção que apresenta corretamente a quantidade de pastilhas vitrificadas de dimensões de 5 x 5 cm necessária (Adotar Pi = 3,14).
Provas
O escoramento metálico é composto por peças de aço galvanizado ou alumínio e é uma solução com grande capacidade de suportar cargas e chega pronto ao canteiro para ser montado. Uma dessas peças que corresponde à imagem representada a seguir é conhecida como:

Provas
Segundo a NBR 9050, na construção de uma rampa externa, a inclinação transversal não poderá exceder o percentual máximo.
Se a rampa tiver 2,5 m de largura, o desnível transversal máximo será de:
Provas
Em uma edificação, a execução das vergas sobre vão de portas e janelas e de contravergas sob janelas ou caixilhos, deve exceder a largura dos seus vãos e ter altura mínima, respectivamente, de:
Provas
Na execução de concretos que terão contato com água do mar ou esgotos, deve-se adotar cimentos dos seguintes tipos:
Provas
Em atendimento à ABNT NBR 5626:1998, para a execução de um reservatório de água potável, concebido para ser enterrado totalmente no solo, este deve ser executado dentro de compartimento próprio, que permita operações de inspeção e manutenção. Portanto, o afastamento mínimo entre as faces externas do reservatório (laterais, fundo e cobertura) e as faces internas do compartimento deve ser de:
Provas
Caderno Container