Foram encontradas 50 questões.
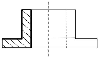
Ao verificar o quadro de áreas de um dos pavimentos de um projeto executivo, o desenhista percebeu a ausência de informação sobre a área útil do compartimento apresentado pela figura seguinte:

Dentre as alternativas a seguir, assinale a que expressa o valor correto a ser preenchido no quadro de áreas.
Provas
Considerando as coordenadas estabelecidas para o ponto (A) [2,0;-3,0;-3,0], pode-se afirmar que:
Provas
Um desenhista precisa identificar uma dimensão não cotada no desenho antigo, em escala de 1:20. Entretanto, só dispõe de uma régua comum. Ao utilizá-la, lê a dimensão de 15 cm. Assinale, dentre as opções a seguir, a que indica a medida correta, na escala indicada.
Provas
Analise a figura a seguir e identifique, dentre as alternativas, o tipo de perspectiva utilizado na representação da peça a ser fabricada.

Provas
Nos desenhos de arquitetura, as plantas baixas são representadas a partir da seção por um plano horizontal a uma cota aproximada de:
Provas
A NBR 8404/1984 fixa os símbolos para a identificação do estado das superfícies em projetos técnicos. De acordo com essa norma, o símbolo a seguir representa:

Provas
Nos desenhos de arquitetura, a representação de projeções de elementos superiores, acima ou anteriores ao plano de corte deve ser feita por:
Provas
Com base na NBR 10067/1995 pode-se afirmar que o desenho a seguir representa:

Provas
FUGA
De repente você resolve: fugir.
Não sabe para onde nem como
nem por quê (no fundo você sabe
a razão de fugir; nasce com a gente).
É preciso FUGIR.
Sem dinheiro sem roupa sem destino.
Esta noite mesmo. Quando os outros
estiverem dormindo.
Ir a pé, de pés nus.
Calçar botina era acordar os gritos
que dormem na textura do soalho.
Levar pão e rosca; para o dia.
Comida sobra em árvores
infinitas, do outro lado do projeto:
um verdor
eterno, frutescente (deve ser).
Tem à beira da estrada, numa venda.
O dono viu passar muitos meninos
que tinham necessidade de fugir
e compreende.
Toda estrada, uma venda
para a fuga.
Fugir rumo da fuga
que não se sabe onde acaba
mas começa em você, ponta dos dedos.
Cabe pouco em duas algibeiras
e você não tem mais do que duas.
Canivete, lenço, figurinhas
de que não vai se separar
(custou tanto a juntar).
As mãos devem ser livres
para pessoas, trabalhos, onças
que virão.
Fugir agora ou nunca. Vão chorar,
vão esquecer você? ou vão lembrar-se?
(lembrar é que é preciso,
compensa toda fuga.)
Ou vão amaldiçoá-lo, pais da Bíblia?
Você não vai saber. Você não volta nunca.
(Essa palavra nunca, deliciosa.)
Se irão sofrer, tanto melhor.
Você não volta nunca nunca nunca.
E será esta noite, meia-noite
Em ponto.
Você dormindo à meia-noite.
Fonte: ANDRADE, Carlos Drummond de. Fuga. In: Menino
antigo. Rio de Janeiro: José Olympio, 1973. p. 155-156.
A respeito dos pronomes destacados em “Para com esse barulho” (texto 1) e “Esta noite mesmo” (texto 2), assinale a afirmativa correta.
Provas
FUGA
Mal colocou o papel na máquina, o menino começou a empurrar uma cadeira pela sala, fazendo um barulho infernal.
— Para com esse barulho, meu filho — falou, sem se voltar.
Com três anos, já sabia reagir como homem ao impacto das grandes injustiças paternas: não estava fazendo barulho, estava só empurrando uma cadeira. — Pois então para de empurrar a cadeira.
— Eu vou embora — foi a resposta.
Distraído, o pai não reparou que ele juntava ação às palavras, no ato de juntar do chão suas coisinhas, enrolando-as num pedaço de pano. Era a sua bagagem: um caminhão de plástico com apenas três rodas, um resto de biscoito, uma chave (onde diabo meteram a chave da despensa? a mãe mais tarde irá dizer), metade de uma tesourinha enferrujada, sua única arma para a grande aventura, um botão amarrado num barbante.
A calma que baixou então na sala era vagamente inquietante. De repente o pai olhou ao redor e não viu o menino. Deu com a porta da rua aberta, correu até o portão:
— Viu um menino saindo desta casa? — gritou para o operário que descansava diante da obra, do outro lado da rua, sentado no meio-fio.
— Saiu agora mesmo com uma trouxinha — informou ele.
Correu até a esquina e teve tempo de vê-lo ao longe, caminhando cabisbaixo ao longo do muro. A trouxa, arrastada no chão, ia deixando pelo caminho alguns de seus pertences: o botão, o pedaço de biscoito e — saíra de casa prevenido — uma moeda de um cruzeiro. Chamou-o, mas ele apertou o passinho e abriu a correr em direção à avenida, como disposto a atirar-se diante do ônibus que surgia à distância.
— Meu filho, cuidado!
O ônibus deu uma freada brusca, uma guinada para a esquerda, os pneus cantaram no asfalto. O menino, assustado, arrepiou carreira. O pai precipitou- se e o arrebanhou com o braço como um animalzinho:
— Que susto você me passou, meu filho — e apertava-o contra o peito comovido.
— Deixa eu descer, papai. Você está me machucando.
Irresoluto, o pai pensava agora se não seria o caso de lhe dar umas palmadas:
— Machucando, é? Fazer uma coisa dessas com seu pai.
— Me larga. Eu quero ir embora.
Trouxe-o para casa e o largou novamente na sala — tendo antes o cuidado de fechar a porta da rua e retirar a chave, como ele fizera com a da despensa.
— Fique aí quietinho, está ouvindo? Papai está trabalhando.
— Fico, mas vou empurrar esta cadeira.
E o barulho recomeçou.
Fonte: SABINO, Fernando. Fuga. In: Os melhores contos.
Rio de Janeiro: Record, 1986. p.122-123.
Levando-se em consideração apenas o primeiro parágrafo do texto 1, assinale a afirmativa correta.
Provas
Caderno Container