Foram encontradas 50 questões.
Uma amostra de um solo em seu estado natural pesa 1.275 g e, depois de seca em estufa, pesa 1.107 g. Para que o teor de umidade dessa amostra passe a 20,0%, a quantidade aproximada de água a ser adicionada deve ser de
Provas
O peso específico é uma característica relevante na escolha dos materiais de construção, inclusive de agregados graúdos como brita granítica, brita calcária, argila expandida e seixo rolado. Desses materiais, o que apresenta menor peso específico é
Provas
Acerca das características dos materiais de construção, analise as afirmativas a seguir.
| I | Os materiais metálicos são substâncias de origem orgânica e estrutura não cristalina. |
| II | O cimento natural é um aglomerante hidráulico obtido pela moagem, em sua maior parte, de silicatos e aluminatos de cálcio. |
| III | Os ligantes hidrófilos são compostos de betumes naturais e artificiais, derivados de petróleo. |
| IV | Quanto maior o tamanho do agregado no concreto, e quanto mais elevada a proporção de partículas chatas e alongadas, maior será a tendência de o filme de água se acumular próximo da superfície do agregado, enfraquecendo assim a zona de transição pasta-agregado. |
Das afirmativas, estão corretas
Provas
Considere a tabela abaixo.
| Materiais | Massa Específica (g/cm³) | Massa Unitária (g/cm³) |
|---|---|---|
| Cimento | 3,10 | 1,00 |
| Areia | 2,75 | 0,92 |
| Brita | 2,70 | 1,55 |
Utilizando-se o traço em massa igual a 1:2:4 (relação água/cimento = 0,50), para a concretagem de um radier de 5,0 m3 de concreto simples de cimento, areia e brita, a quantidade aproximada de brita a ser utilizada é de
Provas
De acordo com o vocabulário técnico da construção civil, tardoz significa:
Provas
De acordo com a NBR 6136:2014, os blocos vazados de concreto simples para alvenaria sem função estrutural, classe C, devem apresentar resistência característica à compressão axial (fbk) maior ou igual a
Provas
Em um projeto estrutural a ser desenhado na escala 1:50, o comprimento de uma ferragem que mede 8,75 m será representado com a medida gráfica igual a
Provas
Escala é a definição dada em arquitetura para a relação entre as medidas de um espaço ou uma edificação real e a sua representação, usualmente gráfica. Com base nessa premissa, a escala que representa o comprimento de uma parede de 25 m e sua medida no papel igual a 1,25 cm é
Provas
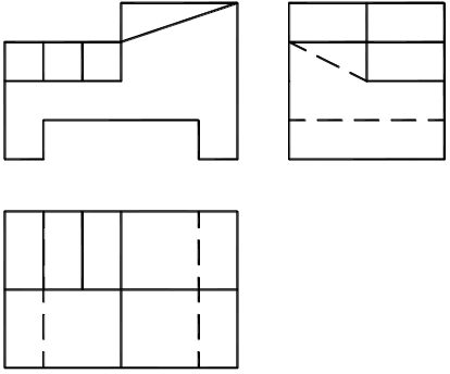
Analise a figura a seguir, composta de três vistas ortográficas no 1º diedro (em épura) de um determinado sólido.

A perspectiva isométrica desse sólido está corretamente representada em
Provas
No desenho auxiliado por computar, usando o AutoCAD, o comando utilizado para produzir um segmento inclinado no ponto de intersecção de dois segmentos de maneira a evitar um vértice agudo é denominado
Provas
Caderno Container