Foram encontradas 60 questões.
Os extintores são dispositivos de acionamento manual, destinados a combater princípios de incêndios. Devem ser colocados em locais visíveis, de fácil acesso e com sinalização compatível. A utilização de agentes extintores deve ser realizada, levando-se em conta as características do material em combustão. As classes de incêndio são divididas em: A, para fogo em materiais combustíveis sólidos; B, para fogo em líquidos inflamáveis; C, para fogo em equipamentos elétricos e D, para fogo em metais pirofóricos, tais como: magnésio, titânio e zircônio. Os extintores comumente utilizados para extinguir os focos de incêndios nas determinadas classes são: CO2, Pó Químico Seco, Água Pressurizada e Espuma. Das alternativas a seguir, qual é a incorreta?
Provas
Os vãos na alvenaria que receberão portas ou janelas são regiões que concentram tensões. Para tanto, nessas regiões são utilizadas vergas (parte superior de portas e janelas) e contravergas (parte inferior de janelas). Qual a alternativa que melhor define a função das vergas e contravergas?
Provas
As tesouras são estruturas comumente utilizadas em coberturas para o recebimento e distribuição dos esforços verticais do telhado e das cargas externas para estrutura do edifício. A figura a seguir representa uma tesoura e seus elementos constituintes. Os elementos identificados na figura como 1, 2, 3, 4 e 5 são respectivamente:

Provas
As instalações hidráulicas são compostas por um conjunto de tubulações e equipamentos destinados ao transporte e controle do fluxo de água, esgoto e demais fluídos em uma edificação. Qual é a alternativa que não apresenta um sistema constituinte das instalações hidro sanitárias?
Provas
Considerando as principais características do sistema de revestimentos em uma edificação, assinale a alternativa que não corresponde às finalidades do mesmo.
Provas
A instalação de registro de fechamento para interromper o fluxo de água para reparos, substituições de peças sanitárias entre outros serviços se faz necessário; e para essa função são utilizados, geralmente, registros de:
Provas
Os diâmetros mínimos para os ramais de esgotamento sanitários dos aparelhos: bacia sanitária, lavatório, chuveiro e máquina de lavar roupas são, respectivamente:
Provas
Os efluentes, nos trechos horizontais de escoamento, devem apresentar declividade mínima para que escoem por gravidade. Sabe-se que o coletor predial recebe os efluentes de toda a edificação e os subcoletores podem receber efluentes de um ou mais tubos de queda ou de ramais de esgoto. A declividade mínima e máxima que deve ser adotada para coletores prediais e subcoletores para tubulações com DN 100, é de:
Provas
As estacas pré-moldadas de concreto são amplamente utilizadas na construção civil. O processo mais utilizado para cravação é o dinâmico com o uso de um bate-estacas. Sabe-se que o comprimento de cravação real às vezes difere do previsto pela sondagem, levando à necessidade de emendas ou de corte. A cota na qual deve ser deixado o topo de uma estaca, demolindo ou cortando o excesso, recebe o nome de:
Provas

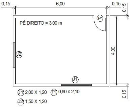
Considerando, ainda, as dimensões indicadas na figura, é necessário conhecer a quantidade de tinta para a pintura das paredes externas, internas e da laje do forro, com duas demãos. Considerando que uma lata de tinta tem 18 litros e rendimento de 200 m2/lata e que um galão de tinta tem 3,6 litros, com rendimento de 40 m2/galão, qual das alternativas apresenta a quantidade, em litros, de tinta necessária para realizar o serviço de pintura?
Provas
Caderno Container