Foram encontradas 60 questões.
Leia o texto a seguir para responder a questão.
.
Fundamental competencies for
Special Collections Professionals
Today's special collections environments are increasingly diverse. They vary significantly with regard to institutional setting, nature of collections, scope of functions and services, and audience. A special collections professional may experience much of this variety over the course of his/her career, taking on different public and technical service duties, curatorial functions, and management responsibilities. Even those who remain focused on a single functional specialty within one institution will best contribute to that institution's vitality and success by developing broad awareness of the full
array of responsibilities that define the field as a whole. We assume a professional who gradually achieves such general proficiency over the course of his/her career; full mastery in all areas, however, is by no means expected.
(http://www.ala.org/acrl/standards/comp4specollect. Adaptado)
De acordo com o trecho, as chamadas Coleções Especiais em bibliotecas.
Fundamental competencies for
Special Collections Professionals
Today's special collections environments are increasingly diverse. They vary significantly with regard to institutional setting, nature of collections, scope of functions and services, and audience. A special collections professional may experience much of this variety over the course of his/her career, taking on different public and technical service duties, curatorial functions, and management responsibilities. Even those who remain focused on a single functional specialty within one institution will best contribute to that institution's vitality and success by developing broad awareness of the full
array of responsibilities that define the field as a whole. We assume a professional who gradually achieves such general proficiency over the course of his/her career; full mastery in all areas, however, is by no means expected.
(http://www.ala.org/acrl/standards/comp4specollect. Adaptado)
Provas
Questão presente nas seguintes provas
Cataloging Electronic Resources
A frase do texto – Electronic resources have challenged the principles and practices of cataloging over the last several years. – indica que Within the last few years, electronic resources have
become a prominent, if not the most dominant, means of
discovery and research for users of all types of libraries.
Although much of the electronic content for which libraries
provide access is in the form of electronic journals, there is
a growing proliferation of databases and indexes that lead
users directly to full-text content, both serial and monographic.
The variety of electronic resources and means of accessing
them has led to discussions regarding cataloging and online
resource management. Workflow and concomitant staffing
issues have also become prevalent in the literature as libraries
adjust to the realities of acquiring and processing these non-
print materials. Electronic resources have challenged the
principles and practices of cataloging over the last several
years. The complex nature of cataloging and the changes
necessitated by electronic resources have led to the need for
guides to explain the rules in what may be perceived as more
“practical” terms.
(http://www.ala.org/alcts/resources/org/cat/research/cat_eresource06.Adaptado)
Provas
Questão presente nas seguintes provas
Leia o texto a seguir para responder a questão.
.
Fundamental competencies for
Special Collections Professionals
Today's special collections environments are increasingly diverse. They vary significantly with regard to institutional setting, nature of collections, scope of functions and services, and audience. A special collections professional may experience much of this variety over the course of his/her career, taking on different public and technical service duties, curatorial functions, and management responsibilities. Even those who remain focused on a single functional specialty within one institution will best contribute to that institution's vitality and success by developing broad awareness of the full
array of responsibilities that define the field as a whole. We assume a professional who gradually achieves such general proficiency over the course of his/her career; full mastery in all areas, however, is by no means expected.
(http://www.ala.org/acrl/standards/comp4specollect. Adaptado)
A quarta frase do texto – Even those who remain focused on a single functional specialty within one institution… – aponta para um profissional cujo perfil.
Fundamental competencies for
Special Collections Professionals
Today's special collections environments are increasingly diverse. They vary significantly with regard to institutional setting, nature of collections, scope of functions and services, and audience. A special collections professional may experience much of this variety over the course of his/her career, taking on different public and technical service duties, curatorial functions, and management responsibilities. Even those who remain focused on a single functional specialty within one institution will best contribute to that institution's vitality and success by developing broad awareness of the full
array of responsibilities that define the field as a whole. We assume a professional who gradually achieves such general proficiency over the course of his/her career; full mastery in all areas, however, is by no means expected.
(http://www.ala.org/acrl/standards/comp4specollect. Adaptado)
Provas
Questão presente nas seguintes provas
Leia o texto a seguir para responder a questão.
.
Fundamental competencies for
Special Collections Professionals
Today's special collections environments are increasingly diverse. They vary significantly with regard to institutional setting, nature of collections, scope of functions and services, and audience. A special collections professional may experience much of this variety over the course of his/her career, taking on different public and technical service duties, curatorial functions, and management responsibilities. Even those who remain focused on a single functional specialty within one institution will best contribute to that institution's vitality and success by developing broad awareness of the full
array of responsibilities that define the field as a whole. We assume a professional who gradually achieves such general proficiency over the course of his/her career; full mastery in all areas, however, is by no means expected.
(http://www.ala.org/acrl/standards/comp4specollect. Adaptado)
No fragmento – ... developing broad awareness of the full array of responsibilities that define the field as a whole. – a expressão em destaque, no contexto em que aparece, associa-se, em português, à ideia de desenvolver.
Fundamental competencies for
Special Collections Professionals
Today's special collections environments are increasingly diverse. They vary significantly with regard to institutional setting, nature of collections, scope of functions and services, and audience. A special collections professional may experience much of this variety over the course of his/her career, taking on different public and technical service duties, curatorial functions, and management responsibilities. Even those who remain focused on a single functional specialty within one institution will best contribute to that institution's vitality and success by developing broad awareness of the full
array of responsibilities that define the field as a whole. We assume a professional who gradually achieves such general proficiency over the course of his/her career; full mastery in all areas, however, is by no means expected.
(http://www.ala.org/acrl/standards/comp4specollect. Adaptado)
Provas
Questão presente nas seguintes provas
Cataloging Electronic Resources
De acordo com o trecho, Within the last few years, electronic resources have
become a prominent, if not the most dominant, means of
discovery and research for users of all types of libraries.
Although much of the electronic content for which libraries
provide access is in the form of electronic journals, there is
a growing proliferation of databases and indexes that lead
users directly to full-text content, both serial and monographic.
The variety of electronic resources and means of accessing
them has led to discussions regarding cataloging and online
resource management. Workflow and concomitant staffing
issues have also become prevalent in the literature as libraries
adjust to the realities of acquiring and processing these non-
print materials. Electronic resources have challenged the
principles and practices of cataloging over the last several
years. The complex nature of cataloging and the changes
necessitated by electronic resources have led to the need for
guides to explain the rules in what may be perceived as more
“practical” terms.
(http://www.ala.org/alcts/resources/org/cat/research/cat_eresource06.Adaptado)
Provas
Questão presente nas seguintes provas
Uma biblioteca recebeu um lote de livros que foram totalmente colocados em pilhas, cada uma delas com 20 livros. Porém, por motivos práticos, 2 pilhas tiveram que ser desfeitas, o que fez com que cada uma das pilhas restantes ficasse com 5 livros a mais. O número total de livros do lote era
Provas
Questão presente nas seguintes provas
Um determinado livro é vendido em três versões: capa mole ou capa dura ou edição de bolso. O valor do livro na versão edição de bolso custa R$ 10,00 a menos do que na versão de capa mole e R$ 18,00 a menos do que na versão de capa dura. Se a soma dos valores de um exemplar de cada versão é R$ 94,00, então o valor de um exemplar, na versão de capa dura, é
Provas
Questão presente nas seguintes provas
A tabela mostra o número de livros de cada gênero, vendidos em certo dia, por uma livraria e o respectivo valor unitário de cada um.
Gênero N° de livros vendidos Valor unitário
Aventura 14 R$ 35,00 Romance 23 R$ 30,00 Ficção 15 R$ 36,00 Policial x R$ 25,00
Considerando-se o número total de livros vendidos, apresentados na tabela, cada livro custou, em média, R$ 31,00. O número de livros do gênero policial, vendidos nesse dia, foi
Gênero N° de livros vendidos Valor unitário
Aventura 14 R$ 35,00 Romance 23 R$ 30,00 Ficção 15 R$ 36,00 Policial x R$ 25,00
Considerando-se o número total de livros vendidos, apresentados na tabela, cada livro custou, em média, R$ 31,00. O número de livros do gênero policial, vendidos nesse dia, foi
Provas
Questão presente nas seguintes provas
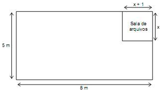
Um escritório possui uma sala retangular, para reuniões, com 8 m de comprimento por 5 m de largura, que será dividida para que se possa fazer uma pequena sala de arquivos, conforme mostra a figura, fora de escala.

Sabendo-se que a área da sala de arquivos irá ocupar 15% da área original da sala de reuniões e desprezando- -se as espessuras das paredes da sala de arquivos, é correto afirmar que o número de metros a menos que o perímetro da sala de arquivos terá, em relação ao perímetro da sala original de reuniões, será

Sabendo-se que a área da sala de arquivos irá ocupar 15% da área original da sala de reuniões e desprezando- -se as espessuras das paredes da sala de arquivos, é correto afirmar que o número de metros a menos que o perímetro da sala de arquivos terá, em relação ao perímetro da sala original de reuniões, será
Provas
Questão presente nas seguintes provas
Na estante do escritório de um professor de matemática, há, no total, 315 livros, sendo que a razão entre o número de livros de matemática e o número de livros sobre outros assuntos é 3/4. Após a compra de mais alguns livros de matemática, a razão entre o número de livros de matemática e o número de livros sobre outros assuntos passou a ser 7/9. O número de livros de matemática comprados foi
Provas
Questão presente nas seguintes provas
Cadernos
Caderno Container