Foram encontradas 40 questões.
A NBR 5410 (Instalações Elétricas de Baixa Tensão – Procedimentos) especifica que os condutores de eletricidade para instalações prediais serão diferenciados por cores. Avalie as afirmativas a seguir:
1. O condutor neutro deve ser azul-claro.
2. O condutor de retorno deve ser branco.
3. O condutor de fase deve ser vermelho.
4. O condutor de proteção (terra) deve ser verde ou verde-amarelo.
Assinale a alternativa correta.
Provas
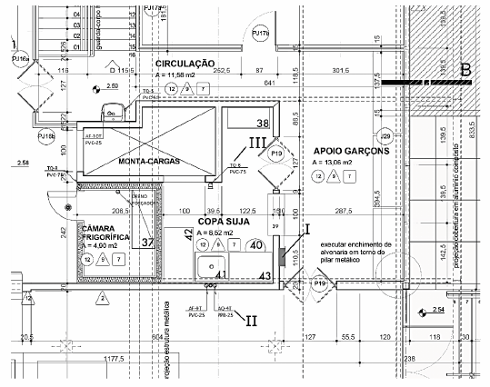
O projeto executivo de uma edificação deve ser baseado no anteprojeto de arquitetura e nos anteprojetos das disciplinas complementares (estruturas, instalações elétricas, sanitárias, etc.). A partir do cruzamento das várias informações, se obtém o projeto executivo compatibilizado. Observe atentamente o fragmento de projeto a seguir:

Assinale a alternativa correta sobre a identificação dos itens I, II e III destacados na planta:
Provas
As fundações de edifícios têm a função de transferir as cargas da estrutura para o solo. Sobre esse elemento construtivo, assinale a alternativa correta:
Provas
As instalações prediais de esgoto sanitário devem permitir o rápido escoamento dos despejos, não permitir vazamentos de gases e impedir a contaminação da água potável. Sobre esgoto sanitário é correto afirmar:
Provas
Elementos estruturais em concreto armado, de grandes dimensões, tais como vigas ou pilares, podem exigir que barras de aço sejam unidas por meio de solda, no próprio canteiro de obras. Sobre esse processo, considere as seguintes afirmativas:
1. As emendas soldadas podem ser de topo, por traspasse e por justaposição de barras.
2. Emendas de topo com solda por eletrodo podem ser utilizadas com barras com diâmetro maior ou igual a 20 mm.
3. As emendas por solda podem ser realizadas em todas as barras de uma seção transversal do elemento estrutural.
4. As barras podem ser dobradas junto à emenda por solda, pois, tipicamente, o material da solda é mais resistente que o da barra.
Assinale a alternativa correta.
Provas
O projeto estrutural de um pequeno edifício prevê o emprego de concreto com fck de 18Mpa. Assinale a alternativa que traz o valor correto da resistência de dosagem, fcj, considerando que o material será produzido em usina com alto controle tecnológico:
Provas
No concreto protendido, cabos de aço pré ou pós-tensionados passam a resistir ativamente aos esforços da estrutura. Assinale a afirmativa correta acerca das diferenças entre o concreto protendido e o concreto armado.
Provas
Placas de granito são muito utilizadas como material de revestimento de pisos, paredes e fachadas. Assinale a alternativa que lista, corretamente, parâmetros exigíveis para esses materiais, segundo a NBR 15844:
Provas
O engenheiro responsável por uma pequena obra de reforma solicita que você calcule a quantidade de brita que pode ser transportada na caçamba da picape representada abaixo. Sabendo que a capacidade máxima de carga do veículo é de 2400 kg, que as massas específicas real e aparente do agregado são, respectivamente, 2,60 t/m3 e 2,20 t/m3, assinale a quantidade correta, em m3:

Provas
Os blocos cerâmicos estão entre os materiais mais comumente utilizados na construção civil brasileira, tanto em obras residenciais quanto comerciais. Avalie as afirmativas abaixo, quanto à qualidade desses materiais:
1. Um bom bloco cerâmico deve ter boa sonoridade quando percutido.
2. A massa de um bom tijolo cerâmico deve ter aspecto heterogêneo.
3. A coloração de um bom bloco cerâmico deve ser variada, indo do vermelho-alaranjado ao cinza escuro.
4. As arestas firmes e vivas são características de um bom bloco cerâmico.
Assinale a alternativa correta.
Provas
Caderno Container