Foram encontradas 9.011 questões.
Em uma exposição de divulgação científica/popularização da ciência, assim como naquelas de outra natureza, o
público deve se sentir atraído pela exposição e se envolver
com ela - para tal, utilizam-se distintos recursos expográficos, com o intuito de tornar a exposição agradável e
educativa - até mesmo amigável -, sem perder o sentido
estético. Desse modo, quanto ao design de exposição,
analise as afirmações abaixo:
I. não envolve a definição dos recursos expográficos.
II. pode contribuir para que tais objetivos sejam alcançados.
III. envolve apenas a consideração de detalhes ornamentais ligados ao embelezamento estético.
Das afirmativas acima:
I. não envolve a definição dos recursos expográficos.
II. pode contribuir para que tais objetivos sejam alcançados.
III. envolve apenas a consideração de detalhes ornamentais ligados ao embelezamento estético.
Das afirmativas acima:
Provas
Questão presente nas seguintes provas
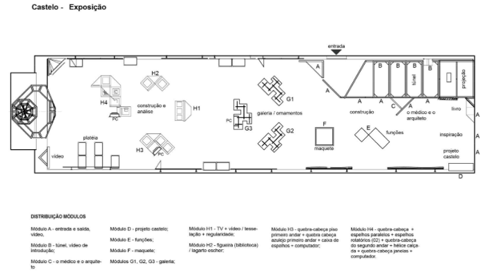
No arranjo físico (layout) de uma hipotética exposição, apresentado abaixo, a indicação de módulos revela que:

I - a definição de módulos para uma exposição pode ser relevante para a sua concepção, estruturação e desenvolvimento.
II - a definição de módulos cumpre uma função meramente indicativa, sem maiores implicações quanto ao seu planejamento e desenvolvimento.
III - a definição de módulos estabelece uma hierarquia rígida quanto ao sentido da ocupação do espaço expositivo, engessando a sua concepção e desenvolvimento.
Das afirmativas acima:
Provas
Questão presente nas seguintes provas
Naquilo que tange à CULTURA MATERIAL, os objetos que são expostos (assim como os do acervo) em um museu
de ciência e tecnologia (ou ainda em centros de ciências, planetários, jardins botânicos, e outros) poderiam se enquadrar
na seguinte classificação:
I. objetos científicos, que foram construídos com o propósito de investigação científica.
II. objetos pedagógicos, que foram construídos com o propósito de ensinar ciência.
III. objetos de divulgação da ciência, que foram construídos com o propósito de apresentar princípios da ciência a um público mais amplo, de leigos.
Das afirmativas acima:
I. objetos científicos, que foram construídos com o propósito de investigação científica.
II. objetos pedagógicos, que foram construídos com o propósito de ensinar ciência.
III. objetos de divulgação da ciência, que foram construídos com o propósito de apresentar princípios da ciência a um público mais amplo, de leigos.
Das afirmativas acima:
Provas
Questão presente nas seguintes provas
Nas exposições de divulgação científica/popularização
da ciência, naquilo que tange à realização dos processos de
transposição didática dos conteúdos para que os visitantes
os compreendam, o design:
Provas
Questão presente nas seguintes provas
A elaboração de maquetes, modelos físicos e virtuais,
e mesmo protótipos em um projeto de exposição de divulgação científica/popularização da ciência, em linhas gerais:
Provas
Questão presente nas seguintes provas
Na definição de objetivos, requisitos e restrições dentro do projeto de uma exposição de divulgação científica/
popularização da ciência, os aspectos de design:
Provas
Questão presente nas seguintes provas
O desenvolvimento/elaboração técnica de uma exposição de ciência e tecnologia, idealmente, envolve:
I. chegar a desenhos técnicos construtivos, especificação de mobiliários e outros elementos físicos.
II. programação visual incluindo guia de montagem.
III. descrição detalhada dos objetos adquiridos e relação de itens a serem monitorados ao longo da duração da exposição.
IV. relação detalhada e especificação pormenorizada de rebites, pinos, pregos, parafusos, arruelas, molas, linguetas, ímãs, prismas, roldanas, rolamentos, lentes biconvexas e itens similares que deverão ser adquiridos aos centos.
I. chegar a desenhos técnicos construtivos, especificação de mobiliários e outros elementos físicos.
II. programação visual incluindo guia de montagem.
III. descrição detalhada dos objetos adquiridos e relação de itens a serem monitorados ao longo da duração da exposição.
IV. relação detalhada e especificação pormenorizada de rebites, pinos, pregos, parafusos, arruelas, molas, linguetas, ímãs, prismas, roldanas, rolamentos, lentes biconvexas e itens similares que deverão ser adquiridos aos centos.
Provas
Questão presente nas seguintes provas
O designer pode estabelecer as relações entre o público
e o objeto exposto, ao ocupar-se de atividades que possibilitam a interação, envolvendo:
I. a disposição espacial dos elementos.
II. a luminotécnica.
III. a cor.
IV. a ambientação.
Sobre as afirmativas acima, pode-se dizer que:
I. a disposição espacial dos elementos.
II. a luminotécnica.
III. a cor.
IV. a ambientação.
Sobre as afirmativas acima, pode-se dizer que:
Provas
Questão presente nas seguintes provas
A interatividade em exposições de ciência e tecnologia,
do ponto de vista do design, deve ocorrer:
Provas
Questão presente nas seguintes provas
O papel da CURADORIA em exposições de divulgação científica/popularização da ciência, envolve compatibilizar demandas variadas. Pode-se dizer, então, que, na prática:
I. Não há uma definição a priori, pois isso depende de vários fatores.
II. A curadoria deve ser exercida apenas por cientistas.
III. A curadoria deve ser exercida apenas por técnicos especializados no tema da exposição.
IV. A curadoria deve ser exercida apenas por designers.
Das afirmativas acima:
I. Não há uma definição a priori, pois isso depende de vários fatores.
II. A curadoria deve ser exercida apenas por cientistas.
III. A curadoria deve ser exercida apenas por técnicos especializados no tema da exposição.
IV. A curadoria deve ser exercida apenas por designers.
Das afirmativas acima:
Provas
Questão presente nas seguintes provas
Cadernos
Caderno Container