Foram encontradas 5.225 questões.
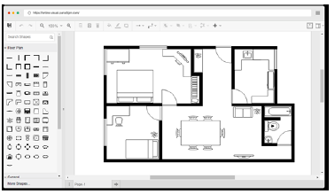
Observe a figura abaixo e responda ao que se pede.
Trata-se da planta baixa de um móvel que necessita de
serviços de pedreiro para fazer o acabamento dos
cômodos. À esquerda, na parte de cima da planta, temos
um quarto de casal, e abaixo dele um quarto menor(de
solteiro); à direita, na parte de cima, há um espaço para
cozinha, e abaixo o espaço da sala de jantar e estar e,
ainda, um banheiro.

Provas
Questão presente nas seguintes provas
- Sistemas e Processos Construtivos
- Materiais de construção em Edificações
- Métodos Construtivos
- Estruturas nos Sistemas e Processos Construtivos
Observe a figura abaixo e responda ao que se pede.
Trata-se da planta baixa de um móvel que necessita de
serviços de pedreiro para fazer o acabamento dos
cômodos. À esquerda, na parte de cima da planta, temos
um quarto de casal, e abaixo dele um quarto menor(de
solteiro); à direita, na parte de cima, há um espaço para
cozinha, e abaixo o espaço da sala de jantar e estar e,
ainda, um banheiro.

Passos na execução de uma laje:
( ) Colocar as mangueiras elétricas. ( ) Fazer as formas de madeira para delimitar o local onde o cimento preencherá. ( ) Respeitar os espaços para nervuras ou vigas deitadas e colocar o isopor. ( ) Colocar os ferros e/ou malha de ferro e amarrá-las. ( ) Encher a laje e alugar equipamento para tirar ar do concreto. ( ) Fazer as ferragens das vigas. ( ) Cobrir com lona e aguardar 7 dias. Molhar 1 vez a cada 24 horas durante estes os 7 primeiros dias. ( ) Impermeabilizar a laje. Caso alguma telha quebre você não terá problemas com infiltrações. ( ) Escorar com tora de madeira ou equipamento. ( ) Colocar as treliças pré-moldadas definidas pelo engenheiro.
A sequência correta da numeração é:
Provas
Questão presente nas seguintes provas
Observe a figura abaixo e responda ao que se pede.
Trata-se da planta baixa de um móvel que necessita de
serviços de pedreiro para fazer o acabamento dos
cômodos. À esquerda, na parte de cima da planta, temos
um quarto de casal, e abaixo dele um quarto menor(de
solteiro); à direita, na parte de cima, há um espaço para
cozinha, e abaixo o espaço da sala de jantar e estar e,
ainda, um banheiro.

Observe a imagem.

Esta ferramenta é conhecida como:
Provas
Questão presente nas seguintes provas
Observe a figura abaixo e responda ao que se pede.
Trata-se da planta baixa de um móvel que necessita de
serviços de pedreiro para fazer o acabamento dos
cômodos. À esquerda, na parte de cima da planta, temos
um quarto de casal, e abaixo dele um quarto menor(de
solteiro); à direita, na parte de cima, há um espaço para
cozinha, e abaixo o espaço da sala de jantar e estar e,
ainda, um banheiro.

Observe a imagem.

Trata-se do instrumento denominado:
Provas
Questão presente nas seguintes provas
Observe a figura abaixo e responda ao que se pede.
Trata-se da planta baixa de um móvel que necessita de
serviços de pedreiro para fazer o acabamento dos
cômodos. À esquerda, na parte de cima da planta, temos
um quarto de casal, e abaixo dele um quarto menor(de
solteiro); à direita, na parte de cima, há um espaço para
cozinha, e abaixo o espaço da sala de jantar e estar e,
ainda, um banheiro.

Esta ferramenta tem a função de:

Provas
Questão presente nas seguintes provas
Observe a figura abaixo e responda ao que se pede.
Trata-se da planta baixa de um móvel que necessita de
serviços de pedreiro para fazer o acabamento dos
cômodos. À esquerda, na parte de cima da planta, temos
um quarto de casal, e abaixo dele um quarto menor(de
solteiro); à direita, na parte de cima, há um espaço para
cozinha, e abaixo o espaço da sala de jantar e estar e,
ainda, um banheiro.

Provas
Questão presente nas seguintes provas
Observe a figura abaixo e responda ao que se pede.
Trata-se da planta baixa de um móvel que necessita de
serviços de pedreiro para fazer o acabamento dos
cômodos. À esquerda, na parte de cima da planta, temos
um quarto de casal, e abaixo dele um quarto menor(de
solteiro); à direita, na parte de cima, há um espaço para
cozinha, e abaixo o espaço da sala de jantar e estar e,
ainda, um banheiro.

Saco de 20kg cimento- R$22,00 Saco de 20 kg pedra/ brita- R$ 6,00 Saco de 2kg areia- R$2,00 Saco de 2kg de gesso- R$13,00
O valor dessa compra do Pedreiro será:
Provas
Questão presente nas seguintes provas
Observe a figura abaixo e responda ao que se pede.
Trata-se da planta baixa de um móvel que necessita de
serviços de pedreiro para fazer o acabamento dos
cômodos. À esquerda, na parte de cima da planta, temos
um quarto de casal, e abaixo dele um quarto menor(de
solteiro); à direita, na parte de cima, há um espaço para
cozinha, e abaixo o espaço da sala de jantar e estar e,
ainda, um banheiro.

Provas
Questão presente nas seguintes provas
Observe a figura abaixo e responda ao que se pede.
Trata-se da planta baixa de um móvel que necessita de
serviços de pedreiro para fazer o acabamento dos
cômodos. À esquerda, na parte de cima da planta, temos
um quarto de casal, e abaixo dele um quarto menor(de
solteiro); à direita, na parte de cima, há um espaço para
cozinha, e abaixo o espaço da sala de jantar e estar e,
ainda, um banheiro.

Provas
Questão presente nas seguintes provas
Observe a figura abaixo e responda ao que se pede.
Trata-se da planta baixa de um móvel que necessita de
serviços de pedreiro para fazer o acabamento dos
cômodos. À esquerda, na parte de cima da planta, temos
um quarto de casal, e abaixo dele um quarto menor(de
solteiro); à direita, na parte de cima, há um espaço para
cozinha, e abaixo o espaço da sala de jantar e estar e,
ainda, um banheiro.

Provas
Questão presente nas seguintes provas
Cadernos
Caderno Container