Foram encontradas 5.198 questões.
Considerando as representações a seguir,
assinale a alternativa correspondente ao
condutor representado.


Provas
Questão presente nas seguintes provas
Considerando a imagem a seguir assinale a alternativa correspondente ao material representado.

Provas
Questão presente nas seguintes provas
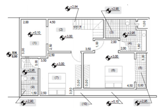
Verificando as cotas do nível de desenho, é correto afirmar que o ambiente (7)


Provas
Questão presente nas seguintes provas
O texto e os quadros a seguir se refere a questão.
Uma obra foi orçada em R$ 2.000.000,00. Os percentuais de cada serviço da planilha orçamentária e o cronograma físico-financeiro previstos são os seguintes:
Percentuais dos serviços
| Item | Serviço | % |
| 01 | Serviços preliminares | 5 |
| 02 | Fundações | 5 |
| 03 | Estruturas | 20 |
| 04 | Instalações | 5 |
| 05 | Alvenaria | 5 |
| 06 | Revestimentos | 10 |
| 07 | Soleira, peitoril e rodapé | 1 |
| 08 | Esquadrias e ferragens | 15 |
| 09 | Pavimentação | 10 |
| 10 | Impermeabilização | 3 |
| 11 | Louças e metais | 5 |
| 12 | Pintura | 10 |
| 13 | Cobertura | 5 |
| 14 | Limpeza | 1 |
| Item | Serviço | Mês | |||||
| 1 | 2 | 3 | 4 | 5 | 6 | ||
| 01 | Serviços preliminares | 40 | 60 | ||||
| 02 | Fundações | 60 | 40 | ||||
| 03 | Estruturas | 20 | 60 | 20 | |||
| 04 | Instalações | 20 | 40 | 30 | 10 | ||
| 05 | Alvenaria | 30 | 60 | 10 | |||
| 06 | Revestimentos | 20 | 40 | 30 | 10 | ||
| 07 | Soleira, peitoril e rodapé | 50 | 40 | 10 | |||
| 08 | Esquadrias e ferragens | 20 | 50 | 30 | |||
| 09 | Pavimentação | 50 | 30 | 20 | |||
| 10 | Impermeabilização | 30 | 60 | 10 | |||
| 11 | Louças e metais | 40 | 40 | 20 | |||
| 12 | Pintura | 50 | 50 | ||||
| 13 | Cobertura | 40 | 60 | ||||
| 14 | Limpeza | 40 | 60 | ||||
Qual é o valor do desembolso realizado nos 2 primeiros meses da obra?
Provas
Questão presente nas seguintes provas
O texto e os quadros a seguir se refere a questão.
Uma obra foi orçada em R$ 2.000.000,00. Os percentuais de cada serviço da planilha orçamentária e o cronograma físico-financeiro previstos são os seguintes:
Percentuais dos serviços
| Item | Serviço | % |
| 01 | Serviços preliminares | 5 |
| 02 | Fundações | 5 |
| 03 | Estruturas | 20 |
| 04 | Instalações | 5 |
| 05 | Alvenaria | 5 |
| 06 | Revestimentos | 10 |
| 07 | Soleira, peitoril e rodapé | 1 |
| 08 | Esquadrias e ferragens | 15 |
| 09 | Pavimentação | 10 |
| 10 | Impermeabilização | 3 |
| 11 | Louças e metais | 5 |
| 12 | Pintura | 10 |
| 13 | Cobertura | 5 |
| 14 | Limpeza | 1 |
| Item | Serviço | Mês | |||||
| 1 | 2 | 3 | 4 | 5 | 6 | ||
| 01 | Serviços preliminares | 40 | 60 | ||||
| 02 | Fundações | 60 | 40 | ||||
| 03 | Estruturas | 20 | 60 | 20 | |||
| 04 | Instalações | 20 | 40 | 30 | 10 | ||
| 05 | Alvenaria | 30 | 60 | 10 | |||
| 06 | Revestimentos | 20 | 40 | 30 | 10 | ||
| 07 | Soleira, peitoril e rodapé | 50 | 40 | 10 | |||
| 08 | Esquadrias e ferragens | 20 | 50 | 30 | |||
| 09 | Pavimentação | 50 | 30 | 20 | |||
| 10 | Impermeabilização | 30 | 60 | 10 | |||
| 11 | Louças e metais | 40 | 40 | 20 | |||
| 12 | Pintura | 50 | 50 | ||||
| 13 | Cobertura | 40 | 60 | ||||
| 14 | Limpeza | 40 | 60 | ||||
O mês em que está previsto o maior desembolso e o valor desse desembolso são, respectivamente,
Provas
Questão presente nas seguintes provas
- Sistemas e Processos Construtivos
- Aspectos Legais e Burocráticos em Edificações
- Estruturas nos Sistemas e Processos Construtivos
De acordo com a NBR 7200/1998, assinale
a alternativa que apresenta boas práticas
relativas ao preparo de argamassa.
Provas
Questão presente nas seguintes provas
Considerando que os recursos disponíveis
para determinada construção sejam de R$
4 milhões, assinale, entre as situações a
seguir, a correta do ponto de vista técnico-financeiro.
Provas
Questão presente nas seguintes provas
- Sistemas e Processos Construtivos
- Aspectos Legais e Burocráticos em Edificações
- Estruturas nos Sistemas e Processos Construtivos
De acordo com a norma NBR 6122, fundações
profundas são aquelas cujas bases estão
implantadas a uma profundidade superior
a duas vezes a sua menor dimensão e a,
pelo menos, 3 m de profundidade. Assinale
a alternativa que apresenta um tipo de
fundação profunda.
Provas
Questão presente nas seguintes provas
Um dos ensaios mais comuns para o controle do recebimento do concreto em uma obra é o slump
test ou ensaio de abatimento do cone. Para o concreto preparado pelo construtor da obra, devem ser
realizados ensaios de consistência sempre que ocorrerem alterações na umidade dos agregados e
em outras condições. Assinale a alternativa que NÃO corresponde a uma condição para realização
desse ensaio.
Provas
Questão presente nas seguintes provas
De acordo com a NBR 8160/1999 sobre
sistemas prediais de esgoto sanitário –
projeto e execução, assinale a alternativa
correta quanto a relação entre o aparelho
sanitário, o número de unidades Hunter de
contribuição e o diâmetro nominal mínimo
do ramal de descarga (DN).
Provas
Questão presente nas seguintes provas
Cadernos
Caderno Container