Foram encontradas 5.198 questões.
Provas
Provas
Provas

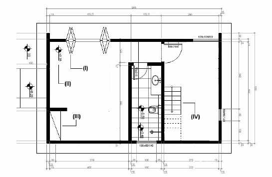
A figura acima mostra parte da planta de uma determinada edificação, na qual são representados esquematicamente os principais elementos desse projeto arquitetônico. Nessa figura, o elemento identificado pelo número
Provas
Uma das alternativas para o tratamento dos resíduos sólidos domésticos é a compostagem, técnica que pode ser aplicada em diferentes portes de comunidades. A respeito desse processo, assinale a opção correta.
Provas
Nas instalações sanitárias para esgoto sanitário, peças e conexões são empregadas para atender finalidades específicas. Com relação à nomenclatura desses componentes e à sua função, assinale a opção correta.
Provas
Na execução das instalações de água nas edificações, algumas disposições construtivas devem ser obedecidas, para que o conjunto funcione adequadamente. Acerca dessas disposições construtivas, assinale a opção correta.
Provas
Na execução dos trabalhos de pavimentação, são empregados diversos equipamentos pesados, devido ao porte das obras e às exigências por processos mecanizados. Cada tipo de serviço exige um tipo especial de equipamento. Assinale a opção que apresenta a relação correta entre equipamento e função.
Provas
Na execução de alvenaria de tijolos maciços sem função estrutural, está previsto o uso de ferramentas e componentes construtivos que são padronizados em suas nomenclaturas e funções. Acerca desse assunto, assinale a opção correta.
Provas
Para a construção de baldrames em elementos complementares das edificações, tais como muros de arrimo, é necessário seguir alguns procedimentos para que esse componente da edificação cumpra sua função no conjunto da obra. A respeito desse assunto, assinale a opção correta.
Provas
Caderno Container