Foram encontradas 25.398 questões.
Considere os desenhos dos Apartamentos Al Rabissale (1970-74) em Misuno, Suiça, projeto do arquiteto Luigi Snozzi.




Em relação aos princípios e características dessa arquitetura,
Provas
Considere a seguinte afirmação de Maurice Merleau-Ponty (1908-61), importante filósofo fenomenólogo francês:
“A ciência manipula as coisas e renuncia habitá-las. Estabelece modelos internos delas e, operando sobre esses índices ou variáveis as transformações permitidas por sua definição, só de longe em longe se confronta com o mundo real.”
Sobre o conceito de Lugar, intimamente ligado à adoção de uma fenomenologia da arquitetura, constata-se que:
I. Lugar é um fenômeno qualitativo total, que não pode se reduzir a nenhuma de suas propriedades, como as relações espaciais, sem que se perca de vista sua natureza concreta.
II. Sendo totalidades qualitativas de natureza complexa, os lugares não podem ser definidos por meio de conceitos analíticos, “científicos”.
III. A fenomenologia foi concebida como um “retorno às coisas” em oposição às abstrações e construções mentais.
IV. Enquanto “espaço” indica a organização tridimensional dos elementos que formam um lugar, o “caráter” denota a “atmosfera” geral que é a propriedade mais abrangente de um lugar.
Está correto o que se afirma em
Provas
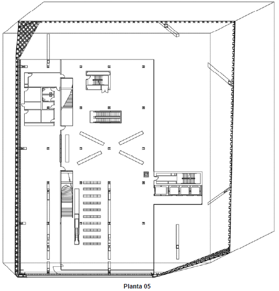
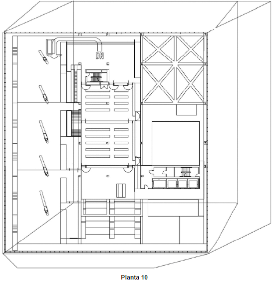
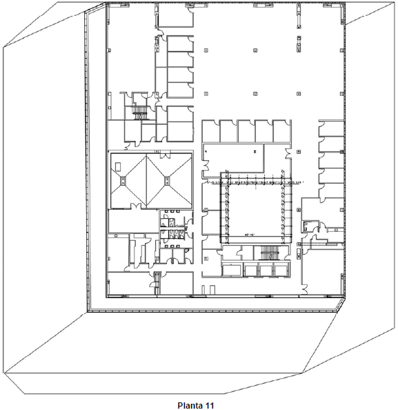
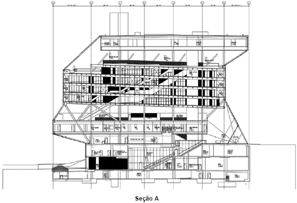
Considere a seguir os desenhos e as imagens da Biblioteca Central de Seattle (2004), Estados Unidos, do arquiteto Rem Koolhaas (OMA/LMN).













Em relação aos princípios dessa arquitetura, considere:
I. Intercalam-se, na vertical, camadas de vazios “vibrantes” – praças da multidão – e espaços da clausura – como nas câmaras escuras e nos corredores de “hieróglifos” silenciosos das pirâmides.
II. Uma sequência de escadas rolantes na vertical garante uma passagem tênue e fluida entre camadas, favorecendo o entrelaçamento entre elas. Uma espiral de vários andares, abrigando o acervo da biblioteca, complementa o papel das escadas rolantes.
III. A presença das escadas rolantes articulando diretamente as três praças, além da espiral dos livros, facilita e acentua a circulação na vertical, o que favorece as trocas entre os ambientes, dinamizando-os.
IV. A superposição dos andares no típico high rise − arranha-céu − americano é mais sensível (a geometria fornece sombra e luz natural, onde desejável) do que contextual (cada lado reage de maneira diferente às condições urbanas específicas) ou icônico.
Está correto o que se afirma em
Provas
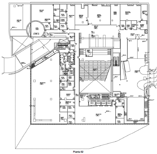
Considere a seguir os desenhos e as imagens do Conjunto para Moradia Estudantil da Unifesp em Osasco (2015), SP, projeto do escritório H+F Arquitetos.









Em relação aos princípios e características dessa arquitetura,
Provas
De acordo com J.F.G. Monico, em “Posicionamento pelo GNSS: Descrição, Fundamentos e Aplicações”, um Sistema Geodésico de Referência (SGR) é definido com base em um conjunto de parâmetros e convenções, associados à figura de um elipsóide adequado às dimensões da Terra, constituindo um referencial apropriado para atribuição das posições de pontos sobre a superfície terrestre.
A evolução tecnológica propiciou o melhoramento dos SGR's ao longo do tempo, tanto no aspecto de definição do sistema, como no de sua realização. Em fevereiro de 2015, o IBGE instituiu que todos os usuários no Brasil devem adotar, exclusivamente, um único referencial em suas atividades. Trata-se do referencial geodésico
Provas
O Estádio Governador Magalhães Pinto, popularmente conhecido como Estádio do Mineirão, localizado na capital do Estado de Minas Gerais, Belo Horizonte, foi renovado em 2014 para a Copa do Mundo de 2014. A proposta do escritório BCMF Arquitetos seguiu as recomendações da FIFA para a criação de Ecoarenas e buscou qualificar o diálogo com a paisagem cultural da região e integrar o projeto ao conjunto Urbanístico-Arquitetônico da Lagoa da Pampulha. O projeto contempla também soluções sustentáveis, tomadas com o intuito de minimizar os impactos do estádio no meio à sua volta, tendo sido o primeiro estádio do Brasil (e o segundo do mundo) a obter o certificado LEED PLATINUM, certificação que determina benefícios econômicos, sociais e ambientais aos projetos.
NÃO representa um benefício sustentável ambiental utilizado nesse projeto:
Provas
Recuos e Afastamentos referem-se às distâncias entre as faces da construção e os limites do terreno. A partir dessa afirmação, o conceito, e a respectiva finalidade deste importante parâmetro urbanístico são:
| Conceito | Finalidade |
Provas
De acordo com a Norma Brasileira ABNT NBR 9050/2020, os espaços podem ter quatro definições básicas. Considere:
I. Espaços, mobiliários, equipamentos urbanos, edificações, transportes, informação e comunicação, inclusive seus sistemas e tecnologias ou elementos, que possam ser alcançados, acionados, utilizados e vivenciados por qualquer pessoa.
II. Espaço, edificação, mobiliário, equipamento urbano ou elemento cujas características possam ser alteradas para que se tornem acessíveis.
III. Espaço, edificação, mobiliário, equipamento urbano ou elemento cujas características originais foram alteradas posteriormente para serem acessíveis.
IV. Espaço, edificação, mobiliário, equipamento urbano ou elemento cujas características foram originalmente planejadas para serem acessíveis.
As definições de I a IV referem-se, respectivamente, aos seguintes termos:
Provas
No Brasil entende-se por zoneamento a divisão das cidades com vistas a atribuir diferentes usos e ocupação para distintas áreas. Essa divisão busca uma melhor utilização do espaço de acordo com o sistema viário, a topografia e a infraestrutura existente. Em relação ao que tange exclusivamente a lei de zoneamento, considere:
I. Disciplina as edificações, objetivando garantir as condições de higiene, saúde, conforto e segurança da população.
II. Estabelece exigências fundamentais de ordenação da cidade para cumprimento da função social da propriedade urbana.
III. Regula o uso do solo e a ocupação dos edifícios, a altura e o gabarito das construções, a proporção que estas podem ocupar e a densidade da população.
IV. Os municípios regem o zoneamento, por competência constitucional, a partir de suas leis municipais.
Está correto o que se afirma APENAS em
Provas
No que tange ao estudo de viabilidade econômico-financeiro das incorporações imobiliárias e a partir da afirmação que “a decisão do empresário em investir num projeto específico dependerá não apenas da perspectiva de geração de lucros, como também da existência de financiamento para a produção e potenciais compradores”, é correto afirmar que a decisão de incorporar é afetada
Provas
Caderno Container