Foram encontradas 317 questões.
Um dos esforços do trabalho do auditor consiste em buscar evidências que possam fundamentar suas conclusões sobre as demonstrações contábeis. As evidências podem ser relacionadas à finalidade para a qual são colhidas ou à sua natureza.
As evidências relacionadas à natureza correspondem a provas que servem para validar os registros contábeis.
Dos exemplos a seguir, o que NÃO constitui evidência quanto à natureza é:
Provas
Segundo as Normas Internacionais para a Prática Profissional de Auditoria Interna, a atividade de auditoria interna deve ser independente e os auditores internos devem ser objetivos ao executar seus trabalhos.
A independência dentro da organização é alcançada de forma efetiva quando o executivo chefe de auditoria se reporta funcionalmente ao conselho. São exemplos de reporte funcional quando o Conselho tem autonomia para:
I - aprovar o estatuto de auditoria interna;
II - aprovar o orçamento de auditoria;
III - aprovar a remuneração do executivo chefe de auditoria;
IV - definir o escopo da auditoria interna.
Está correto somente o que se afirma em:
Provas
Uma tubulação inclinada possui, em sua extremidade inicial, seção transversal com 100cm2 e, em sua extremidade final, 50cm2 . Na extremidade inicial, a pressão na tubulação vale 50kPa e a elevação é de 100m; na extremidade final, a pressão vale 100kPa e a elevação é de 80m.
Admitindo-se que a aceleração da gravidade vale 10m/s2 , a vazão na saída dessa tubulação é de:
Provas
Um tubo de parede grossa, composto por material cujo coeficiente de condução térmica vale 2,0W/m°C, possui diâmetro externo igual a 8,0cm e espessura de parede igual a 2,0cm. Sobre a parede externa desse tubo, é assentada uma camada de material isolante com espessura de 2cm e coeficiente de condução térmica igual a 1,0W/m°C.
Sabendo-se que a parede interna do tubo é mantida a 400°C e a superfície da camada isolante a 100°C, a perda de calor por unidade de comprimento, desprezando possíveis efeitos convectivos, vale:
(Dados: π ≈ 3,14; ln(3) ≈ 1,1; ln(2) ≈ 0,7)
Provas
As figuras a seguir apresentam duas leituras (1 e 2) feitas com o mesmo paquímetro.

A soma das medidas (1) e (2) vale:
Provas
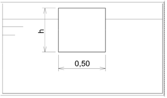
A figura a seguir apresenta um bloco de madeira com base quadrada de lado igual a 0,50m, posicionado em um tanque de água.

(dimensões em metros)
Sabendo-se que a madeira possui densidade igual a 0,75, a altura h que o bloco deve possuir para que flutue, na configuração indicada, em equilíbrio indiferente vale, aproximadamente:
Provas
A figura a seguir apresenta, esquematicamente, um mecanismo composto por uma manivela, CB, que oscila em torno de C através de um arco limitado, obrigando a manivela OA a oscilar em torno de O.

(dimensões em milímetros)
Sabe-se que, ao passar pela posição indicada na figura, a velocidade angular de CB vale 1rad/s no sentido anti-horário. Nesse mesmo instante, a velocidade angular de OA vale, aproximadamente:
Provas
Um cabo de aço, que sustenta um bloco B, que pesa 2,42kN, passa por uma roldana, conforme indicado esquematicamente na figura a seguir.

Sabendo-se que o coeficiente de atrito entre o cabo e a roldana vale 0,10, a menor carga P a ser aplicada ao cabo para que a carga não desça vale:
(Dados: π ≈ 3,00; ln(1,1) ≈ 0,10)
Provas
Texto 1 – Preâmbulo
O cristianismo impregna, com maior ou menor evidência, a vida cotidiana, os valores e as opções estéticas até mesmo dos que o ignoram. Ele contribui para o desenho da paisagem dos campos e das cidades. s vezes, ganha destaque no noticiário. Contudo, os conhecimentos necessários à interpretação dessa presença se apagam com rapidez. Com isso, a incompreensão aumenta.
Admirar o monte Saint-Michel e os monumentos de Roma, de Praga ou de Belém, deleitar-se com a música de Bach ou de Messiaen, contemplar os quadros de Rembrandt, apreciar verdadeiramente certas obras de Stendhal ou de Victor Hugo implica poder decifrar as referências cristãs que constituem a beleza desses lugares e dessas obras-primas. Entender os debates mais recentes sobre a colonização, as práticas humanitárias, a bioética, o choque de culturas também supõe um conhecimento do cristianismo, dos elementos fundamentais da sua doutrina, das peripécias que marcaram sua história, das etapas da sua adaptação ao mundo.
Foi nessa perspectiva que nos dirigimos a eminentes especialistas. Propusemos a eles que pusessem seu saber à disposição dos leitores de um vasto público culto. Isso, sem o peso da erudição, sem o emprego de um vocabulário excessivamente especializado, sem eventuais alusões a um suposto conhecimento prévio, que não tem mais uma existência real, e, claro, sem intenção de proselitismo. (História do Cristianismo, org. Alain Corbin. São Paulo: Martins Fontes. 2009. p.XIII).
Provas
Texto 2 – Comunicação Política na Suíça
Os cidadãos suíços são convocados a se pronunciar periodicamente, de quatro a cinco vezes por ano aproximadamente, sobre um total de quinze temas da atualidade política. Além de cada uma dessas votações populares, os cidadãos são convidados a dar suas opiniões (votando simplesmente sim ou não) sobre três ou quatro problemas de interesse nacional, aos quais se acrescentam alguns tópicos especiais dos cantões e das comunas. Esse sistema repousa sobre a iniciativa popular e sobre o referendum, que permitem a uma minoria, respectivamente 100.000 cidadãos, no caso da iniciativa popular, e 50.000, no caso do referendum, obrigar o conjunto do país a se interessar sobre o que a preocupa. (Argumentação, Hermès. Paris: CNRS Edições. 2011, p. 58)
Provas
Caderno Container