Foram encontradas 50 questões.
De acordo com as definições da NBR 14039, um barramento blindado é
Provas
O triângulo de potência é uma representação gráfica que relaciona os três tipos de potências encontradas na maioria das unidades consumidoras. Uma delas é a potência aparente. Sobre a potência aparente, está CORRETO afirmar que
Provas
Quando uma fonte CA alimenta um circuito composto por elementos indutivos e capacitivos em paralelo e se varia a frequência desde um valor praticamente nulo até um valor alto, o circuito apresentará características especiais que correspondem à condição denominada ressonância.
Nessa condição, está CORRETO afirmar que
Provas
Assinale a alternativa que NÃO apresenta uma aplicação da norma NBR-5410.
Provas
Considere dois indutores, L1 e L2, em série e posicionados de forma que seus campos eletromagnéticos não interajam quando alimentados por uma fonte de corrente alternada.
Nesse caso, está CORRETO afirmar que o valor de um indutor equivalente, Leq, será obtido a partir da expressão
Provas
Considere uma carga industrial alimentada por meio de uma linha de transmissão que tem uma impedância de linha de 0,1 + j 0,2 !$ Ω !$. A tensão da linha na carga é igual a 480 VRMS e 60 Hz. A carga consome 124 kW a 0,75 FP em atraso.
O valor da capacitância que, colocado em paralelo com a carga, muda o fator de potência para 0,9 em atraso é igual a
Provas
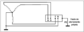
A NBR 5410 refere-se a três sistemas de aterramentos mais utilizados na indústria. Entre eles encontra-se o TN-S.
Nesse caso, assinale a alternativa que melhor representa esse sistema.
Provas
Observe um seccionalizador ligado à jusante de um religador.

Sobre esse equipamento, está CORRETO afirmar
Provas
Analise as seguintes afirmativas sobre Fator de Potência nos circuitos elétricos.
I. É uma característica da carga e varia entre 0 e 1.
II. Um alto fator de potência causa uma maior queda de tensão.
III. A instalação de capacitores corrige o fator de potência.
IV. Proporciona uma maior perda por efeito joule na instalação.
A partir dessa análise, pode-se concluir que estão CORRETAS apenas as afirmativas
Provas
Analise os seguintes dados nominais de uma máquina síncrona operando como gerador.
!$ \bullet !$ Número de fases = 3
!$ \bullet !$ Ligação em Estrela
!$ \bullet !$ Tensão nominal =230 V
!$ \bullet !$ Potência aparente = 60 kVA
!$ \bullet !$ Número de polos = 6
!$ \bullet !$ Frequência = 60 Hz
A partir desses dados, está CORRETO afirmar que a rotação síncrona desse gerador é igual a
Provas
Caderno Container