Foram encontradas 1.972 questões.
Um transformador monofásico de dois enrolamentos a óleo isolante, 60 Hz, 200 kVA, 15 kV / 400 V, R% = 3% e X% = 9%, foi conectado a dois outros transformadores idênticos a ele na constituição de um banco trifásico Dy5. Com relação a essa situação, julgue os itens seguintes.
Um transformador trifásico Yd1 poderia ser utilizado em paralelo com o banco trifásico de transformadores, desde que as tensões nominais do transformador fossem iguais às correspondentes tensões nominais do banco.
Provas
Um transformador monofásico de dois enrolamentos a óleo isolante, 60 Hz, 200 kVA, 15 kV / 400 V, R% = 3% e X% = 9%, foi conectado a dois outros transformadores idênticos a ele na constituição de um banco trifásico Dy5. Com relação a essa situação, julgue os itens seguintes.
A corrente nominal de linha do lado de alta tensão do banco trifásico é igual à corrente nominal de linha do lado de baixa tensão do banco trifásico multiplicada pelo quociente 
Provas
Um transformador monofásico de dois enrolamentos a óleo isolante, 60 Hz, 200 kVA, 15 kV / 400 V, R% = 3% e X% = 9%, foi conectado a dois outros transformadores idênticos a ele na constituição de um banco trifásico Dy5. Com relação a essa situação, julgue os itens seguintes.
O banco trifásico de transformadores apresenta potência nominal igual a 600 kVA, tensão nominal do lado de alta igual a
e tensão nominal do lado de baixa igual a 400 V.
Provas

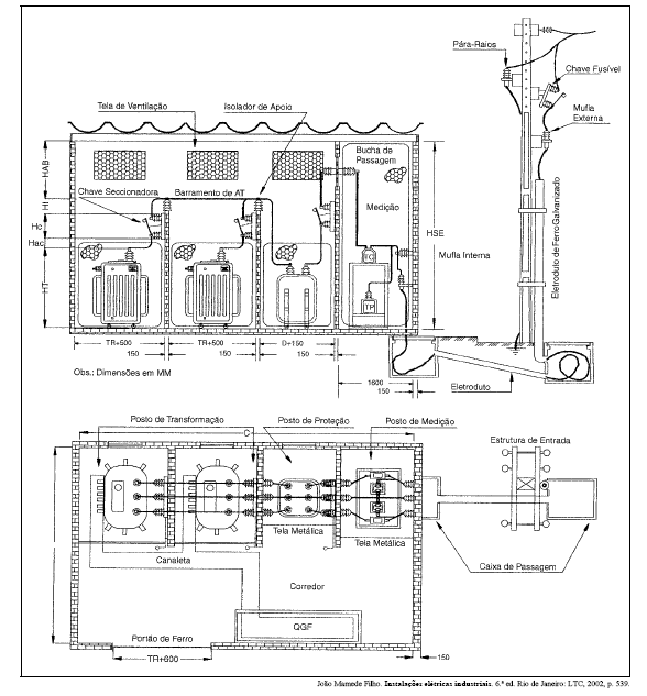
A figura acima mostra as vistas lateral e superior de uma subestação rebaixadora de consumidor industrial. Com relação a essa subestação e ao sistema elétrico industrial a que ela pertence, julgue os itens subseqüentes.
Essa subestação deve possuir uma malha de aterramento à qual devem estar conectadas todas as carcaças metálicas da subestação, sendo que as tensões de passo devem ser mantidas dentro dos limites estabelecidos pelas normas técnicas.
Provas

A figura acima mostra as vistas lateral e superior de uma subestação rebaixadora de consumidor industrial. Com relação a essa subestação e ao sistema elétrico industrial a que ela pertence, julgue os itens subseqüentes.
Os pára-raios instalados na "Estrutura de Entrada" estão conectados em delta, pois isso aumenta a capacidade de absorção de correntes oriundas de descargas atmosféricas.
Provas

A figura acima mostra as vistas lateral e superior de uma subestação rebaixadora de consumidor industrial. Com relação a essa subestação e ao sistema elétrico industrial a que ela pertence, julgue os itens subseqüentes.
A subestação é alimentada a partir de um ramal trifásico aéreo. Por outro lado, a alimentação do "QGF" dá-se por meio de canaleta embutida no piso.
Provas

A figura acima mostra as vistas lateral e superior de uma subestação rebaixadora de consumidor industrial. Com relação a essa subestação e ao sistema elétrico industrial a que ela pertence, julgue os itens subseqüentes.
Os dois transformadores são trifásicos e estão conectados em paralelo.
Provas

A figura acima mostra as vistas lateral e superior de uma subestação rebaixadora de consumidor industrial. Com relação a essa subestação e ao sistema elétrico industrial a que ela pertence, julgue os itens subseqüentes.
O disjuntor da subestação pode ser um disjuntor a óleo, que é capaz de realizar manobras com carga e que utiliza uma câmara com óleo para a extinção do arco.
Provas

A figura acima mostra as vistas lateral e superior de uma subestação rebaixadora de consumidor industrial. Com relação a essa subestação e ao sistema elétrico industrial a que ela pertence, julgue os itens subseqüentes.
A subestação apresenta chaves seccionadoras tripolares de alta tensão para manobras a vazio e disjuntor tripolar de alta tensão.
Provas

A figura acima mostra as vistas lateral e superior de uma subestação rebaixadora de consumidor industrial. Com relação a essa subestação e ao sistema elétrico industrial a que ela pertence, julgue os itens subseqüentes.
Uma vez que a alimentação da concessionária é equilibrada, o "Posto de Medição" utiliza apenas um TP. Todavia, como a carga nem sempre é equilibrada, o "Posto de Medição" utiliza três TCs.
Provas
Caderno Container