Foram encontradas 765 questões.
- Organização dos PoderesPoder LegislativoFiscalização Contábil, Financeira e Orçamentária da UniãoTribunal de Contas da União (TCU)
O Sistema de Controle Interno deve ser mantido, de forma integrada, por cada Poder da Federação (Legislativo, Executivo e Judiciário).
Segundo a Constituição Federal, o Sistema de Controle Interno, tem a finalidade de, entre outras,
Provas
Questão presente nas seguintes provas
Em relação às Normas de segurança do trabalho aplicadas à construção civil, é correto afirmar:
Provas
Questão presente nas seguintes provas
Durante os procedimentos para a licitação da hipotética reforma da Unidade Funcional de São Vicente da Defensoria Pública do
Estado de São Paulo, foi constatado que havia custos unitários de insumos e serviços excedendo os valores estipulados pelo
Sistema Nacional de Pesquisa de Custos e Índices da Construção Civil − SINAPI. Tal procedimento, à vista da legislação
vigente, é
Provas
Questão presente nas seguintes provas
Considere as afirmações abaixo, sobre o Código de Ética e Disciplina do Conselho de Arquitetura e Urbanismo do Brasil. I. O descumprimento de uma recomendação será considerado infração ético-disciplinar imputável. II. A transgressão a uma regra não pressupõe cominação de sanção. III. Princípio é uma norma de maior abrangência, cujo caráter teórico abstrato referencia agrupamentos de normas subordinadas.
Está correto o que consta APENAS em
Provas
Questão presente nas seguintes provas
- Tecnologia das ConstruçõesSistemas e Elementos ConstrutivosMateriais para Construção
- Tecnologia das ConstruçõesVedações
Sobre o dry wall é correto afirmar:
Provas
Questão presente nas seguintes provas
Compete à Fiscalização de Obras Públicas:
Provas
Questão presente nas seguintes provas
- Planejamento e Controle de Obras
- Processos de ProjetoEtapas do Processo
- Tecnologia das ConstruçõesSistemas e Elementos Construtivos
Com relação à coordenação de projetos, são considerados como serviços essenciais − ou seja, deve estar presente no projeto
de todo e qualquer empreendimento − na fase de Detalhamento de Projetos:
Provas
Questão presente nas seguintes provas
A figura abaixo representa o fluxo da documentação do programa de manutenção de uma edificação.

De acordo com a Norma Brasileira para Manutenção de Edificações, os itens I, II, III, IV e V, correspondem respectivamente, a:

De acordo com a Norma Brasileira para Manutenção de Edificações, os itens I, II, III, IV e V, correspondem respectivamente, a:
Provas
Questão presente nas seguintes provas
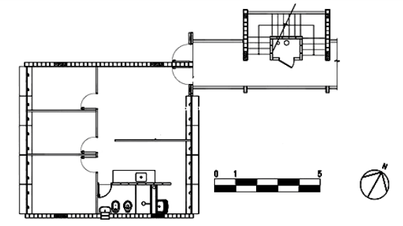
Analise as figuras abaixo.

As figuras 1 e 2 correspondem, correta e respectivamente, a
Provas
Questão presente nas seguintes provas
O Conjunto Residencial Cecap, projeto dos arquitetos Vilanova Artigas, Fábio Penteado e Paulo Mendes da Rocha, destaca-se
como um dos ícones da arquitetura habitacional de interesse social no Brasil.

Considerando a figura acima, é correto afirmar que

Considerando a figura acima, é correto afirmar que
Provas
Questão presente nas seguintes provas
Cadernos
Caderno Container