Foram encontradas 524 questões.
Três marceneiros A, B e C receberam por um armário R$2500,00. Esse valor foi repartido em função do tempo dedicado à confecção do armário. Se A dedicou 8 horas; B, 10 horas e C, 22 horas, coube a B o valor de:
Provas
Hoje é domingo. Daqui a um dia será segunda-feira. Daqui a 1545 dias será
Provas
Deseja-se colocar peças cúbicas de tamanhos distintos em uma caixa com formato também cúbico, de forma a preenchê-la completamente. Há disponíveis: cinco peças com 1cm3; cinco peças com 8 cm3 e cinco peças com 27 cm3 . Sabendo-se que o volume da caixa é de 81 cm3, a única alternativa adequada para o preenchimento da caixa é:
Provas
No ambiente CAD, um corte transversal executado no modelo sólido tridimensional da ilustração abaixo, com descarte de uma das partes, resultará em :

Provas
No programa AutoCAD, selecione a ação que NÃO PODE ser aplicada aos objetos de uma camada (layer) que se encontra em estado de uso corrente (current) :
Provas
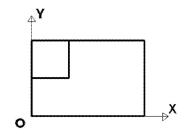
No ambiente CAD, a imagem abaixo mostra a vista de um objeto referenciado a um sistema de eixos.

A visualização desse objeto por um observador identificado pelas coordenadas (1,1,1) neste mesmo sistema de eixos é representada por:
Provas
Analise as afirmativas a seguir, referentes ao programa AutoCAD:
I- Os arquivos gráficos criados pelo programa, podem possuir extensões: DWG e DXF.
II- Model space, paper space e model space floating, são ambientes de trabalho do programa AutoCAD.
III- "ARC", "TRIM", "MOVE", são comandos utilizados para alteração do modelo.
IV- A alteração de um "WCS" (world coordenate system) para um "UCS" (users coordenate system), pode ser feita na sequência de comandos: "UCS", "NEW", "WORLD".
V- Com o comando "EXTRUDE", a entidade bi-dimensional polyline fechada, pode resultar em um sólido.
As afirmativas verdadeiras são somente:
Provas
É mais indicada para uma planta cadastral no formato A0, representando arruamentos, divisas de terrenos e topografia de um loteamento que ocupa uma área de 1,0 x 0,5 km, a seguinte escala:
Provas
Provas
Os símbolos definidos pela norma brasileira de sinalização de segurança contra incêndio e pânico, identificados pelos números 1 e 2, significam respectivamente:

Provas
Caderno Container