Foram encontradas 1.580 questões.
Motores elétricos de corrente alternada são o tipo de motor mais empregado em máquinas e equipamentos, mas apresentam a desvantagem de ter a rotação em função da frequência da rede elétrica. Para solucionar este problema, são empregados os variadores de frequência. Sabendo-se disso, a frequência programada no variador de frequência para um motor de 4 polos operar com uma rotação de 360 rpm deve ser
Provas
A utilização de programas de computador para elaborar desenhos técnicos, plantas, projetos e todas as formas de representação gráfica está plenamente difundida em todos os ramos de atividade. Indique a alternativa que apresenta um programa de computador utilizado para a elaboração de desenhos.
Provas
O equipamento que apresenta maior importância para o desenvolvimento das atribuições de um eletricista de manutenção industrial é:
Provas
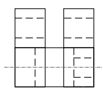
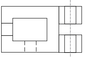
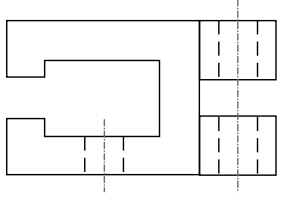
Observe a figura a seguir, que mostra uma peça em perspectiva isométrica.

Indique a alternativa que exibe a vista em planta dessa peça.
Provas
Um motor elétrico aciona um equipamento por meio de um conjunto de polias e correias em V. Percebe-se um desgaste anormal e precoce do rolamento dianteiro desse motor. Assinale a alternativa que indica a condição que produz esse tipo de falha.
Provas
A principal causa de avarias mecânicas em dispositivos eletromecânicos durante sua operação é:
Provas
Um circuito trifásico com tensão de linha de 220 V é protegido por um interruptor diferencial-residual com sensibilidade de 30 mA. Para que o dispositivo atue, protegendo o circuito contra contatos acidentais e assim prevenindo a persistência de choques elétricos, a maior resistência de contato entre a fase do circuito e o aterramento da instalação é igual a
Provas
Choques elétricos com intensidade de corrente superiores a 100 mA são capazes de causar fibrilação ventricular e parada respiratória. Se um indivíduo apresenta resistência corporal entre as duas mãos de 5 kΩ, a tensão aplicada entre os dois que produz um choque com intensidade de 100 mA é:
Provas
O dispositivo de partida de motores de indução trifásico que permite a parametrização da tensão inicial de partida e da inclinação da rampa de incremento de tensão aplicada ao motor é conhecido como
Provas
Um motor acionado por uma partida compensadora com transformador de partida conectado no TAP de 50% faz com que a corrente de partida inicial seja reduzida ao seguinte percentual do valor da corrente de partida direta:
Provas
Caderno Container