Foram encontradas 80 questões.
Considerando-se os requisitos urbanísticos para loteamento da Lei Federal n° 6.766/1979, pode-se afirmar:
Provas
O Parcelamento do Solo Urbano é regido pela Lei Federal n° 6.766/1979. Sobre ele, pode-se afirmar que:
Provas
O orçamento é um documento fundamental para o gerenciamento de obras ao permitir uma previsão do seu custo ou preço. Existem vários tipos de orçamento, e o padrão escolhido depende da finalidade da avaliação e da disponibilidade de dados. Se há interesse em obter uma avaliação rápida baseada na concepção inicial da obra ou até um anteprojeto, o tipo mais indicado de orçamento será o:
Provas
Na execução de revestimentos em gesso liso desempenado, são previstas as seguintes etapas: condições para o início da execução do serviço, preparo da base, preparo da argamassa de gesso, acabamento e limpeza dos ambientes. Considerando-se estas etapas pode-se afirmar que:
Provas
As argamassas industrializadas para revestimento devem atender às disposições da norma NBR 13281 - “Argamassa industrializada para assentamento de paredes e revestimento de paredes e tetos – especificação”. Recomenda-se selecionar um fornecedor com base nas exigências de desempenho da argamassa de revestimento. Assinale a alternativa que apresenta a associação correta das colunas “o que se deve verificar” e “como verificar” para a escolha do fornecedor.
O que se deve verificar:
I - Capacidade de aderência
II - Restrição ao aparecimento de fissuras
III - Trabalhabilidade
Como verificar:
A) Ensaio aos 14 dias com equipamento padronizado
B) Tempo de puxamento para o desempenho menor que 4 horas
C) Verificação visual
Provas
Nas instalações de combate a incêndio pode-se afirmar que:
Provas
O projeto de instalação elétrica de uma edificação prevê a distribuição de energia para os diversos ambientes. Pode-se afirmar que:
Provas
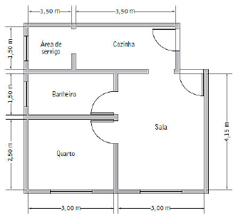
Pelo disposto na norma NBR 5410 – “Instalações elétricas de baixa tensão”, uma edificação deve prever certa quantidade mínima de “Tomadas de Uso Geral” (TUG's) calculada em função da área e do perímetro do compartimento. Sob esse aspecto e considerando a planta abaixo, a sala, cozinha e área de serviço deverão ter, respectivamente, quantas tomadas?

Provas
Nos locais não servidos por rede coletora pública de esgotos, a destinação final do esgoto predial deve ser lançada em um sistema de fossa séptica e unidades de disposição final de efluentes líquidos no solo, dimensionados e operados conforme dispõe as normas NBR 7229 – “Projeto, construção e operação de sistemas de tanques sépticos” e NBR 13969 – “Tanques sépticos - Unidades de tratamento complementar e disposição final dos efluentes líquidos - Projeto, construção e operação”. Com relação à fossa séptica, esta se destina exclusivamente:
Provas
Considerando-se o levantamento topográfico do terreno, pode-se afirmar que:
Provas
Caderno Container