Foram encontradas 50 questões.
Entre os aglutinantes utilizados para estabilização de solos para camada de sub-base de pavimentos rígidos, o principal é o(a)
Provas
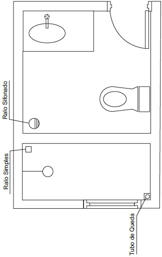
O croqui abaixo, representa um banheiro residencial com chuveiro elétrico e vaso com caixa acoplada. As instalações serão desenvolvidas considerando todos os elementos fornecidos e as normas de instalações prediais afins.
Dados:
- lavatório apenas com água fria e torneira na bancada;
- o sifão do lavatório pode ser dispensado;
- coluna de água única para todas as peças do banheiro.

Para ventilar o ramal de esgoto, será conectado um ramal de ventilação. A ligação que se encontra corretamente de acordo com as normas, e à qual a conexão da ventilação pode ser executada é
Provas
O croqui abaixo, representa um banheiro residencial com chuveiro elétrico e vaso com caixa acoplada. As instalações serão desenvolvidas considerando todos os elementos fornecidos e as normas de instalações prediais afins.
Dados:
- lavatório apenas com água fria e torneira na bancada;
- o sifão do lavatório pode ser dispensado;
- coluna de água única para todas as peças do banheiro.

Com relação à tubulação primária para o esgoto, é correto afirmar que ela parte do
Provas
O croqui abaixo, representa um banheiro residencial com chuveiro elétrico e vaso com caixa acoplada. As instalações serão desenvolvidas considerando todos os elementos fornecidos e as normas de instalações prediais afins.
Dados:
- lavatório apenas com água fria e torneira na bancada;
- o sifão do lavatório pode ser dispensado;
- coluna de água única para todas as peças do banheiro.

Nas instalações hidráulicas,
Provas
Entre os materiais abaixo, o utilizado no assentamento e rejunte de elementos intertravados de concreto é o(a)
Provas
No croqui da estrutura abaixo esquematizada, todas as vigas são de inércia constante e todas as lajes adjacentes são contínuas. Em todas as interseções existem pilares e a numeração das lajes, vigas e pilares deve ser completada segundo as normas da ABNT.

Por se tratarem de lajes contínuas, as armações negativas das lajes aparecerão, obrigatoriamente, sobre as vigas
Provas
No croqui da estrutura abaixo esquematizada, todas as vigas são de inércia constante e todas as lajes adjacentes são contínuas. Em todas as interseções existem pilares e a numeração das lajes, vigas e pilares deve ser completada segundo as normas da ABNT.

Foi necessário iniciar uma concretagem pelos pilares do alinhamento do P1 ao P7. Dessa forma, a seqüência concretada foi:
Provas
No croqui da estrutura abaixo esquematizada, todas as vigas são de inércia constante e todas as lajes adjacentes são contínuas. Em todas as interseções existem pilares e a numeração das lajes, vigas e pilares deve ser completada segundo as normas da ABNT.

A partir da numeração feita de acordo com as normas da ABNT, são consideradas vigas de periferia:
Provas
Em um ensaio realizado de acordo com a NBR NM67/1998 (Concreto – Determinação da consistência elo abatimento do tronco de cone), o tempo decorrido entre a coleta da amostra até o desmolde NÃO deve exceder a quantos minutos?
Provas
Para se obter o tempo gasto trabalhando em um desenho no Autocad, utiliza-se o comando
Provas
Caderno Container