Foram encontradas 60 questões.
O determinante da matriz
representa a quantidade de multas aplicadas pela Polícia Militar durante o mês de outubro em um determinado município. Essa quantidade é igual a:
Provas
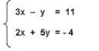
Considere o sistema abaixo

O valor de x + y é igual a:
Provas
De um grupo formado por 12 policiais militares do sexo masculino e 8 do sexo feminino, escolhe-se ao acaso uma pessoa. A probabilidade desta pessoa ser uma mulher é de:
Provas
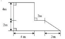
Observe a figura abaixo:

A área desta figura corresponde a:
Provas
O ponto (-6,9) pertence ao gráfico da função definida por f(x) =
O valor de k é:
Provas
A representação decimal da fração
é um número compreendido entre:
Provas
A Polícia Militar de Rondônia estimou em 32 × 53 × 11 o número de pessoas presentes em um show ao ar livre.
Esse número é:
Provas
Os gregos fizeram várias descobertas sobre os Números Naturais, como, por exemplo, a seguinte propriedade relativa ao número 6: 1 + 2 + 3 = 6. Este número é igual a soma de seus divisores positivos menores que ele próprio. Números com essa propriedade foram chamados de números perfeitos. O número perfeito que existe entre 26 e 32 é:
Provas
Provas
As frases do texto recebem o nome de "citações" porque:
Provas
Caderno Container