Foram encontradas 30 questões.
Sobre a pavimentação, marque V para as afirmativas verdadeiras e F para as falsas.
( ) A pavimentação na construção de uma casa é realizada em duas camadas.
( ) A camada do piso é construída sobre o contrapiso e pode ser feita com argamassa de cimento e areia, cerâmica, pedras, etc.
( ) A primeira camada é chamada de piso e tem a função de regularizar a área a ser pavimentada, tornando-a plana, resistente e nivelada.
A sequência está correta em
Provas
O revestimento de uma parede pode ser feito em uma ou mais camadas, cada uma com uma função. Qual o objetivo do reboco?
Provas
(Disponível em: https://organizacaotc.wordpress.com/wp-content/uploads/2014/cartilha-do-pedreiro1.pdf. Acesso em: outubro de 2024. Adaptado.)
As amarrações são, respectivamente:
Provas
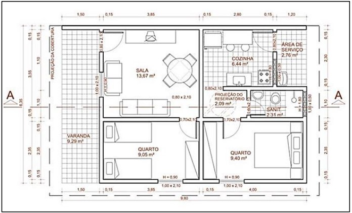
Observe a imagem a seguir:

(Disponível em: https://organizacaotc.wordpress.com/wp-content/uploads/2014/04/cartilha-do-pedreiro1.pdf. Acesso em: outubro de 2024.)
No projeto de construção que a planta representa é possível verificar, EXCETO:
Provas
João está trabalhando na locação de uma obra, cuja marcação de todos os lados do terreno acabou de ser realizada. A próxima etapa será:
Provas
Disciplina: Atualidades e Conhecimentos Gerais
Banca: Consulplan
Orgão: Pref. Cacoal-RO
(Agência Brasil. Acesso em: setembro de 2024.)
No Brasil, a educação obrigatória consta das seguintes etapas:
Provas
Disciplina: Atualidades e Conhecimentos Gerais
Banca: Consulplan
Orgão: Pref. Cacoal-RO
Provas
Disciplina: Atualidades e Conhecimentos Gerais
Banca: Consulplan
Orgão: Pref. Cacoal-RO
Provas
Disciplina: Atualidades e Conhecimentos Gerais
Banca: Consulplan
Orgão: Pref. Cacoal-RO
Provas
(Agência Brasil. Acesso em: setembro de 2024.)
Em relação à usina hidrelétrica, analise as afirmativas a seguir.
I. Usina na qual a energia elétrica é obtida por conversão da energia potencial e cinética da água.
II. Usina elétrica na qual a energia elétrica é obtida por conversão de energia térmica.
Assinale a alternativa correta.
Provas
Caderno Container