Foram encontradas 48 questões.
- Gerenciamento, Planejamento e Controle de ObrasOrganização de Canteira de Obras
- Segurança e Higiene do Trabalho
De acordo com a NR-18, as instalações sanitárias devem ser constituídas, no mínimo, de lavatório, vaso sanitário, mictório e chuveiro, nas proporções orientadas pela norma. Considere um canteiro de obras em que trabalham 175 operários. As instalações devem ser constituídas de:
Provas
Segundo a Lei 8.666/93, na execução indireta, o órgão ou entidade da Administração pode contratar obra ou serviço com terceiros, sob qualquer dos regimes seguintes, exceto:
Provas
Sobre as licitações e contratos administrativos, é correto afirmar, exceto:
Provas
Em uma obra de construção civil os materiais representavam 40% do custo total. Durante sua execução alguns insumos que, juntos, representavam inicialmente 30% do custo dos materiais foram majorados em 15%. Nesse período não houve reajuste salarial, porém, os encargos sociais sobre a mão de obra, que eram de 100% passaram a 110%. Assim, a obra teve um incremento percentual em seu custo total de:
Provas
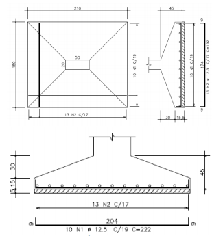
Considerando a massa nominal de 0,963kg/m para o aço DN 12,5mm e o acréscimo de 10% referente as perdas e cortes, o peso total de aço e o volume de concreto da sapata ilustrada a seguir são, respectivamente:

Provas
A finalidade do orçamento não é acertar o valor exato da obra, mas ser o mais preciso possível, não se desviando muito do valor que efetivamente irá custar o empreendimento, uma vez que há sempre uma margem de incerteza embutido no mesmo. Assinale a alternativa que indica corretamente os chamados atributos do orçamento:
Provas
Não faz parte das funções do revestimento asfáltico do tipo tratamento superficial:
Provas
Acerca dos elementos de um projeto rodoviário, a inclinação transversal imposta à pista de rolamento, ao longo das curvas de concordância horizontal, para compensar o efeito da força centrífuga dos veículos, se refere a:
Provas
Sobre as características de funcionamento de diversos tipos de lâmpadas, é correto afirmar, com exceção de:
Provas
Dentre os principais processos de tratamento de água, existe uma técnica que utiliza produtos químicos coagulantes, aplicados para agregar partículas dificilmente sedimentáveis em aglomerados que podem ser retirados mais facilmente. Trata-se da:
Provas
Caderno Container