Foram encontradas 460 questões.
Disciplina: Matemática
Banca: Metrópole
Orgão: Pref. Pedra Branca Amapari-AP
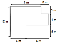
Fábio possui um terreno retangular de lados medindo 12 e 9 metros e deseja construir uma casa com as seguintes medidas:

Dessa forma, é possível afirmar que a área, em metros quadrados, da casa que Fábio irá construir é de:
Provas
Disciplina: Matemática
Banca: Metrópole
Orgão: Pref. Pedra Branca Amapari-AP
Provas
Disciplina: Matemática
Banca: Metrópole
Orgão: Pref. Pedra Branca Amapari-AP
Provas
Disciplina: Estatística
Banca: Metrópole
Orgão: Pref. Pedra Branca Amapari-AP
O gráfico abaixo apresenta dados sobre a covid-19 disponibilizados pela Fundação Oswaldo Cruz (Fiocruz). Analise-o

De acordo com esse gráfico,
Provas
Disciplina: Psicologia
Banca: Metrópole
Orgão: Pref. Pedra Branca Amapari-AP
- Psicodiagnóstico e Avaliação PsicológicaTestes Psicológicos - Testes Psicométricos e Testes Projetivos
Provas
Disciplina: Informática
Banca: Metrópole
Orgão: Pref. Pedra Branca Amapari-AP
Basicamente, podemos dividir o software em duas categorias: o software básico e o software aplicativo. Considerando os conceitos de software básico avalie às seguintes afirmações e assinale (V) para afirmações verdadeiras e (F) para afirmações falsas.
( ) Software Básico consiste de um conjunto de programas que supervisiona e auxilia a execução dos diversos softwares aplicativos. O software básico é, em geral, formado pelos seguintes componentes principais: Sistema operacional, Compiladores e Linguagens de Programação.
( ) Sistemas operacionais como Windows, Mac OS e Linux são exemplos de software básico.
( ) Software básico é um programa escrito especificamente para executar alguma operação de interesse do usuário. Em outras palavras, o software aplicativo descreve os programas que servem às pessoas. Em geral, são programas escritos em linguagem de alto nível pelos programadores.
( ) Os softwares básico informam ao computador como realizar tarefas específicas para o usuário
A sequência correta é:
Provas
Disciplina: Fisioterapia
Banca: Metrópole
Orgão: Pref. Pedra Branca Amapari-AP
Provas
Disciplina: Geografia
Banca: Metrópole
Orgão: Pref. Pedra Branca Amapari-AP
O Município de Pedra Branca do Amapari, apresenta uma diversificada economia que abrange os setores primário, secundário e terciário. Em relação à economia do município, podemos afirmar que:
I. faz criação de gado bovino, bubalino e suíno, utilizando o pescado do trairão, o curupeté, o pacu, e outros.
II. na agricultura destaca-se a mandioca basicamente para a produção de farinha, comercializada na capital.
III. no setor industrial, apresenta diversas fábricas que prestam serviços para mineradoras de grande porte.
IV. sua economia atual é centralizada na agropecuária, na exploração mineral e no grande potencial do turismo.
V. o setor secundário, formado pelas indústrias, é praticamente inexistente na cidade, apesar das grandes mineradoras.
Estão corretas apenas as afirmativas:
Provas
Disciplina: Geografia
Banca: Metrópole
Orgão: Pref. Pedra Branca Amapari-AP
O Estado do Amapá possui vários rios (Oiapoque, Calçoene, Jari, Amapari, Araguari, Santo Antônio, Mutum, Cupixi), igarapés (Onça, Danta) e cachoeiras (Santo Antônio, Cachoeira Grande), além de 34 bacias hidrográficas segundo o Zoneamento Econômico Ecológico (ZEE, 2000). Sobre o rio Amapari, podemos afirmar que:
I. afluente da margem direita do rio Araguari, nasce no alto da cidade de Serra do Navio, banhando Pedra Branca do Amapari.
II. afluente do rio Araguari, deságua no Rio Araguari no território do município de Porto Grande.
III. maior bacia hidrográfica do estado, sua porção ocidental é formada por florestas pluviais e relevos irregulares.
IV. seus afluentes são: Mururé, Tucumpi e Cupixi, sendo o segundo principal rio da bacia hidrográfica do Araguari.
V. nasce na Serra do Tumucumaque e deságua no Atlântico, servindo de linha divisória entre o Brasil e a Guiana Francesa.
Estão corretas apenas as afirmativas:
Provas
Disciplina: Português
Banca: Metrópole
Orgão: Pref. Pedra Branca Amapari-AP
Brasil Avião? Passageira reclama da greve de ônibus e manda recado patroa Uma passageira demonstrou, em segundos, revolta do carioca em relação greve bem como patroa
Rafael Campos 29/03/2022 11:27, atualizado 29/03/2022 12:38 (Disponível em: https://www.metropoles.com/brasil/aviao-passageira-reclama-da-greve-de-onibus-e-manda-recado-a-patroa. Acesso em: 29 mar. 2022.)
A sequência correta é
Provas
Caderno Container