Foram encontradas 135 questões.
Uma barra de seção transversal reta retangular de 100 mm x 200 mm de dimensões (base x altura), engastada-livre, suporta, em equilíbrio, uma carga uniforme de 10 kN/m ao longo de todo o seu vão de 2 m de comprimento.
Na seção transversal de meio do vão desta barra, o valor da tensão normal máxima de tração, em MPa, é de
Provas
Relacione os métodos para identificar o valor de um bem e de seus frutos e direitos às respectivas definições.
1. Método da capitalização da renda
2. Método evolutivo
3. Método comparativo direto de dados de mercado
( ) Método que identifica o valor de mercado do bem por meio de tratamento técnico dos atributos dos elementos comparáveis constituintes da amostra.
( ) Método que identifica o valor do bem pelo somatório dos valores de seus componentes. Caso a finalidade seja a identificação do valor de mercado, deve ser considerado o fator de comercialização.
( ) Método que identifica o valor do bem com base na capitalização presente da sua renda líquida prevista, considerando-se cenários viáveis.
Assinale a opção que mostra a relação correta, de cima para baixo.
Provas
Depreciação é a perda de valor de um bem devido a modificações em seu estado ou qualidade, ocasionadas pelos fatores listados a seguir, à exceção de um. Assinale-o.
Provas
Engenharia de avaliações é o conjunto de conhecimentos técnico-científicos especializados, aplicados à avaliação de bens.
Nesse campo do conhecimento, a diferença positiva entre o valor de mercado e o custo de reedição de um bem recebe o nome de
Provas
- Normas e LegislaçõesNBRsNBR 12.721: Avaliação de Custos Unitários de Construção para Incorporação Imobiliária
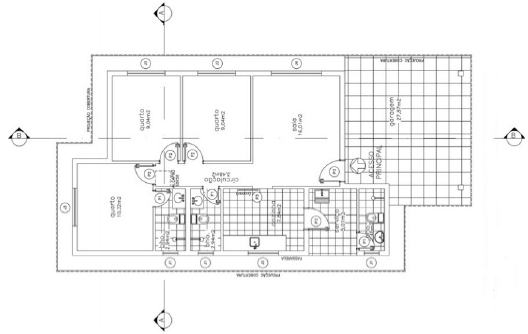
Observe a planta baixa a seguir.

Segundo a NBR 12721, trata-se do projeto-padrão de uma
Provas
- Normas e LegislaçõesNBRsNBR 12.721: Avaliação de Custos Unitários de Construção para Incorporação Imobiliária
A NBR 12721 trata do procedimento para avaliação de custos unitários de construção para incorporação imobiliária e outras disposições para condomínio e edifícios. Segundo essa norma, os projetos-padrão são selecionados para representar os diferentes tipos de edificações, que são usualmente objeto de incorporação para construção em condomínio e conjunto de edificações.
As características que definem um projeto-padrão estão listadas a seguir, à exceção de uma. Assinale-a.
Provas
Leia o fragmento a seguir.
“Antes da execução da impermeabilização de estruturas de concreto ou alvenaria destinadas à contenção e/ou ao armazenamento de água ou efluentes, deve ser efetuado ensaio de _____ com água limpa, para verificação da estabilidade estrutural. Após a execução da impermeabilização, recomenda-se ser efetuado ensaio de _____ com água limpa, com duração mínima de _____ para verificação de falhas na execução do tipo de impermeabilização utilizado.”
Assinale a opção que completa corretamente as lacunas do fragmento acima.
Provas
Na tabela a seguir está representada, de modo resumido, a formação do preço de uma obra.
| PREÇO | |||
| CUSTO | BDI | ||
| I | II | III | Bonificação |
|
Materiais Mão de obra Equipamentos Ferramentas E.P.I. Canteiro outros |
Gestão técnica Gestão administrativa Manutenção do Canteiro Mobilização outros |
Impostos Despesas Financeiras Risco Administração Central outros |
Lucro |
| OBRA | SEDE | ||
| EMPRESA | |||
Na tabela acima, I, II e III correspondem, respectivamente, a
Provas
No que se refere aos diagramas de planejamento e controle de obras, assinale V para a afirmativa verdadeira e F para a falsa.
( ) O Gráfico de Gantt representa os serviços programados em uma escala cronológica, por meio do desenho de retângulos dispostos horizontalmente, mostrando o que deve ser feito em cada período.
( ) A curva ABC é uma curva de acumulação que apresenta o consumo de recursos ou mão de obra ao longo do tempo, permitindo a verificação entre os valores planejados e os executados.
( ) A curva “S” é elaborada a partir de uma classificação dos serviços de uma obra baseada no princípio de Pareto, também conhecido como princípio dos “poucos significativos e muitos insignificantes”.
As afirmativas são, respectivamente,
Provas
Risco pode ser definido como a perda potencial decorrente de um incidente futuro. O risco decorre das Consequências Adversas de um Evento (CAE) resultantes da Probabilidade de Ocorrência desse Evento (POE).
Com base nessas informações, assinale a opção que indica a expressão que representa o risco.
Provas
Caderno Container