Foram encontradas 2.969 questões.


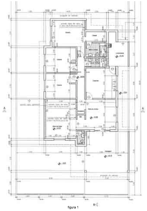
Um projeto arquitetônico contém uma série de desenhos que descrevem sua concepção. Esses desenhos são elaborados com as normas e regras da linguagem do desenho técnico, o que lhes confere precisão e clareza. São desenhos que servem tanto para estudo na fase de projeto, quanto para a construção e para posterior inspeção e verificação da obra construída. A leitura e o entendimento dos desenhos técnicos são essenciais em todas as fases de uma edificação. Tendo em vista os dois desenhos anteriormente mostrados — figuras 1 e 2 —, que fazem parte de um mesmo projeto residencial, julgue os itens a seguir.
Na figura 2, a anotação
indica a cota de nível do +0,36 local, em relação a um ponto estabelecido no projeto como 0,00 m.
Provas


Um projeto arquitetônico contém uma série de desenhos que descrevem sua concepção. Esses desenhos são elaborados com as normas e regras da linguagem do desenho técnico, o que lhes confere precisão e clareza. São desenhos que servem tanto para estudo na fase de projeto, quanto para a construção e para posterior inspeção e verificação da obra construída. A leitura e o entendimento dos desenhos técnicos são essenciais em todas as fases de uma edificação. Tendo em vista os dois desenhos anteriormente mostrados — figuras 1 e 2 —, que fazem parte de um mesmo projeto residencial, julgue os itens a seguir.
Medindo-se com um escalímetro na planta baixa, encontra-se uma dimensão de 4,50 m na largura da sala de estar, em vez dos 4,00 m escritos na cota. Em casos como este, em que há uma diferença entre o desenho e a cota, sempre vale a medida do escalímetro.
Provas

Considerando que a planilha da figura acima tenha sido criada no Excel 2002, julgue os itens subseqüentes.
Caso a planilha mostrada seja transferida para um slide do PowerPoint, não será possível aplicar animação nessa planilha.
Provas

Considerando que a planilha da figura acima tenha sido criada no Excel 2002, julgue os itens subseqüentes.
A planilha pode ser copiada para o Word mediante a seguinte seqüência de procedimentos: selecionar a planilha; pressionar simultaneamente as teclas
e
; abrir um novo documento no Word e pressionar simultaneamente as teclas
e
.
Provas

Considerando que a planilha da figura acima tenha sido criada no Excel 2002, julgue os itens subseqüentes.
O valor total de horas da fiscal Maria representado pela célula D2 pode ser calculado utilizando-se a fórmula =C2-B2.
Provas

Considerando a figura acima, que ilustra uma janela do Internet Explorer 6.0 contendo uma página da prefeitura municipal de Vitória, acessada utilizando-se um computador com o Windows XP instalado, julgue os itens que se seguem.
Ao se clicar a ferramenta , a página será configurada como página inicial.
Provas

Considerando a figura acima, que ilustra uma janela do Internet Explorer 6.0 contendo uma página da prefeitura municipal de Vitória, acessada utilizando-se um computador com o Windows XP instalado, julgue os itens que se seguem.
Ao se clicar o link do formulário Cadastro de Contribuinte Pessoa Física, terá início o upload do arquivo correspondente.
Provas

Considerando a figura acima, que ilustra uma janela do Internet Explorer 6.0 contendo uma página da prefeitura municipal de Vitória, acessada utilizando-se um computador com o Windows XP instalado, julgue os itens que se seguem.
Os arquivos dos formulários só podem ser gravados no disco rígido do computador.
Provas

Considerando a figura acima, que ilustra uma janela do Internet Explorer 6.0 contendo uma página da prefeitura municipal de Vitória, acessada utilizando-se um computador com o Windows XP instalado, julgue os itens que se seguem.
De acordo com as informações contidas na página acima, é correto inferir que os arquivos acessados via links são do tipo .doc.
Provas
Acerca do Decreto Municipal n.º 11.738/2003, julgue os itens seguintes.
Na dosimetria da pena de multa pela prática de infração às normas do CDC, não será considerada a condição econômica do fornecedor infrator.
Provas
Caderno Container