Foram encontradas 50 questões.
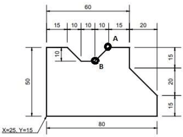
Em desenho técnico as coordenadas cartesianas auxiliam no desenvolvimento de desenhos técnicos. No conceito mais abrangente, temos as coordenadas absolutas, relativas e relativas polares. Com o auxílio do software AutoCad e utilizando das coordenadas relativas, qual seria a coordenada do ponto A para o ponto B?

Provas
No software AutoCad podemos utilizar de atalhos como meio de produtividade e eficiência. Marque a sequência CORRETA para alternar os modos de desenho:
I. F3
II. F5
III. F8
IV. F10
( ) Alternar modo ortogonal
( ) Alternar modo de snap do objeto
( ) Alternar modo polar
( ) Alternar plano isométrico
Provas
Os sistemas sequenciais se caracterizam pelo fato das saídas não só dependerem das entradas no instante de tempo observado, eles assumem pelo menos um elemento de memória. Um circuito biestável apresenta dois estados estáveis (0 e 1) na saída. Podemos representá-los através de circuitos elétricos ou blocos lógicos.

No circuito apresentado estamos representando Biestável:
Provas
Utilizando a linguagem de programação FBD, qual alternativa encontramos a seguinte expressão booleana:

Provas
De acordo com a norma IEC 1131, o programa do usuário pode ser escrito de funções binárias simples até funções complexas, representadas em cinco modos. Assinale a alternativa que NÃO representa um dos modos de acordo com a IEC 61131.
Provas
O resistor equivalente do circuito a seguir é:

Provas
Qual a corrente no enrolamento secundário de um transformador monofásico, no qual a relação de espiras é de 20(primário) para 100(secundário) e a corrente no primário é de 30A.
Provas
O conceito de escorregamento para motores elétricos trata da diferença entre a velocidade no eixo do motor e a velocidade do campo girante. Para um motor de indução trifásico de 4 pólos, uma velocidade de 1750 RPM, em 60 Hz, o escorregamento é:
Provas
Um motor elétrico de 15cv, trifásico com rendimento de 90% e fator de potência 0,84, a corrente elétrica nominal na tensão de 380V é de aproximadamente:
Provas
O resistor representado a seguir, está conectado em paralelo a um resistor de 100Ω. Qual a resistência equivalente para a associação?

Provas
Caderno Container