Magna Concursos

Foram encontradas 505 questões.

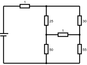
2739136 Ano: 2021
Disciplina: Física
Banca: IBFC
Orgão: SEED-RR

Considere o circuito elétrico abaixo com uma fonte de tensão de 10V e resistores com os valores em ohm. Esse circuito foi modelado no aplicativo falstad, bastante útil para a simulação de circuitos em ambiente didático,em uma aula sobre as Leis de Kirchhoff.

Enunciado 3507383-1

O professor solicita aos estudantes para avaliarem as afirmações abaixo com respeito à análise do circuito:

I. O resistor de 25 ohm está em paralelo com o resistor de 30 ohm.

II. É possível obter as correntes e tensões nos resistores por meio da simplificação de circuito empregando associações em série e paralelo.

III. É possível construir um sistema linear de equações para as correntes em cada resistor pela aplicação das leis de Kirchhoff usando 3 malhas e 3 nós.

IV. Não é possível resolver o circuito sem conhecer ao menos uma corrente.

V. O resistor de 55 ohm não está em série com o resistor de 30 ohm.

Estão incorretas as afirmativas:

 

Provas

Questão presente nas seguintes provas
2739135 Ano: 2021
Disciplina: Física
Banca: IBFC
Orgão: SEED-RR

Chuveiros de maior potência ficaram comuns, mas sua instalação passou a demandar mudanças na espessura dos fios nas instalações domésticas. Considere um chuveiro ligado a um par de fios de fase feitos de cobre, de seção reta de 4 mm2 e 10 m cada, desde o quadro de disjuntores de uma casa. No quadro, o valor efetivo entre as fases é de 220V. Considerando um instante em que 50A de corrente percorrem o fio para alimentar o chuveiro. Assinale a alternativa que estima a queda de tensão (desprezando efeitos associados à corrente alternada) nos fios de fase (que seriam dispensados neste trecho do fio na forma de calor). Considere a resistividade elétrica do cobre de cerca de 2 x 10-8 !$ \Omega !$. m:

 

Provas

Questão presente nas seguintes provas
2739134 Ano: 2021
Disciplina: Física
Banca: IBFC
Orgão: SEED-RR

Com a crise hídrica que passamos em 2021 a compensação sob a disponibilização de energia elétrica na rede nacional demanda o emprego de usinas térmicas cujos custos mais elevados de operação resultam na aplicação de taxas extras na conta de energia elétrica.

“Na última terça-feira (29), a agência aprovou reajuste de 52% para a bandeira vermelha 2, que passou de uma cobrança extra de R$ 6,24 para R$ 9,49 por cada 100 kWh consumidos. O novo valor entra em vigor neste mês de julho e já será aplicado às contas de luz.

Segundo a Aneel, o aumento da bandeira resultará em um aumento médio de 4,9% na conta de luz dos consumidores residenciais.”

Fonte: https://g1.globo.com/economia/noticia/2021/07/01/conte-de-luz-aneel-abre-consulta-publica-para-decidir-se-bandeira-vermelha-2-tera-novo-reajuste.ghtml

Felizmente temos as lâmpadas LED atualmente e 10W equivale a 80W da lâmpada incandescente tradicional - vantagem que deu o prêmio Nobel de 2014 aos físicos Isamu Akasaki, Hiroshi Amano e Shuji Nakamura pela invenção do LED azul que possibilitou a construção das lâmpadas de coloração branca. Considere uma casa que tem 10 lâmpadas de 10W que ficam ligadas em média 4h por dia ao todo, e que no inverno 4 pessoas tomam 1 banho cada, de 12 minutos, por dia em chuveiro de 6500W ligado em sua potência máxima. O preço adicional da conta de luz devido à taxa extra de R$ 9,50 para cada 100 kWh cobrado pelo reajuste considerados apenas esses dispositivos em um mês de 30 dias será de aproximadamente cerca de:

 

Provas

Questão presente nas seguintes provas
2739133 Ano: 2021
Disciplina: Física
Banca: IBFC
Orgão: SEED-RR

Das muitas verificações experimentais da relatividade especial de Einstein está a detecção de múons presentes nos raios cósmicos na superfície terrestre. O tempo de vida desses múons não seria suficiente para que chegassem à superfície após cruzar a atmosfera. O tempo de vida dos múons é de cerca de 2 x 10-6 s.

Considere que os múons estão se deslocando à velocidade de 0,9999c. c = 3 x 108 m/s, o fator de lorentz neste caso é de:

!$ { \Large { 1 \over \sqrt{1 - { \large v^2 \over c^2}}}} \approx 71 !$

Considerando a distância percorrida dada pela estimativa clássica de velocidade vezes tempo, as distâncias percorridas pelo múon considerando: I) o tempo de vida e; II) o tempo de vida dilatado temporalmente no referencial do múon em relação à Terra, são, respectiva e aproximadamente:

 

Provas

Questão presente nas seguintes provas
2739132 Ano: 2021
Disciplina: Física
Banca: IBFC
Orgão: SEED-RR

Em uma atividade pedagógica o docente de física leva um multímetro e uma pilha AA. A medição da tensão de circuito aberto da pilha é de 1,4V. Ao colocar a pilha em curto circuito usando o amperímetro, mediu o valor de 1,0A de corrente, utilizando esse resultado experimental para trazer o conceito de resistência interna. Assinale a alternativa que apresenta uma abordagem correta.

 

Provas

Questão presente nas seguintes provas
2739131 Ano: 2021
Disciplina: Física
Banca: IBFC
Orgão: SEED-RR

Um docente mostra uma “pilha de limão” em sala (feita espetando dois eletrodos, um de cobre e um de zinco em um limão ) consegue produzir 1,42V de tensão elétrica medida em um multímetro.

Enunciado 3507378-1

Fonte: BBC - Lemon battery breaks Guinness World Record - Royal Institution Christmas Lectures 2016 – BBC Four - https://www.youtube.com/watch?v=6fDail5bvss&ab_channel=BBC

Sobre o exposto, analise as afirmativas abaixo e dê valores Verdadeiro (V) ou Falso (F):

( ) Essa é praticamente a tensão de circuito aberto, visto que o multímetro na função de medição de tensão tem resistência interna muito alta, e, assim, o limão não está produzindo corrente elétrica significativa.

( ) Como a resistência elétrica interna do limão é alta, a tensão permanecerá máxima e esse valor, caso seja posta em funcionamento, produzirá uma resistência elétrica muito baixa.

( ) A pilha de limão funcionaria normalmente como as pilhas comerciais AA de 1,5V quando estão um pouco gastas e também exibem essa tensão.

Assinale a alternativa que apresenta a sequência correta de cima para baixo.

 

Provas

Questão presente nas seguintes provas
2739130 Ano: 2021
Disciplina: Física
Banca: IBFC
Orgão: SEED-RR

A entropia é uma quantidade fundamental para a descrição de fenômenos térmicos. Para além de sua interpretação estatística a partir de modelos microscópicos para descrever os fenômenos termodinâmicos, que ficou bastante popular, é bastante simples seu emprego para descrever fenômenos simples macroscópicos usando sua definição macroscópica: dada em termos do calor trocado entre o sistema e o meio, a temperatura do sistema e a temperatura do meio - argumentando pelo significado fundamental dessa quantidade, e que determina a irreversibilidade e a ocorrência (espontaneidade) dos fenômenos termodinâmicos. Considere: 273 g de gelo que derrete completamente, que o processo é realizado com o gelo a 0 ºC, que o calor latente do gelo é de 80 cal/g, e que 1 cal = 4,2 J. Nessa situação, com o meio externo à temperatura fixa em 27ºC (chamada também de entropia do universo) temos que a variação da entropia do meio é de aproximadamente -306J/K. Assinale a alternativa correta com respeito à variação da entropia total (sistema + meio).

 

Provas

Questão presente nas seguintes provas
2739129 Ano: 2021
Disciplina: Física
Banca: IBFC
Orgão: SEED-RR

O resfriamento de um corpo depende da taxa de transferência de calor entre o corpo e as imediações que pode ser modelada como proporcional à diferença de temperatura entre o corpo e o meio - o que corresponde à chamada Lei de Newton do resfriamento.

Admita que o ambiente está à temperatura fixa e que o corpo, que está inicialmente mais quente que o meio, é muito menor que o meio exterior. Com respeito à dinâmica da temperatura do corpo, assinale a alternativa correta.

 

Provas

Questão presente nas seguintes provas
2739128 Ano: 2021
Disciplina: Física
Banca: IBFC
Orgão: SEED-RR

O ciclo de Carnot consiste de uma elaboração fundamental à Termodinâmica que possibilitou identificar o papel da irreversibilidade dos processos térmicos e a natureza do calor. Um inventor alega ter construído uma máquina térmica que, operando em ciclos, entre 27 oC (temperatura ambiente) e com uma fonte de calor à temperatura de cerca de 327 ºC tem rendimento aproximado de 90%. Sobre o julgamento técnico desta máquina, que respeita a Termodinâmica, assinale a alternativa correta.

 

Provas

Questão presente nas seguintes provas
2739127 Ano: 2021
Disciplina: Física
Banca: IBFC
Orgão: SEED-RR

Um professor de física quer demonstrar aos seus estudantes como medir o calor latente do gelo de maneira simples, sem dispor de uma balança. Congela um volume de 1 copo americano de água. O gelo formado pelo volume do copo americano, ele pica e espera ver iniciar o derretimento para colocar na garrafa térmica. Coloca então, imediatamente, 3 volumes de copo americano de água quente, cuja temperatura pouco antes de despejar na garrafa era de 80,5 ºC. Então, sela rapidamente a garrafa térmica com papel alumínio, papel de pão e espeta o termômetro (conforme a imagem abaixo), observando o equilíbrio térmico da mistura se estabelecer em 39,7 ºC.

Enunciado 3507374-1

Se o calor específico da água é de 1 cal /goC, a admitindo que a fusão do gelo ocorre a 0 ºC. Assinale a alternativa que apresenta o valor que identifica corretamente o valor do calor latente do gelo obtido pelo experimento do professor.

 

Provas

Questão presente nas seguintes provas