Foram encontradas 520 questões.
- FundaçõesTipos de Fundações
- FundaçõesProjeto de fundações ou Dimensionamento.
- Normas e LegislaçõesNBRsNBR 6.122: Projeto e Execução de Fundações
Relacione a Coluna 1 à Coluna 2, associando os tipos de fundações profundas à breve descrição apresentada na ABNT NBR 6122 – Projeto e execução de fundações.
Coluna 1
-
1. Estaca Raíz.
2. Estaca Strauss.
3. Estaca Franki.
Coluna 2
-
( ) Estaca moldada in loco, executada pela cravação, por sucessivos golpes de um pilão, de um tubo de ponta fechada por uma bucha seca constituída de pedra e areia, previamente firmada na extremidade inferior do tubo por atrito.
( ) Executada por perfuração do solo com uma sonda ou piteira e revestimento total com camisa metálica, realizando-se gradativamente o lançamento e apiloamento do concreto, com a retirada simultânea do revestimento.
( ) Estaca armada e preenchida com argamassa de cimento e areia, moldada in loco, executada por perfuração rotativa ou rotopercussiva, revestida integralmente, no trecho em solo, por um conjunto de tubos metálicos recuperáveis.
A ordem correta de preenchimento dos parênteses, de cima para baixo, é:
Provas
O item 3.13, do Anexo IV da Resolução nº 09/2011, trata de recomendações técnicas gerais para a arquitetura penal. “Com um concreto adequado, mais a pintura superficial, é possível garantir durabilidade ao concreto e sua sela, dificultar a proliferação de fungos e bactérias e facilitar a manutenção. A resina não é inflamável e se alguém descascá-la não irá conseguir fabricar nenhum tipo de arma com o seu resíduo. Outra vantagem é que não precisa de nenhum tipo de proteção superficial, ou seja, não existem camadas, a pintura é totalmente aplicada sobre o concreto. Além disso, deve-se levar em conta o uso de materiais não inflamáveis e não vandálicos”.
Assinale a alternativa que preenche corretamente a lacuna do trecho acima.
Provas
Conforme determina a Resolução nº 09/2011, “Em todas as penitenciárias e cadeias públicas que possuam celas coletivas, deverá ser previsto pelo menos uma cela com instalação sanitária, por módulo, obedecendo aos parâmetros de acessibilidade (NBR 9050/2004)”. A ABNT NBR 9050 – Acessibilidade a edificações, mobiliário, espaços e equipamentos urbanos, em vigor, especifica que as dimensões do sanitário acessível e do boxe sanitário devem garantir o posicionamento das peças sanitárias e diversos parâmetros de acessibilidade. Sendo assim, analise as assertivas abaixo:
I. Circulação com o giro de 360º (círculo com diâmetro de 1,50 m).
II. Área necessária para garantir a transferência lateral, perpendicular e diagonal para bacia sanitária.
III. Quando a porta instalada for do tipo de eixo vertical, ela deve abrir para o lado externo do sanitário ou boxe e possuir um puxador horizontal no lado interno do ambiente.
IV. Os pisos dos sanitários ou boxes sanitários devem observar as seguintes características: ser podotátil, não ter desníveis junto à entrada ou soleira e, ainda, não ter grelhas e ralos posicionados dentro das áreas de manobra e de transferência.
Quais estão corretas?
Provas
Sobre Avaliação de Imóveis urbanos e rurais com o uso de tratamento científico, segundo a ABNT NBR 14653 – Parte 3, analise as assertivas abaixo e assinale a alternativa correta.
I. O tratamento científico refere-se ao tratamento de evidências empíricas pelo uso de metodologia científica que leva à indução de modelo validado para o comportamento do mercado.
II. O tratamento científico refere-se à homogeneização por fatores e critérios, fundamentos por estudos e com posterior análise estatística dos resultados homogeneizados.
III. Quanto ao tratamento científico, os modelos utilizados para inferir o comportamento do mercado e formação de valores devem ter seus pressupostos devidamente explicitados e testados. Quando necessário, devem ser intentadas medidas corretivas.
IV. Quanto ao tratamento científico, os fatores a serem utilizados devem ser compatíveis com a data de referência da avaliação e a região para a qual são aplicáveis.
Provas
Levando em consideração a NBR 9077, é INCORRETO afirmar que:
Provas
De acordo com a NBR 5626, analise as assertivas abaixo:
I. O sistema predial de agua não potável, quando existir, deve ser totalmente independente daquele destinado ao uso da agua potável. É vedada qualquer possibilidade de conexão cruzada entre ambos.
II. A pressão estática nos pontos de utilização não pode superar 500 kPa (50 mca).
III. Trechos de tubulação de água fria que estejam próximos a tubulações de água quente não precisam ser protegidos contra a transmissão de calor.
Quais estão corretas?
Provas
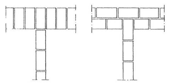
- Normas e LegislaçõesNBRsNBR 8.545: Execução de Alvenaria sem Função Estrutural de Tijolos e Blocos Cerâmicos
De acordo com a NBR 8545, a Figura 1 abaixo refere-se à:

1ª fiada 2ª fiada
Figura 1
Provas
De acordo com a NBR 15575, é correto afirmar que:
Provas
Conforme o Instituto Brasileiro de Avaliações e Perícias de Engenharia (IBAPE), a anomalia originária da própria edificação (projeto, materiais e execução) é classificada como:
Provas
Em relação ao desempenho de edificações, analise as assertivas abaixo:
I. Desempenho é o comportamento em uso de uma edificação e de seus sistemas.
II. A NBR 15575-1 não se aplica a obras já concluídas, obras de reformas, retrofit de edifícios e edificações provisórias.
III. De acordo com a NBR 15575-1, a altura mínima de pé direito não pode ser inferior a 2,60 m. Em vestíbulos, halls, corredores, instalações sanitárias e despensas, é permitido que o pé-direito seja reduzido ao mínimo de 2,30 m.
Quais estão corretas?
Provas
Caderno Container