Foram encontradas 720 questões.
Nos Sistemas de Informação Geográfica (SIG), um modelo de dados geográficos consegue:
I. Suportar relacionamentos espaciais.
II. Representar dados alfanuméricos.
III. Determinar o valor do Erro Médio Quadrático (EMQ) admitido, que varia consoante a escala do documento, não podendo ultrapassar valores limites definidos.
IV. Sobrepor as operações de Overlay, com a união das interseções existentes, e depois colocar todas as entidades em uma classe de saída.
Está correto o que se afirma em
Provas
Dentre a extensa faixa de possíveis aplicações de Sistemas de Informação Geográfica (SIG), considere:
I. Detecção: delimitação de objetos, representação da realidade.
II. Descrição e análise da estrutura: quantificação da configuração espacial e diversidade do espaço.
III. Planejamento de Paisagens: preparo de planos, detecção da condição atual, desenvolvimento de cenários, sistemas de apoio a tomadas de decisão (SDSS – Spatial Decision Support Systems).
IV. Análise de uso do solo: detecção de tipos de uso e suas mudanças (Change Detection).
Está correto o que se afirma em
Provas
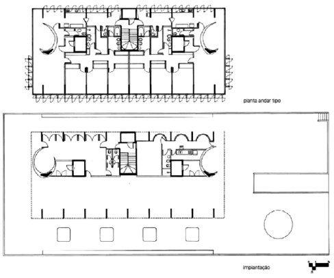
Observe a seguir, os desenhos e as imagens do Edifício Abaeté (1963), em São Paulo, obra do arquiteto Abrahão Sanovicz.




Em relação aos princípios e características dessa arquitetura, constata-se que
Provas
O emprego da escala, enquanto categoria capaz de qualificar a atividade arquitetural como modo de expressão dos agrupamentos humanos, atribui à arquitetura a condição de obra de arte. O conceito de escala foi o elemento-chave utilizado na definição do partido urbanístico de Brasília. Considere as seguintes intenções arquitetônicas e especificidades físico-espaciais de cada escala de Brasília:
I. A residencial, ou cotidiana, nas áreas de vizinhança constituídas por superquadras, que, embora autônomas, se encadeiam umas às outras, permite às pessoas encontrar-se, conviver e compreender-se.
II. A monumental, em que o homem adquire dimensão coletiva, traduz-se no jogo mais livre do espaço e numa comodulação arquitetônica maior.
III. A gregária, onde as dimensões e o espaço são deliberadamente reduzidos e concentrados a fim de criar clima propício ao agrupamento, refere-se tanto ao sentido exterior da tradição mediterrânea quanto ao sentido nórdico do convívio interior.
IV. A bucólica é decorrente da decisão de se construir de modo recuado: evitou-se a localização dos bairros residenciais na orla da lagoa a fim de preservá-la intacta com bosques e campos de feição naturalista e rústica para os passeios e amenidades bucólicas de toda a população urbana.
Está correto o que se afirma em
Provas
Observe a seguir, os desenhos e as imagens do Instituto Nacional de Matemática Pura e Aplicada − IMPA (2015), Rio de Janeiro, projeto do escritório Andrade Morettin Arquitetos Associados.





Na publicação do trabalho, os autores afirmam: “Queríamos que o projeto pudesse proporcionar uma plataforma capaz de acolher as atividades do instituto com grande flexibilidade, tanto no espaço quanto no tempo. Com esse objetivo em mente, aventamos a possibilidade de conceber um sistema construído a partir de módulos com grande capacidade de se especializar para atender a distintas demandas”. Sobre os conceitos deste projeto, é correto afirmar que
Provas
Giulio Carlo Argan demonstrou, em seu texto “Sobre o conceito de tipologia arquitetônica” (1962), que a tipologia não é somente um mero sistema de classificação ou catalogação, mas sim está intimamente vinculada ao processo criativo em arquitetura. Rafael Moneo por sua vez, em “Sobre tipologia” (1978), defende que o conceito de tipologia implica na ideia de mudança, de transformação. Observe a seguir, os desenhos e as imagens da Planta de Água Mineral Aonni (2008) em Punta Arenas, XII Región, Chile, projeto dos arquitetos Daniel Bebin e Tomas Saxton.



Em relação à tipologia arquitetônica e estrutural dessa obra constata-se que:
I. A estrutura é resolvida por uma série de pórticos planos treliçados − geometricamente variáveis e associados em duplas – de perfis metálicos.
II. Em sistemas de superfícies flexíveis, porém resistentes à tração, compressão e esforços cortantes, a transmissão de forças se realiza através da resistência das superfícies e depende de sua forma.
III. A composição é feita pela associação contínua de treliças planas formando treliças espaciais, solução oportuna quando apoios apresentam espaçamentos muito grandes.
IV. Nessa arquitetura com geometria variável, pórticos planos de mesma geometria são associados em duplas para a configuração de módulos estáveis.
Está correto o que se afirma em
Provas
Observe a seguir, os desenhos e as imagens do Museu de Arte Contemporânea Nadir Afonso (2003-15), município de Chaves, Portugal, obra do arquiteto Álvaro Siza Vieira.








Em relação aos princípios e às características dessa arquitetura, constata-se que:
I O piso único do edifício do museu assenta em plataforma elevada em relação ao terreno, apoiada em uma série de lâminas estruturais perpendiculares ao rio, a fim de não estar sujeito a uma eventual inundação.
II. Os dois espaços expositivos fundamentais desenvolvem-se paralelamente, sendo iluminados de maneira difusa e indireta por lanternins contínuos sem aberturas com vista para o exterior.
III. Os espaços internos programados desenvolvem-se longitudinalmente em três setores: a) átrio, recepção, biblioteca, auditório, livraria, café e apoios; b) espaços expositivos; c) apoios administrativos e operacionais, atelier de artes plásticas e de Nadir Afonso.
IV. O edifício é tratado como um corpo quebrado e revirado, à maneira cubista: a delicada instabilidade do Museu integra elementos estáveis e axiais, recortes diagonais, salas secretas, janelas longas, um deslizamento e um tracejamento que são uma forma de desafio espacial.
Está correto o que se afirma em
Provas
Cesare Brandi (1906-88) dedicou sua carreira à crítica e à história da arte, à estética e à restauração, publicando numerosos e relevantes textos. Sua “Teoria da Restauração”, inicialmente publicada em 1963, permanece um escrito essencial e basilar, não superado nesse campo do conhecimento, ao qual se deve sempre retornar para interpretar questões ligadas à preservação de bens culturais na atualidade. A respeito de suas ideias, é correto afirmar que
Provas
BIM é o acrônimo de Building Information Modeling (Modelagem da Informação da Construção) e pode ser definido como uma tecnologia de modelagem e um conjunto associado de processos para produzir, comunicar e analisar modelos de construção. Os objetos dos processos BIM são modelos de construção, ou modelos BIM. Estes modelos são caracterizados por:
I. Componentes de construção que são representados por objetos (representações digitais) que levam consigo atributos gráficos e de dados computáveis que os identificam para aplicativos de software, bem como regras paramétricas que lhes permitem ser manipulados de maneira inteligente.
II. Componentes que incluem dados que descrevem como eles se comportam, conforme necessário para análises e processos de trabalho, tais como quantificação, especificação e análise energética.
III. Arquivos que consistem principalmente em vetores, tipos de linha associados e identificação de camadas (layers), que permitem modificações de dimensões em uma vista de modo independente das outras vistas.
IV. Dados consistentes e não redundantes, de forma que as modificações nos dados dos componentes sejam representadas em todos os conjuntos dos quais eles fazem parte.
Está correto o que se afirma em
Provas
O AutoCAD possui uma tecnologia usada para desenhar com restrições, que são associações e limitações aplicadas à geometria em 2D ou 3D. Há dois tipos de restrições. Um tipo estabelece e mantem relações entre objetos, pontos-chave em objetos, ou entre um objeto e um sistema de coordenadas; o outro tipo limita as medidas de uma geometria. Essa tecnologia denomina- se
Provas
Caderno Container