Foram encontradas 600 questões.
A técnica utilizada no tratamento de imagens dos trabalhos da aerofotogrametria, obtida pela superposição longitudinal entre duas aerofotos consecutivas, capaz de permitir àquele que observa a sensação de visão em três dimensões, chama-se
Provas
A captação de águas pluviais é um sistema de instalações prediais que tem evoluído muito como pode exemplificar o escoamento por sifonagem do Sistema "Epans".

Analisando os desenhos acima se verifica que a inclinação na tubulação sob a laje de cobertura é de
Provas
Um edifício garagem apresenta rampa dupla helicoidal para o acesso dos automóveis conforme figuras abaixo.

Considerando que raio médio é de 6,00m e que o desnível a ser vencido entre os pavimentos é 3,75m, a inclinação média das rampas é de
Provas
Observe abaixo desenhos e imagens de quatro obras do arquiteto espanhol Carlos Ferrater.

Observando-se tais edifícios consta-se que:
I. o rigor construtivo e a ausência de adornos confirmam que a evolução da cultura é proporcional ao desaparecimento do ornamento.
II. diferentes conhecimentos sobre o mundo da arte e da arquitetura, da estrutura e da geometria, aparecem cruzados a produzir nova síntese em que o ornamento não é descartado.
III. há maior ênfase nos aspectos técnico-construtivos do que nos sentidos e nexos que possam justificar os resultados estéticos.
IV. o desenvolvimento técnico e artístico muito elaborado obriga, às vezes, ao abandono das razões econômicas.
É correto o que se afirma APENAS em:
Provas
O Museu de Altamira, em Santillana del Mar, Espanha, do arquiteto Juan Navarro Baldeweg (1995-2000), foi projetado para solucionar os problemas de conservação de suas covas pré-históricas. Do conhecimento do estado de deterioração do sítio, surgiu a necessidade de implantar próximo ao recinto uma "réplica" para receber a numerosa afluência de visitantes. Observe a seguir desenhos e imagens do projeto.



Analisando-se as características dessa arquitetura, considere as afirmações abaixo.
I. A proposta é cuidadosa com a paisagem, reduzindo o impacto negativo de construções e estacionamentos que requerem considerável ocupação de superfície.
II. A arquitetura resultante tem valor próprio evidenciado em formas de caráter mínimo que emergem segundo uma geometria flexível, adaptando-se ao terreno inclinado.
III. Nos espaços interiores a luz é protagonista, tanto a natural quanto a artificial servirão de apoio conforme as exigências expositivas.
IV. A criação da "réplica" sugere a interpretação de sua instalação na paisagem como "imagem espelho" ou refletida que supõe um âmbito "virtual".
É correto o que se afirma em:
Provas
Observe abaixo o edifício de apartamentos Gifu Kitagata, no Japão (1994-1998), projeto de Kazuo Seijima e associados, parte de um projeto de habitações públicas de grande escala promovido pela prefeitura local sob a coordenação de Arata Isozaki.




Analisando o projeto, conclui-se que:
I. a planta do térreo, em que se dispõe o estacionamento, é um pilotis que facilita o acesso ao edifício por todas as direções.
II. as escadas externas assumem função essencialmente estéticas devido ao elevado número de pavimentos e ao rigor do clima local.
III. a lâmina é composta por uma parte central fechada e duas faixas periféricas essencialmente leves: uma para circulação horizontal coletiva, outra para circulação interna dos apartamentos.
IV. uma ampla gama tipológica, combinadas de forma quase livre em secção, gera grande variação nas fachadas.
É correto o que se afirma APENAS em:
Provas
O Colégio Brasil-Paraguai, em Assunção (1952), de Afonso Eduardo Reidy, é considerado uma importante obra na construção da modernidade brasileira, tendo contribuído para a formulação das escolas carioca e paulista de arquitetura.


Analisando as imagens, constata-se que
Provas
No quadro cultural brasileiro, a arquitetura moderna inaugurou uma nova abordagem para incorporação da arte à arquitetura. Observe, abaixo, desenhos e imagens da residência de Olivo Gomes, em São José dos Campos (1049-51), do arquiteto Rino Levi.


Sob o ponto de vista dos princípios de colaboração dos artistas coordenados pelo arquiteto para desempenhar um papel adequado na concepção do conjunto, constata-se que:
I. havia uma valorização das artes decorativas, promovendo escultores e pintores a realizarem imensos quadros sobre as paredes.
II. os painéis de Burle Marx também podem ser entendidos em função do partido da casa.
III. os painéis não são "matéria arquitetônica", mas, atualizando uma técnica tradicional local, conferem especificidade brasileira a uma arquitetura internacional.
IV. nada é supérfluo: desde o paisagismo e o cromatismo das paredes, até o mobiliário e a iluminação, tudo se articula organicamente na realização do partido do projeto.
É correto o que se afirma APENAS em:
Provas
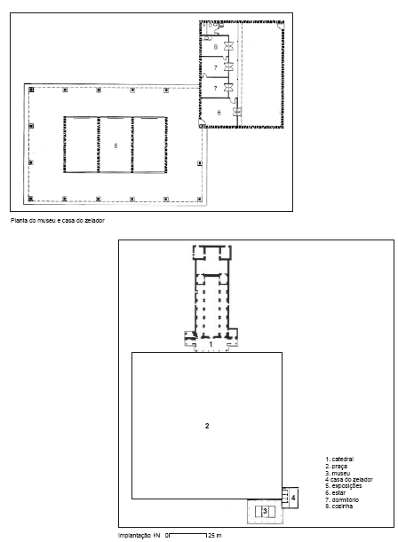
O Museu das Missões, no Rio Grande do Sul (1937), do arquiteto Lúcio Costa, pode ser considerado ponta de lança da instauração de uma modernidade cultural de bases internacionais, ligado ao estudo meticuloso do patrimônio histórico nacional. Observe abaixo esse conjunto.


Analisando-se os princípios de projeto para conservação e restauro de monumentos e sua relação com a prática contemporânea da atividade, constata-se que:
Provas
O programa Autocad, versão 2000 ou superior, permite a inserção de arquivos de desenho de forma semelhante à inserção de blocos. A respeito das opções encontradas na caixa de diálogo principal de External Reference, é correto afirmar que
Provas
Caderno Container