Foram encontradas 60 questões.
Responda às questões de 22 a 24, de acordo com a NBR 9050/2004, que trata da acessibilidade a edificações, mobiliário, espaços e equipamentos urbanos.
Uma rampa com 20 segmentos e desnível de 1,0 m entre si deve ter inclinação ( i ) máxima, em %, de:
Provas
Em um desenho elaborado no Model Space, na escala 1 = 1,00 m, deverão ser indicados detalhes nas escalas 1/25 e 1/10 no modo layout. Os comandos corretos, dentro das viewports para Modo Layout, além do Zoomèscale, são, respectivamente:
Provas
Com base nas informações do cronograma esquemático abaixo, escolha a alternativa incorreta.

Provas
Observe o desenho abaixo, que representa o dimensionamento dos elementos de uma escada, cujo resultado da fórmula de Blondell é 64 cm (cotas em centímetros), onde: N = quantidade de espelhos; E = altura dos espelhos, em cm; P = largura dos pisos, em cm.

Assinale a opção correta.
Provas
Podemos ler a baixo algumas definições de esforços mecânicos. Assinale a opção que representa corretamente a correlação entre a definição e esses esforços.
I - As partes de uma estrutura sofrem estiramento, afastamento.
II - As partes de uma estrutura sofrem encurtamento, aproximação.
III - Numa estrutura agem cargas distribuídas longitudinalmente ao longo do eixo, provocando dobramento.
IV - Numa estrutura agem forças obrigando a estrutura a girar em torno do seu eixo.
V - Numa estrutura agem forças com tendência ao corte da estrutura.
Provas
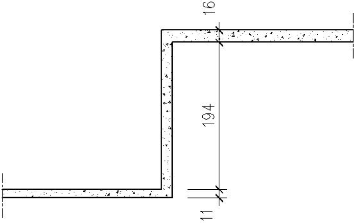
Chaminés são dutos que melhoram a eficiência da combustão nos aparelhos de utilização a gás. Os diâmetros máximo e mínimo permitidos para chaminés individuais são, em mm, respectivamente:
Provas
Leia as informações abaixo, referentes a uma instalação hidráulica.

-Sub-ramais adotados:
- Bacias sanitárias: ⌀ 1.1/4".
- Chuveiros:⌀ 1/2".
- Lavatórios: ⌀ 1/2".
- Máquina de lavar roupas: ⌀ 3/4".
| Seções equivalentes | |||||||||
| Diâmetros dos tubo sem polegadas. | 1/2" | 3/4" | 1" | 1.1/4" | 1.1/2" | 2" | 2.1/2" | 3" | 4" |
| No. de tubos com ⌀ 1/2" com a mesma capacidade. | 1 | 2,9 | 6,2 | 10,9 | 17,4 | 37,8 | 65,5 | 110,5 | 189 |
Considerando a simultaneidade de utilização das peças, assinale a alternativa que indica as respectivas dimensões dos trechos I, II e III do ramal, respectivamente.
Provas
Em um projeto de instalações elétricas em que são consideradas várias unidades, com energia vinda de uma mesma fonte, temos que considerar o seguinte fator:
Provas
Assinale a opção que apresenta a correlação das definições para os diversos tipos de fundações.
I - alicerce contínuo.
II - sapata de pilar conectada por uma viga alavanca a outra sapata, para equilibrar carga assimétrica.
III - sapatas de alicerces individuais que sustentam pilares independentes.
IV - laje de concreto armado que funciona como grande sapata monolítica.
Provas
Responda às q uestões de 51 a 60, sobre o Autocad 2010-2012.
O comando que converte um objeto de forma fechada em viewport é:
Provas
Caderno Container