Foram encontradas 40 questões.
De acordo com o estabelecido na Lei N.º 8.112/1990, além do vencimento, poderão ser pagas as seguintes vantagens:
I - Indenizações
II - Gratificações
III - Adicionais
Em relação a essas vantagens, NÃO se incorpora ao vencimento ou provento para qualquer efeito
Provas
Sobre atribuições asseguradas às universidades, no exercício de sua autonomia, considere:
I - Fixar os currículos dos seus cursos e programas, observadas as diretrizes gerais pertinentes.
II - Conferir graus, diplomas e outros títulos.
III - Firmar contrato, acordos e convênios.
São atribuições asseguradas às universidades de acordo com a Lei N.º 9.394/1996:
Provas
Esse é o hino
De quatro em quatro anos, por ocasião das Copas do Mundo, milhões de pessoas pelo planeta afora têm a oportunidade de entrar em contato com uma das melhores realizações que o Brasil já foi capaz de pôr em pé – o Hino Nacional Brasileiro, tocado e transmitido globalmente antes do começo de cada jogo. É sempre um momento de sucesso garantido junto ao público. O time, no campo, pode ir melhor ou pior, mas o hino não falha nunca. Seus primeiros acordes já deixam claro para a plateia presente aos estádios que ela vai ouvir, nos instantes que se seguem, música de primeira qualidade no gênero; dali para frente as coisas só melhoram. Ao se executar a última nota, todos os que prestaram atenção ao que estavam ouvindo ficam com a impressão de ter recebido um brinde inesperado antes do jogo: em vez da monotonia habitual dos hinos nacionais, em geral áridas arrumações de movimentos marciais que têm como característica mais notável o fato de parecerem todas iguais umas às outras, o que se ouve é uma das melodias mais vibrantes, calorosas e inspiradas que se podem escutar numa cerimônia oficial.
Não há momento sequer de tédio no Hino Nacional; tudo ali é energia, emoção, vigor. Com quase 200 anos de vida, a peça composta por Francisco Manuel da Silva em 1822 mantém intactas até hoje todas as qualidades que fizeram dela uma das composições mais bem-sucedidas na história da música brasileira. Escrita originalmente em homenagem à Independência, e oficializada como Hino Nacional Brasileiro após a proclamação da República, a obra de Francisco Manuel tem um longo histórico de aplausos. Louis Gottschalk, o grande compositor americano do século XIX, que morreu no Brasil em 1869 e tinha entre seus admiradores Chopin, Liszt e Berlioz, considerava-a um dos melhores momentos da criação musical de sua época; em sua homenagem, escreveu a celebrada Fantasia Triunfal sobre o Hino Nacional Brasileiro. [...]
Mas e a letra? Já se falou mal o suficiente da letra do Hino Nacional para que se ganhe alguma coisa insistindo no assunto. Sua linguagem, provavelmente, já era antiquada na época em que foi escrita, 101 anos atrás; é confusa, às vezes absurda, e muito pouca gente consegue decorá-la direito, mesmo porque muita pouca gente entende o que ela está dizendo. Mas isso não afeta a melodia nem embaraça o gênio de Francisco Manuel – que, por sinal, já estava morto quase meio século antes de colocarem palavras em sua música. Além do mais, a letra do Hino Nacional nunca causou prejuízo a ninguém – e, francamente, talvez nem seja pior que a média das letras presentes em hinos de outros países, em geral, obcecados por sangue, morte, canhões, tiranias e outros horrores. O mais prático, portanto, é deixar tudo como está, antes que venha a ideia de adotar uma nova letra através de concurso público. Com certeza, teríamos muita saudade, aí, do lábaro estrelado e dos raios fúlgidos.
(GUZZO, J.R. Veja, edição 2170 – ano 43 – nº 25, 23 de junho de 2010.)
Neste texto de opinião, o autor recorre também à linguagem conotativa. Marque o trecho que NÃO comprova essa afirmativa.
Provas
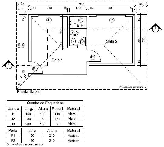
Analise a figura e o quadro abaixo para responder à questão.

Considerando a distância do piso ao teto acabados igual a 3,0 m, analise as afirmativas abaixo.
I - A área total de piso do projeto é aproximadamente 24,5 m2.
II - A área de azulejo do banheiro, desconsiderando as aberturas, é 19,2 m2.
III - A área de vidro das esquadrias é inferior a 4,5 m2.
Está correto o que se afirma em
Provas
- UniãoExecutivoDecreto 1.171/1994: Código de Ética do Servidor Público Civil do Poder Executivo Federal
NÃO é vedado ao servidor público, segundo o Decreto N.º 1.171/1994:
Provas

No texto, a palavra meio expressa circunstância de modo. Assinale a afirmativa em que essa palavra NÃO expressa esse sentido.
Provas
Esse é o hino
De quatro em quatro anos, por ocasião das Copas do Mundo, milhões de pessoas pelo planeta afora têm a oportunidade de entrar em contato com uma das melhores realizações que o Brasil já foi capaz de pôr em pé – o Hino Nacional Brasileiro, tocado e transmitido globalmente antes do começo de cada jogo. É sempre um momento de sucesso garantido junto ao público. O time, no campo, pode ir melhor ou pior, mas o hino não falha nunca. Seus primeiros acordes já deixam claro para a plateia presente aos estádios que ela vai ouvir, nos instantes que se seguem, música de primeira qualidade no gênero; dali para frente as coisas só melhoram. Ao se executar a última nota, todos os que prestaram atenção ao que estavam ouvindo ficam com a impressão de ter recebido um brinde inesperado antes do jogo: em vez da monotonia habitual dos hinos nacionais, em geral áridas arrumações de movimentos marciais que têm como característica mais notável o fato de parecerem todas iguais umas às outras, o que se ouve é uma das melodias mais vibrantes, calorosas e inspiradas que se podem escutar numa cerimônia oficial.
Não há momento sequer de tédio no Hino Nacional; tudo ali é energia, emoção, vigor. Com quase 200 anos de vida, a peça composta por Francisco Manuel da Silva em 1822 mantém intactas até hoje todas as qualidades que fizeram dela uma das composições mais bem-sucedidas na história da música brasileira. Escrita originalmente em homenagem à Independência, e oficializada como Hino Nacional Brasileiro após a proclamação da República, a obra de Francisco Manuel tem um longo histórico de aplausos. Louis Gottschalk, o grande compositor americano do século XIX, que morreu no Brasil em 1869 e tinha entre seus admiradores Chopin, Liszt e Berlioz, considerava-a um dos melhores momentos da criação musical de sua época; em sua homenagem, escreveu a celebrada Fantasia Triunfal sobre o Hino Nacional Brasileiro. [...]
Mas e a letra? Já se falou mal o suficiente da letra do Hino Nacional para que se ganhe alguma coisa insistindo no assunto. Sua linguagem, provavelmente, já era antiquada na época em que foi escrita, 101 anos atrás; é confusa, às vezes absurda, e muito pouca gente consegue decorá-la direito, mesmo porque muita pouca gente entende o que ela está dizendo. Mas isso não afeta a melodia nem embaraça o gênio de Francisco Manuel – que, por sinal, já estava morto quase meio século antes de colocarem palavras em sua música. Além do mais, a letra do Hino Nacional nunca causou prejuízo a ninguém – e, francamente, talvez nem seja pior que a média das letras presentes em hinos de outros países, em geral, obcecados por sangue, morte, canhões, tiranias e outros horrores. O mais prático, portanto, é deixar tudo como está, antes que venha a ideia de adotar uma nova letra através de concurso público. Com certeza, teríamos muita saudade, aí, do lábaro estrelado e dos raios fúlgidos.
(GUZZO, J.R. Veja, edição 2170 – ano 43 – nº 25, 23 de junho de 2010.)
Sobre os elementos responsáveis pela coesão textual, marque V para as afirmativas verdadeiras e F para as falsas.
( ) No primeiro parágrafo, o trecho ... todos os que prestaram atenção ao que estavam ouvindo..., os pronomes demonstrativo e relativo destacados retomam a palavra plateia.
( ) No primeiro período do segundo parágrafo, o advérbio ali indica que o autor está ouvindo o Hino Nacional no momento em que escreve o texto em análise.
( ) No decorrer do texto, o Hino Nacional Brasileiro é retomado por recursos linguísticos do mesmo campo de sentido, como música, melodias, criação musical, peça e obra.
( ) No trecho Mas isso não afeta a melodia nem embaraça o gênio de Francisco Manuel..., terceiro parágrafo, o pronome demonstrativo destacado recupera as afirmações apresentadas no terceiro e quarto períodos desse mesmo parágrafo, sintetizando-as.
Assinale a sequência correta.
Provas
O Mozilla Firefox 22.0 (idioma Português) em sua configuração padrão de instalação, assim como a maioria dos outros navegadores, provê um recurso de armazenamento de endereços de sites. Assinale a alternativa que apresenta o nome desse recurso.
Provas
Ainda que parcialmente introduzido pelo paternalismo estatal, o trabalho informal é manifestação espúria de flexibilidade, pois apenas degrada a relação entre patrão e empregado. Aceitá-lo como dado da realidade e conformar-se com o ritmo recente da formalização implica admitir a iniquidade de a metade da população ficar relegada à condição de segunda classe.
(Folha de São Paulo, 03/02/2014.)
A construção de sentidos de um texto está associada à relação que se estabelece entre as suas partes. Nesse fragmento, o conectivo ainda que estabelece entre paternalismo estatal e trabalho informal uma relação de
Provas
Esse é o hino
De quatro em quatro anos, por ocasião das Copas do Mundo, milhões de pessoas pelo planeta afora têm a oportunidade de entrar em contato com uma das melhores realizações que o Brasil já foi capaz de pôr em pé – o Hino Nacional Brasileiro, tocado e transmitido globalmente antes do começo de cada jogo. É sempre um momento de sucesso garantido junto ao público. O time, no campo, pode ir melhor ou pior, mas o hino não falha nunca. Seus primeiros acordes já deixam claro para a plateia presente aos estádios que ela vai ouvir, nos instantes que se seguem, música de primeira qualidade no gênero; dali para frente as coisas só melhoram. Ao se executar a última nota, todos os que prestaram atenção ao que estavam ouvindo ficam com a impressão de ter recebido um brinde inesperado antes do jogo: em vez da monotonia habitual dos hinos nacionais, em geral áridas arrumações de movimentos marciais que têm como característica mais notável o fato de parecerem todas iguais umas às outras, o que se ouve é uma das melodias mais vibrantes, calorosas e inspiradas que se podem escutar numa cerimônia oficial.
Não há momento sequer de tédio no Hino Nacional; tudo ali é energia, emoção, vigor. Com quase 200 anos de vida, a peça composta por Francisco Manuel da Silva em 1822 mantém intactas até hoje todas as qualidades que fizeram dela uma das composições mais bem-sucedidas na história da música brasileira. Escrita originalmente em homenagem à Independência, e oficializada como Hino Nacional Brasileiro após a proclamação da República, a obra de Francisco Manuel tem um longo histórico de aplausos. Louis Gottschalk, o grande compositor americano do século XIX, que morreu no Brasil em 1869 e tinha entre seus admiradores Chopin, Liszt e Berlioz, considerava-a um dos melhores momentos da criação musical de sua época; em sua homenagem, escreveu a celebrada Fantasia Triunfal sobre o Hino Nacional Brasileiro. [...]
Mas e a letra? Já se falou mal o suficiente da letra do Hino Nacional para que se ganhe alguma coisa insistindo no assunto. Sua linguagem, provavelmente, já era antiquada na época em que foi escrita, 101 anos atrás; é confusa, às vezes absurda, e muito pouca gente consegue decorá-la direito, mesmo porque muita pouca gente entende o que ela está dizendo. Mas isso não afeta a melodia nem embaraça o gênio de Francisco Manuel – que, por sinal, já estava morto quase meio século antes de colocarem palavras em sua música. Além do mais, a letra do Hino Nacional nunca causou prejuízo a ninguém – e, francamente, talvez nem seja pior que a média das letras presentes em hinos de outros países, em geral, obcecados por sangue, morte, canhões, tiranias e outros horrores. O mais prático, portanto, é deixar tudo como está, antes que venha a ideia de adotar uma nova letra através de concurso público. Com certeza, teríamos muita saudade, aí, do lábaro estrelado e dos raios fúlgidos.
(GUZZO, J.R. Veja, edição 2170 – ano 43 – nº 25, 23 de junho de 2010.)
Em relação aos recursos de linguagem utilizados, NÃO é correto afirmar:
Provas
Caderno Container