Magna Concursos

Foram encontradas 50 questões.

4046050 Ano: 2026
Disciplina: Matemática
Banca: VUNESP
Orgão: UNIFESP

Em um sólido na forma de um prisma reto de base retangular, a medida da altura é o triplo da medida da maior aresta da base, e a medida da menor aresta da base é 10 cm, conforme mostra a figura, onde as medidas indicadas estão em centímetros.

Enunciado 4454779-1

Sabendo que o volume desse sólido é 6.750 cm3 , o perímetro de sua base é igual a

 

Provas

Questão presente nas seguintes provas
4046049 Ano: 2026
Disciplina: Matemática
Banca: VUNESP
Orgão: UNIFESP

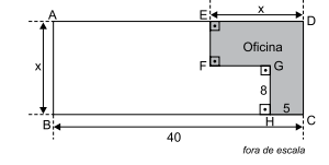
Em um terreno retangular ABCD, com 40 m de comprimento, foi construída uma oficina CDEFGH, com GH = 8 m e HC = 5 m, conforme mostra a figura, onde as medidas indicadas estão em metros.

Enunciado 4454778-1

Sabendo que os lados AB e DE e têm a mesma medida e que a área do terreno ABCD é 600 m2 , o perímetro da oficina é

 

Provas

Questão presente nas seguintes provas
4046048 Ano: 2026
Disciplina: Matemática
Banca: VUNESP
Orgão: UNIFESP
A tabela apresenta o número de unidades vendidas de determinado produto de segunda a quinta-feira de uma determinada semana. 
Enunciado 4454777-1

Sabendo que o número de unidades vendidas na sexta- -feira foi 6 unidades a mais do que a média aritmética do número de unidades vendidas de segunda a sexta-feira, é correto afirmar que a média aritmética do número de unidades vendidas de segunda a sexta-feira foi
 

Provas

Questão presente nas seguintes provas
4046047 Ano: 2026
Disciplina: Matemática
Banca: VUNESP
Orgão: UNIFESP
Duas máquinas, P e Q, fabricaram juntas, em um mesmo dia, 330 peças. Se o número de peças fabricadas pela máquina P foi igual a 7/8 do número de peças fabricadas pela máquina Q, o número de peças que a máquina Q fabricou a mais do que P, nesse dia, foi
 

Provas

Questão presente nas seguintes provas
4046046 Ano: 2026
Disciplina: Matemática
Banca: VUNESP
Orgão: UNIFESP
Em uma editora, há um lote de livros que serão embalados em caixas, de modo que todas as caixas fiquem com o mesmo número de livros. Se forem colocados 34 livros em cada caixa, 2 livros ficarão de fora; mas se forem colocados 30 livros em cada caixa, será utilizada uma caixa a mais, porém nenhum livro ficará fora das caixas. O número de livros desse lote é
 

Provas

Questão presente nas seguintes provas
4046045 Ano: 2026
Disciplina: Matemática
Banca: VUNESP
Orgão: UNIFESP
Em uma gráfica, 5 impressoras de mesma eficiência, trabalhando juntas e sem interrupções, imprimem 6.000 folhetos em 27 minutos. O tempo necessário para imprimir 20.000 desses folhetos, utilizando somente 3 dessas impressoras, também trabalhando juntas e sem interrupções, será de
 

Provas

Questão presente nas seguintes provas
4046044 Ano: 2026
Disciplina: Matemática
Banca: VUNESP
Orgão: UNIFESP
Uma empresa abriu 2 filiais, A e B, que juntas têm 72 funcionários, sendo que a razão entre o número de funcionários da filial A para o número de funcionários da filial B é 3/5 . No mês de abril, foi contratado determinado número de funcionários para a filial A e nenhum funcionário para a filial B, e, dessa forma, a razão citada passou a ser 2/3 . O número de funcionários contratados para a filial A, em abril, foi
 

Provas

Questão presente nas seguintes provas
4046043 Ano: 2026
Disciplina: Matemática Financeira
Banca: VUNESP
Orgão: UNIFESP
O preço de um produto, quando dividido em 3 parcelas iguais, sofre um aumento de 10% sobre o valor da etiqueta, mas, se for pago à vista, ele terá um desconto de 5% sobre o valor da etiqueta. Uma pessoa comprou esse produto e parcelou em 3 vezes, pagando R$ 440,00 em cada parcela. A diferença entre o valor desse produto quando pago em 3 parcelas e o valor dele à vista é de
 

Provas

Questão presente nas seguintes provas
4046042 Ano: 2026
Disciplina: Matemática
Banca: VUNESP
Orgão: UNIFESP
Em uma papelaria, há 840 sacolinhas plásticas na cor branca e 520 sacolinhas plásticas na cor azul. Todas essas sacolinhas serão colocadas em embalagens, de modo que cada embalagem terá o mesmo número de sacolinhas, sendo esse número o maior possível. Sabendo que cada embalagem só poderá ter sacolinhas de uma mesma cor, o número total de embalagens necessárias será
 

Provas

Questão presente nas seguintes provas
4046041 Ano: 2026
Disciplina: Matemática
Banca: VUNESP
Orgão: UNIFESP
No setor administrativo de uma empresa, há uma caixa com determinado número de envelopes, dos quais 3/5 são brancos. Do número total de envelopes brancos, 3/8 foram enviados para o setor A, e os 30 envelopes brancos que restaram foram enviados para o setor B. A diferença entre o número de envelopes brancos enviados aos setores B e A foi
 

Provas

Questão presente nas seguintes provas