Foram encontradas 1.047 questões.
- Processos de ProjetoOrganizações
- Processos de ProjetoEtapas do Processo
- Processos de ProjetoPrograma de Necessidades
Provas
- Tecnologia das ConstruçõesSistemas e Elementos ConstrutivosSistemas EstruturaisPrincípios e Fundamentos
- Tecnologia das ConstruçõesSistemas e Elementos ConstrutivosSistemas EstruturaisMorfologia e Funcionamento das Estruturas
Provas
Na consulta feita ao Código de Ética e Disciplina do Conselho de Arquitetura e Urbanismo (CAU), foi verificado que um profissional descumpriu uma recomendação relativa às obrigações para com o interesse público, que poderia fundamentar futuras sansões disciplinares.
A recomendação destacada pelo analista foi:
Provas
- Meio Ambiente e SustentabilidadeEstudos AmbientaisProjetos Sustentáveis
- Tecnologia das ConstruçõesSistemas e Elementos Construtivos
Várias empresas da construção civil adotam ações cujo fim visa a preservar o meio ambiente.
Entre as práticas de sustentabilidade relacionadas às edificações e à sua execução, destaca(m)-se
Provas
Considere o croqui de parte de uma instalação elétrica predial e os dados a seguir para responder à questão.

Dados:
• Ponto I: um interruptor de duas seções, sendo uma three-way e uma simples;
• Ponto II: um interruptor three-way;
• “a” e “b” são pontos de luz;
• Tensão monofásica;
• Não considerar o terra;
• O ponto de luz “a” é acionado pelos pontos I e II.
Provas
Os métodos de medição de distâncias horizontais são classificados em métodos diretos e indiretos.

Dada a medição da Figura acima, considere as afirmativas a seguir.
I - O método de medição é um método indireto.
II - O método de medição é chamado método das rampas.
III - H é distância real entre A e B.
IV - A distância horizontal (H) é dada pela fórmula 
Está correto o que se afirma em
Provas
Os valores máximos admissíveis para a transmitância térmica (U) das coberturas sofrem variações de acordo com a zona bioclimática correspondente à localização do projeto.
Na NBR 15575/2013, observa-se que a variação ocorre por influência mais expressiva da
Provas
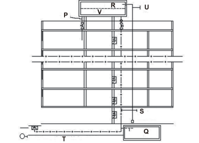
- Instalações PrediaisInstalações Hidrossanitárias
- Instalações PrediaisSegurança Contra Incêndio e Pânico
A Figura abaixo, extraída do Código de Segurança Contra Incêndio e Pânico para edificações no Estado do Rio de Janeiro, representa um corte esquemático de uma edificação, mostrando sua canalização preventiva e o abastecimento de água.

Identificam-se P, Q, R, S, T, U e V, respectivamente, como:
Provas
Observe o croqui de parte das instalações de esgoto da edificação E1 e os dados a seguir.

Dados:
• nos pontos 2 e 4 encontram-se caixas de inspeção (CI);
• os pontos 1 e 3 recebem esgotos da edificação;
• no ponto 3 chegam, exclusivamente, esgotos provenientes de vasos sanitários;
• no ponto 1, chegam, exclusivamente, esgotos provenientes de lavatórios e chuveiros.
Excluindo-se a rede pública coletora de esgotos, e sendo o ponto 1 uma caixa sifonada, os esgotos considerados primários encontram-se no(s) trecho(s)
Provas
Na elaboração de projetos arquitetônicos, é preciso considerar os requisitos e critérios estabelecidos nas normas de desempenho habitacional. Com relação ao desempenho lumínico, a NBR 15575-1/2013 (Edificações habitacionais – Desempenho – Parte 1: Requisitos gerais) determina que certas dependências de uma edificação habitacional devem receber iluminação natural conveniente.
De acordo com essa norma, essas dependências são: sala de estar, dormitório,
Provas
Caderno Container