Foram encontradas 7.307 questões.
No software de CAD 2D, como o Progecad e o AutoCad, a função
do comando “Trim” é
Provas
Questão presente nas seguintes provas
O software AutoCAD possui duas áreas específicas de trabalho:
model space e paper space. A primeira, model space, é destinada
à criação e elaboração do desenho e é normalmente utilizada em
escala real, tendo o milímetro (mm) como unidade padrão. A
segunda, paper space, é utilizada para a formatação da folha de
desenho do programa.
As escalas utilizadas no model space e no paper space, respectivamente, são
As escalas utilizadas no model space e no paper space, respectivamente, são
Provas
Questão presente nas seguintes provas
Símbolos são utilizados para representar uma superfície devido a
um processo de fabricação da peça, como, por exemplo, quando a
remoção de material é exigida, quando não é permitida, para
indicar o grau de fabricação, rugosidade, indicação de um processo
específico de fabricação, revestimento, tratamento, direção de
estrias e indicação de sobremetal.
Assinale a opção que apresenta o símbolo utilizado para remoção de material não permitida conforme a ABNT NBR 8404:1984 - Indicação do estado de superfície em desenhos técnicos.
Assinale a opção que apresenta o símbolo utilizado para remoção de material não permitida conforme a ABNT NBR 8404:1984 - Indicação do estado de superfície em desenhos técnicos.
Provas
Questão presente nas seguintes provas
No contexto do projeto assistido por computador (CAD), a
modelagem tridimensional de objetos é frequentemente realizada
utilizando diferentes tipos de abordagens. Duas das formas de
modelagem tridimensional mais comuns são a modelagem de
superfícies e a modelagem de sólidos
Considerando as diferentes abordagens de modelagem 3D, avalie as afirmações a seguir e a relação proposta entre elas.
I. Um técnico projetista precisa compreender as propriedades físicas e geométricas de um componente, como massa, volume, área de superfície e momento de inércia. Por essa razão, deve utilizar a modelagem de superfícies, que permite representar e calcular essas características com precisão.
PORQUE
II. A modelagem de sólidos é ideal para o design estético de formas complexas, como a carroceria de um carro, mas não define o volume nem a massa do objeto, pois é composta apenas por faces sem espessura.
A respeito dessas afirmações, assinale a opção correta.
Considerando as diferentes abordagens de modelagem 3D, avalie as afirmações a seguir e a relação proposta entre elas.
I. Um técnico projetista precisa compreender as propriedades físicas e geométricas de um componente, como massa, volume, área de superfície e momento de inércia. Por essa razão, deve utilizar a modelagem de superfícies, que permite representar e calcular essas características com precisão.
PORQUE
II. A modelagem de sólidos é ideal para o design estético de formas complexas, como a carroceria de um carro, mas não define o volume nem a massa do objeto, pois é composta apenas por faces sem espessura.
A respeito dessas afirmações, assinale a opção correta.
Provas
Questão presente nas seguintes provas
A norma ABNT NBR 8404:1984 estabelece os símbolos gráficos e
as indicações utilizadas em desenhos técnicos. Essa simbologia é
uma linguagem universal entre o projetista e o fabricante. Com
base nessa norma, relacione os símbolos apresentados e suas
descrições.
Assinale a opção que traz a associação correta entre as duas colunas.
Assinale a opção que traz a associação correta entre as duas colunas.
Provas
Questão presente nas seguintes provas
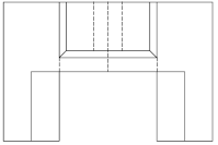
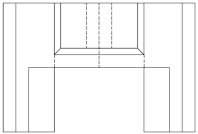
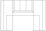
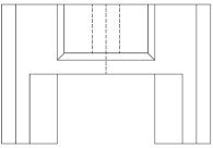
O desenho abaixo apresenta a vista frontal e a vista lateral
esquerda de uma peça.
Marque a alternativa que representa a vista superior desta peça:

Marque a alternativa que representa a vista superior desta peça:

Provas
Questão presente nas seguintes provas
Um projetista mecânico foi encarregado de avaliar a conformidade
de um componente mecânico com o projeto enviado pelo setor de
desenvolvimento. Quando iniciou a análise, teve dificuldades para
encontrar no desenho as furações que visualizou na peça em
virtude dos inúmeros tipos de linhas presentes no desenho e
solicitou ajuda aos colegas de projeto.
Com base na descrição acima, a representação em desenhos técnicos de elementos não visíveis é realizada pela utilização de linha
Com base na descrição acima, a representação em desenhos técnicos de elementos não visíveis é realizada pela utilização de linha
Provas
Questão presente nas seguintes provas
Um projetista foi requisitado a elaborar o desenho de um eixo
usinado e especificar de forma adequada os parâmetros de
rugosidade necessários. Para tal, consultou a norma para
relembrar a definição dos parâmetros de rugosidade e selecionar
os adequados para a situação.
Com relação aos parâmetros de rugosidade, avalie as afirmativas a seguir:
I. Ra é a média aritmética dos valores absolutos de desvio em relação a linha média.
II. Rz representa média da distância entre os picos mais altos e os vales mais profundos.
III. Rp é a distância a partir da linha média do pico mais alto contido no comprimento de medição. IV. Rt representa média da distância entre os picos mais altos e os vales mais profundos.
Está correto o que se afirma em
Com relação aos parâmetros de rugosidade, avalie as afirmativas a seguir:
I. Ra é a média aritmética dos valores absolutos de desvio em relação a linha média.
II. Rz representa média da distância entre os picos mais altos e os vales mais profundos.
III. Rp é a distância a partir da linha média do pico mais alto contido no comprimento de medição. IV. Rt representa média da distância entre os picos mais altos e os vales mais profundos.
Está correto o que se afirma em
Provas
Questão presente nas seguintes provas
As hachuras são utilizadas no desenho técnico em vistas em corte
e podem representar o material da peça.
Avalie o desenho a seguir:
Os materiais correspondentes de cada peça, respectivamente, são
Avalie o desenho a seguir:
Os materiais correspondentes de cada peça, respectivamente, são
Provas
Questão presente nas seguintes provas
Um projetista foi solicitado para elaborar o desenho técnico de um
eixo em escala 10:1.
Para atender ao requisito, o projetista deve elaborar o desenho
Para atender ao requisito, o projetista deve elaborar o desenho
Provas
Questão presente nas seguintes provas
Cadernos
Caderno Container