Foram encontradas 7.312 questões.
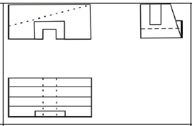
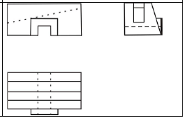
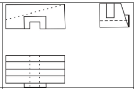
A partir da perspectiva isométrica de uma peça apresentada abaixo, assinale a opção que representa as projeções ortogonais (três vistas) desta peça.

Provas
Julgue o item seguinte quanto à utilização do AUTOCAD.
No AUTOCAD, a opção last do comando zoom permite que o último zoom utilizado seja rapidamente desfeito.
Provas
Um mapa temático no formato analógico, isto é, disponível em papel, pode ser convertido em formato digital por meio dos pacotes computacionais denominados CAD (computer aided design: desenho auxiliado por computador) e SIG (sistema de informações geográficas). Julgue o item subseqüente, relativo a esse assunto.
A referida conversão pode ser realizada por meio de uma mesa digitalizadora, isto é, uma mesa simples, de luz, que é acoplada a um computador.
Provas
Julgue o item seguinte quanto à utilização do AUTOCAD.
Por padrão, nesse programa, quando se pressiona o botão direito do mouse enquanto se mantém pressionada a tecla
, abre-se um menu suspenso, que contém todos os modos do object snap.
Provas

Com referência ao AutoCADR e à figura acima, que mostra uma janela desse software, com um desenho isométrico de determinada tubulação, julgue o próximo item.
O item 1 está em uma elevação superior ao item 2.
Provas

Com referência ao AutoCADR e à figura acima, que mostra uma janela desse software, com um desenho isométrico de determinada tubulação, julgue o próximo item.
A cor do item selecionado no programa pode ser alterada nas propriedades do layer T-P.
Provas
Um mapa temático no formato analógico, isto é, disponível em papel, pode ser convertido em formato digital por meio dos pacotes computacionais denominados CAD (computer aided design: desenho auxiliado por computador) e SIG (sistema de informações geográficas). Julgue o item subseqüente, relativo a esse assunto.
Para georreferenciar uma imagem obtida por satélite, é necessário um receptor GPS para efetuar trabalho de campo.
Provas
Julgue o item seguinte quanto à utilização do AUTOCAD.
Uma camada (ou layer) em que as partes do desenho não podem ser editadas ou canceladas, mas continuam visíveis na tela e podem ser selecionadas e dimensionadas, é considerada travada (ou lock).
Provas
Um mapa temático no formato analógico, isto é, disponível em papel, pode ser convertido em formato digital por meio dos pacotes computacionais denominados CAD (computer aided design: desenho auxiliado por computador) e SIG (sistema de informações geográficas). Julgue o item subseqüente, relativo a esse assunto.
O georreferenciamento de uma imagem obtida por meio de satélite requer a identificação de pontos nessa imagem com coordenadas cartográficas conhecidas.
Provas
Julgue o item seguinte quanto à utilização do AUTOCAD.
Para que seja observada uma parte diferente de um desenho sem mudar sua ampliação na tela, é correto o uso do comando PAN.
Provas
Caderno Container