Foram encontradas 5.198 questões.
Uma parede desenhada em um projeto
arquitetônico de escala 1:75, com medida de 4,0
(quatro) centímetros de comprimento nesse desenho,
tem uma medida de comprimento real igual a:
Provas
Questão presente nas seguintes provas
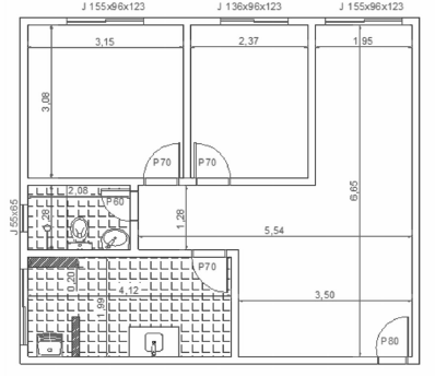
Dada a planta a seguir quantifique a área de revestimento cerâmico a ser utilizado nas paredes das áreas laváveis do apartamento ilustrado. O pé direito das referidas áreas é igual a 2,50 m. Desconsidere os vãos.

Provas
Questão presente nas seguintes provas
Um pedreiro executou uma parede de alvenaria de tijolos cerâmicos
vazados sem função estrutural. Assinale a alternativa que
expressa um dos procedimentos que este pedreiro executou corretamente:
Provas
Questão presente nas seguintes provas
Acerca da concretagem de peças estruturais, assinale a alternativa
correta.
Provas
Questão presente nas seguintes provas
São constituintes dos concretos os aglomerantes e agregados.
Dentre os materiais abaixo listados, assinale a alternativa cuja
sentença possua somente aglomerantes.
Provas
Questão presente nas seguintes provas
Um topógrafo utilizou uma trena de 50,00 m para medir uma distância
que, por esta trena, era de 103,0 m. No entanto, ele constatou
que esta trena possuía 50,06 m ao invés dos 50,00 m. Logo,
o topógrafo fez a correção da distância, que era na verdade de:
Provas
Questão presente nas seguintes provas
O ensaio SPT (Standard Penetration Test) é largamente utilizado
no mundo todo. Tal ensaio permite:
Provas
Questão presente nas seguintes provas
A porosidade é a medida relativa do volume de vazios de um meio
poroso. Os materiais porosos, contêm vazios interconectados uns
aos outros, consequentemente, participam do processo de armazenamento transporte de água. Porosidade é a fração de vazios
contidos em um volume representativo de meio poroso. Sobre porosidade
é INCORRETO afirmar que:
Provas
Questão presente nas seguintes provas
O conjunto de operações que possibilita a limpeza e remoção do excesso de terra de um local, (que pode ou não ser levada a um local onde não há terra), a fim de regularizar o terreno em que se pretende implantar um projeto de construção qualquer, é denominado:
Provas
Questão presente nas seguintes provas
Se a razão entre a soma das cargas da estrutura e a taxa admissível do terreno é maior que a metade da área a ser edificada, é possível obter vantagens econômicas, utilizando como recurso, a união de várias sapatas em um único elemento de fundação, denominado:
Provas
Questão presente nas seguintes provas
Cadernos
Caderno Container