Magna Concursos

Foram encontradas 8.137 questões.

3960092 Ano: 2025
Disciplina: Eletroeletrônica
Banca: FURB
Orgão: Pref. Biguaçu-SC
Provas:
Por cada fase de um circuito de alimentação de um forno trifásico alimentado em 380 V circula uma corrente elétrica de 12 A. Assinale a alternativa que representa a potência elétrica desse forno. (Caso necessário, considere: a raiz quadrada de "3" igual a 1,73 e a raiz quadrada de "2" igual a 1,41.)
 

Provas

Questão presente nas seguintes provas
3960091 Ano: 2025
Disciplina: Eletroeletrônica
Banca: FURB
Orgão: Pref. Biguaçu-SC
Provas:
Dado o circuito a seguir assinale a alternativa que representa a resistência equivalente entre os pontos "A" e "B"

Enunciado 4902726-1
 

Provas

Questão presente nas seguintes provas
3952956 Ano: 2025
Disciplina: Eletroeletrônica
Banca: VUNESP
Orgão: Pref. Sorocaba-SP
Provas:

Observe a figura a seguir, que mostra um dispositivo usado frequentemente nas instalações elétricas:

Enunciado 4809313-1

Esse dispositivo tem a função de

 

Provas

Questão presente nas seguintes provas
3951684 Ano: 2025
Disciplina: Eletroeletrônica
Banca: Instituto Seletiva
Orgão: Câm. Angra Reis-RJ
Provas:
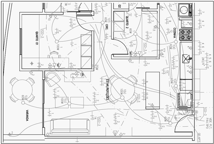
A interpretação correta de plantas e projetos elétricos é uma habilidade fundamental para o eletrotécnico. Analise o trecho do projeto elétrico de baixa tensão apresentado abaixo, que detalha as áreas de cozinha, estar/refeições e Quarto 01: 
Enunciado 4890752-1
Com base nas informações contidas no projeto acima, assinale a alternativa correta.
 

Provas

Questão presente nas seguintes provas
3951683 Ano: 2025
Disciplina: Eletroeletrônica
Banca: Instituto Seletiva
Orgão: Câm. Angra Reis-RJ
Provas:
Um eletrotécnico precisa realizar medições de tensão e corrente nas strings de módulos fotovoltaicos de um sistema conectado à rede, onde a tensão máxima de operação em circuito aberto é de 1000 VCC. Este é um ambiente de instalação fixa e exposto a surtos de tensão: 
Enunciado 4890751-1
De acordo com as normas de segurança para equipamentos de medição, assinale a alternativa correta que apresenta a classificação de segurança (CAT) mínima recomendada para o instrumento de medição a ser utilizado.
 

Provas

Questão presente nas seguintes provas
3951679 Ano: 2025
Disciplina: Eletroeletrônica
Banca: Instituto Seletiva
Orgão: Câm. Angra Reis-RJ
Provas:
Um eletrotécnico precisa medir a tensão eficaz em um circuito de corrente alternada (CA) e utiliza um multímetro digital especificado pelo fabricante conforme tabela a seguir. O profissional tem a informação prévia de que o valor aferido está situado na faixa de 100 a 300 VCA.
Enunciado 4890747-1
Considerando que a leitura obtida foi exatamente 200,0 V, assinale a alternativa correta que apresenta a incerteza total (erro máximo) de medição associado a esta leitura. 
 

Provas

Questão presente nas seguintes provas
3951676 Ano: 2025
Disciplina: Eletroeletrônica
Banca: Instituto Seletiva
Orgão: Câm. Angra Reis-RJ
Provas:

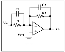
O controlador Proporcional-Integral-Derivativo (PID) trata-se de um circuito amplamente utilizado em sistemas de instrumentação e controle. Sua implementação analógica pode ser facilmente obtida agregando de forma individualizada as ações P, I e D, através de um circuito baseado em amplificador operacional.

Dentre os diagramas de circuito baseados em amplificadores operacionais apresentados a seguir, assinale a alternativa que representa a implementação analógica correta de um circuito PID completo:

 

Provas

Questão presente nas seguintes provas
3950270 Ano: 2025
Disciplina: Eletroeletrônica
Banca: FURB
Orgão: Pref. Camboriú-SC
Provas:
Nos processos de soldagem por eletrodo revestido, MIG/ MAG e TIG, a soldagem se dá através da energia elétrica pela ação de um arco voltaico que ocorre entre o eletrodo e a peça, com proteção na poça de fusão através de uma atmosfera gasosa apropriada. Assinale a questão que informa a principal função do arco voltaico durante o processo de soldagem:
 

Provas

Questão presente nas seguintes provas
3950257 Ano: 2025
Disciplina: Eletroeletrônica
Banca: FURB
Orgão: Pref. Camboriú-SC
Provas:
Para cada processo de soldagem, existem equipamentos e acessórios específicos para sua realização da soldagem. Em alguns casos, o mesmo equipamento de soldagem pode ser compartilhado em vários processos, são os chamados equipamentos de multiprocessos. Assinale a alternativa que identifica o equipamento de soldagem mais utilizado no processo de soldagem MIG/MAG (GMAW):
 

Provas

Questão presente nas seguintes provas
3950256 Ano: 2025
Disciplina: Eletroeletrônica
Banca: FURB
Orgão: Pref. Camboriú-SC
Provas:
Para cada processo de soldagem existem equipamentos e acessórios adequados para a realização da soldagem. Assinale a alternativa que indica os equipamentos de soldagem (máquina de solda) mais indicados para o processo de soldagem por eletrodo revestido:
 

Provas

Questão presente nas seguintes provas