Magna Concursos

Foram encontradas 1.581 questões.

3668699 Ano: 2025
Disciplina: Engenharia Hidráulica
Banca: UFPA
Orgão: UFOPA
Com base no conceito de escoamento da água por orifício e nos seus conhecimentos sobre o comportamento da água durante o esvaziamento ou enchimento de reservatórios, analise a situação dos reservatórios da Figura 2.

Enunciado 4424993-1

Observe ainda a Figura 3 abaixo.

Enunciado 4424993-2

Considerando que o reservatório a) começou cheio e os demais estavam vazios no momento inicial, assinale a alternativa que descreve corretamente o comportamento dos níveis de cada reservatório, com base no gráfico de resposta da Figura 3.
 

Provas

Questão presente nas seguintes provas
3668698 Ano: 2025
Disciplina: Engenharia Hidráulica
Banca: UFPA
Orgão: UFOPA
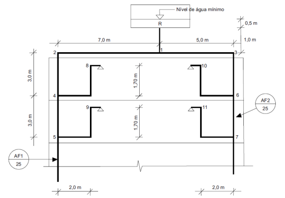
Observe a Figura 1, que representa um sistema de abastecimento predial de água fria.

Figura 1 – Esquema de uma instalação predial de água fria.

Enunciado 4424992-1


Sobre essa Figura, considere as seguintes informações:

• Os chuveiros estão instalados nos pontos 8, 9, 10 e 11;
• O barrilete possui, em toda a sua extensão, o diâmetro de 32 mm;
• As colunas de água fria possuem diâmetro de 25 mm;
• As vazões que abastecem as duas colunas de água fria são idênticas;
• Cada um dos ramais que levam a qualquer um dos chuveiros possui uma perda de carga equivalente a 0,50 m.

Com base nessas informações, analisando a perda de carga e a pressão dinâmica, é correto afirmar que a água chega com menor pressão no(nos) chuveiro(s)
 

Provas

Questão presente nas seguintes provas
3663578 Ano: 2025
Disciplina: Engenharia Hidráulica
Banca: CESPE / CEBRASPE
Orgão: EMBRAPA

No que se refere à manutenção hidráulica e a redes elétricas, julgue o seguinte item.

Interruptores de nível em redes hidráulicas têm a função de interromper o funcionamento de bombas em caso de falta de água.

 

Provas

Questão presente nas seguintes provas
3663576 Ano: 2025
Disciplina: Engenharia Hidráulica
Banca: CESPE / CEBRASPE
Orgão: EMBRAPA

A respeito de componentes em instalações hidráulicas, julgue o item a seguir.

Válvulas solenoides, em sistemas de irrigação automatizada, são controladas manualmente.

 

Provas

Questão presente nas seguintes provas
3663575 Ano: 2025
Disciplina: Engenharia Hidráulica
Banca: CESPE / CEBRASPE
Orgão: EMBRAPA

A respeito de componentes em instalações hidráulicas, julgue o item a seguir.

Em redes hidráulicas longas, a instalação de ventosas é opcional, mas, uma vez que se decida pelo seu uso, elas devem ser instaladas no ponto de menor cota da diretriz do duto.

 

Provas

Questão presente nas seguintes provas
3663574 Ano: 2025
Disciplina: Engenharia Hidráulica
Banca: CESPE / CEBRASPE
Orgão: EMBRAPA

A respeito de leitura e interpretação de projetos, de manutenção de redes hidráulicas e de identificação e uso de ferramentas para instalações elétricas e hidráulicas, julgue o item seguinte.

Considerando-se a densidade da água como 1.000 kg/m3 e g = 10 m/s2, é correto afirmar que, em um ponto de uma tubulação de água localizada 10 m abaixo da superfície, a pressão é de aproximadamente 100 kPa.

 

Provas

Questão presente nas seguintes provas
3663572 Ano: 2025
Disciplina: Engenharia Hidráulica
Banca: CESPE / CEBRASPE
Orgão: EMBRAPA

A respeito de leitura e interpretação de projetos, de manutenção de redes hidráulicas e de identificação e uso de ferramentas para instalações elétricas e hidráulicas, julgue o item seguinte.

Uma bomba com potência hidráulica de 80 kW e eficiência de 80% terá uma potência consumida de 100 kW.

 

Provas

Questão presente nas seguintes provas
3663571 Ano: 2025
Disciplina: Engenharia Hidráulica
Banca: CESPE / CEBRASPE
Orgão: EMBRAPA

A respeito de leitura e interpretação de projetos, de manutenção de redes hidráulicas e de identificação e uso de ferramentas para instalações elétricas e hidráulicas, julgue o item seguinte.

A espessura das linhas em um projeto técnico indica diferentes hierarquias e tipos de elementos.

 

Provas

Questão presente nas seguintes provas
No projeto hidráulico de Estações de Tratamento de Esgoto Sanitário (ETE), a inclinação mínima da tubulação de transporte de lodo no escoamento por condutos livres é
 

Provas

Questão presente nas seguintes provas
3657414 Ano: 2025
Disciplina: Engenharia Hidráulica
Banca: Unesc
Orgão: Pref. Içara-SC
Provas:
Tem por objetivo garantir o perfeito escoamento das águas pluviais e impedir que o material sólido, retido durante as chuvas, seja levado para os ramais e galerias.

Fonte: PROGARU. Progresso e Desenvolvimento de Guarulhos S. A. Manual de Limpeza Urbana.

A atividade acima descrita refere-se à:
 

Provas

Questão presente nas seguintes provas