Foram encontradas 2.300 questões.
Disciplina: Administração Financeira e Orçamentária
Banca: CESPE / CEBRASPE
Orgão: ABIN
Acerca dos objetivos e finalidades do Sistema Integrado de Dados Orçamentários (SIDOR) e do Sistema Integrado de Administração Financeira (SIAFI) do Governo Federal, julgue os itens seguintes.
O SIDOR é utilizado na elaboração dos projetos de Lei Orçamentária Anual (LOA), de diretrizes orçamentárias e de revisão do Plano Plurianual.
Provas
A Constituição Federal de 1988 (CF) instituiu normas para licitações e contratos da administração pública. Dessa forma, a contratação de obras e serviços, a locação e a alienação, bem como a aquisição de materiais são ações realizadas mediante processo de licitação pública que assegure igualdade de condições a todos os concorrentes. Acerca desse tema, julgue os itens a seguir.
A execução de um contrato público deve ser acompanhada e fiscalizada por um representante da administração designado unicamente para esse fim, não havendo, pois, possibilidade da contratação de terceiros para realizar essas atividades.
Provas
No que concerne à organização administrativa, julgue os itens que se seguem.
Diferentemente de descentralização, desconcentração consiste na distribuição de competências internamente a uma só pessoa jurídica.
Provas
Na passagem de parâmetros por valor, os parâmetros têm escopo local, sendo acessíveis somente pela função, já que, assim como as variáveis locais, os parâmetros são alocados no espaço de memória da pilha do sistema.
Provas

Provas
e Para que o sistema Ax = b tenha uma solução é necessário que \({b_3 = 2 b_1 +{ b_2 \over 2}} .\)
Provas


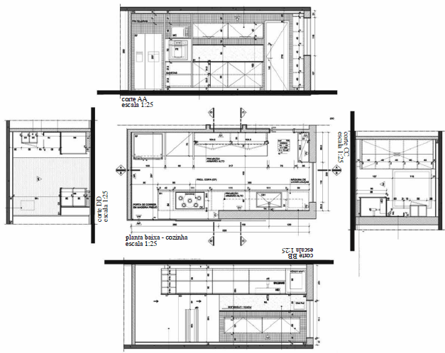
Com base no projeto apresentado no texto, julgue o item que se segue, acerca de design de interiores e decoração.
Planta linear, setores bem definidos, micro-ondas, fogão e geladeira agrupados demonstram um leiaute racional. Os espaços foram otimizados devido a uma circulação de 1,10 m entre as bancadas.
Provas

Considerando que todos os componentes desses circuitos sejam ideais, julgue o item seguinte.
No circuito da figura III, se R2 = 4 k\(\Omega\),
Provas
Com relação ao Decreto n.º 4.376/2002, que dispõe sobre a organização e o funcionamento do SISBIN, julgue os seguintes itens.
O Centro Gestor e Operacional do Sistema de Proteção da Amazônia (CENSIPAM) representa a Casa Civil da Presidência da República no SISBIN.
Provas

Com base no agrupamento de contas do plano de contas da administração pública federal vigente até 2011 mostrado no quadro acima, julgue os itens subsequentes.
O ativo compensado compreende as contas com função precípua de controle que possam afetar o patrimônio, com exceção das contas correspondentes a atos e fatos ligados à execução orçamentária e financeira.
Provas
Caderno Container