Foram encontradas 830 questões.
Na figura abaixo, \( θ \)=60º, m=1kg e o fio de aço de massa desprezível tem comprimento de 1 m. A corda horizontal é cortada e a massa inicia um movimento pendular. Considere g=10 m/s2.

A tração no fio para \( θ \) =0° é:
Provas
Uma viga deve ser confeccionada por meio de solda e - se necessário - corte, a partir de três barras chatas de espessura t e largura h. Três configurações são vislumbradas (vide croquis): viga retangular, viga I, tubo retangular. Indique qual a configuração mais adequada para a viga resistir à flexão, ou seja, apresenta maior momento de inércia em relação ao eixo baricêntrico horizontal.

Provas
Uma caixa redutora está submetida aos três momentos ilustrados.

Indique o momento resultante:
Provas
Considere que o sistema seja excitado por uma força F(t) = Asen(100t). O gráfico que melhor represnta a resposta forçada do referido sistema em regime permanente é:
Provas
Uma das primeiras etapas, ao analisar um diagrama de corpo livre, é encontrar as reações nos apoios ou vínculos. Um diagrama pode representar uma estrutura hiperestática quando o número:
Provas
A figura abaixo representa um elemento composto por treliças sustentando uma carga de 450 kg:

Considerando que o sistema encontra-se em equilíbrio estático, a intensidade da força e o tipo de esforço presente no elemento AC é:
Provas
Uma placa de compensado que está sendo furada foi presa numa bancada por dois pregos, localizados em A e C. Essa operação de furação coloca um momento de 48 Nm na placa. A magnitude da força nos dois pregos é de:

Provas
A representação de furos circulares em um desenho técnico utiliza uma linha que passa pelo eixo central do furo. O aspecto encontrado é de uma linha do tipo:
Provas
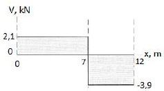
A figura a seguir apresenta uma viga biapoiada submetida a uma carga concentrada de 6kN:

Provas

A figura acima representa a visualização das classes de ajuste no sistema furo-base. As classes referentes aos números (1), (2) e (3) são, respectivamente:
Provas
Caderno Container