Foram encontradas 209 questões.

Considerando apenas essas caminhadas, Carlos caminha, em cinco dias de trabalho, uma distância
Provas
Uma empresa vende determinado produto em dois modelos, S e P. O gráfico mostra as quantidades vendidas mensalmente de cada modelo, no segundo semestre de 2018.

De acordo com as informações do gráfico, é correto afirmar que a participação do modelo P no número total de unidades vendidas no período considerado foi de
Provas
Considere dois blocos de madeira, B1 e B2, ambos com forma de paralelepípedo reto retângulo e com as respectivas dimensões indicadas nas figuras.

Se o volume de B1 é 6 cm3, então o volume de B2 é
Provas
A tabela relaciona as vendas globais do e-commerce realizadas em 2018, e as respectivas previsões para 2019, 2020 e 2021, cujos valores, em bilhões de dólares, foram substituídos por x e submúltiplos de x.

Se as vendas ocorridas em 2018 mais as previsões para os três anos seguintes totalizam 15,4 bilhões de dólares, então o valor previsto para as vendas globais do e-commerce em 2021 é, em bilhões de dólares, igual a
Provas
Um painel quadrado ABCD foi dividido em três regiões retangulares (R1, R2 e R3), conforme mostra a figura, com dimensões indicadas em centímetros:

Se a área de R2 é igual a 2 880 cm2, então a medida indicada por 1,4 x na figura é igual a
Provas
Em um levantamento efetuado por uma entidade cultural junto a um público específico, cada pessoa ouvida deveria indicar uma circunstância que a levaria mais vezes ao teatro. A tabela mostra o resultado desse levantamento:

Se 112 pessoas ouvidas nesse levantamento indicaram “facilidade de acesso”, então o número de pessoas que indicaram “preços menores” foi
Provas
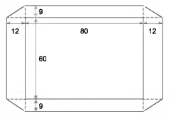
Um espelho retangular, cujos lados medem 80 cm e 60 cm, é totalmente contornado por uma moldura de madeira com 9 cm de largura no lado maior e 12 cm de largura no lado menor, sendo que os cantos formam triângulos retângulos congruentes, conforme mostra a figura.

O perímetro externo dessa moldura mede
Provas
Provas
Os benefícios da imigração para um país
Muitos daqueles que se opõem à imigração ignoram uma verdade inconveniente: os imigrantes costumam ser os melhores cidadãos.
Historicamente, imigrantes mexicanos e seus filhos resgataram cidades menores com população em declínio nos Estados Unidos, informou Alfredo Corchado ao The New York Times. Cerca de metade das 6 mil pessoas de Kennett Square, perto da Filadélfia, por exemplo, são de ascendência hispânica, e é provável que a cidade teria se extinguido sem elas.
Kennett Square alega ser a capital mundial dos cogumelos, o centro de uma indústria de US$ 2,7 bilhões no sudeste da Pensilvânia que emprega 10 milhões de trabalhadores.
Mas, nos últimos dez anos, o número de imigrantes mexicanos nos EUA diminuiu em mais de um milhão. Alguns foram deportados, e outros foram embora espontaneamente por receio das autoridades.
“Os mexicanos estão indo embora, e isso é má notícia para todos”, disse Chris Alonzo, presidente da Pietro Industries, uma das maiores empresas de cogumelos. “Toda essa negatividade e estímulo ao medo geraram um sentimento anti-imigração que está prejudicando nossa cidadezinha. Temos escassez de mão de obra, o que ameaça a vibração da nossa comunidade”.
Os recém-chegados também ajudaram a dar novo ânimo à vida cultural da região.
“Os mexicanos tiveram um impacto positivo na comunidade ao trazer mais cor e sabor para uma vida sem graça”, explicou Loretta Perna, coordenadora de programas da Escola Kennett High.
(Tom Brady, The New York Times. Publicado em O Estado de S.Paulo. 23.09.2018. Adaptado)
Provas
Provas
Caderno Container